Extension Igangsettingstillatelse Enebolig

Tilbygg, garasje og bruksendring i enebolig på Vikdalsgutua 5

📍 Vikdalsgutua 5 , 2415 HERADSBYGD

Nøkkelinfo

Sakstype
Tilbygg
Bygningstype
Enebolig
Bruksareal
269 m²
Boenheter
1
Kommune
Elverum
Fylke
Innlandet
Gnr / Bnr
51 / 69
Saksnummer
2026/965
Fase
Igangsettingstillatelse

Om byggesaken

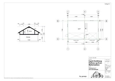
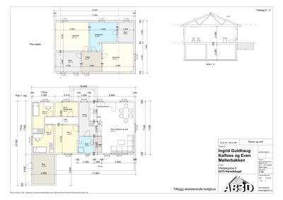
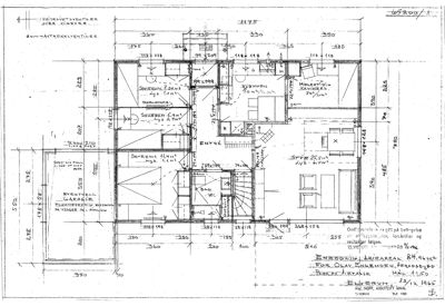
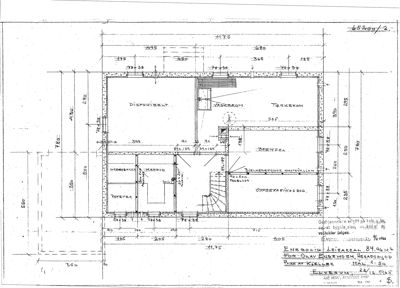
Ny enebolig med tilbygg på ca. 25 m², ny frittstående garasje på ca. 107 m² fordelt på to etasjer, og bruksendring av kjeller fra tilleggsdel til hoveddel. Eneboligen har saltak og trekledning, med flere soverom, bad, stue, kjøkken og boder fordelt på to etasjer og kjeller. Garasjen har hems og to garasjeporter. Bygget ligger i et etablert boligområde innenfor 100-metersbeltet til elva Glåma, med dispensasjon gitt for plassering nærmere vassdraget og i LNF-område. Det er to trapper i boligen, og fasader med flere vinduer og dører i treverk. Prosjektet inkluderer også oppgradering av utearealer og grunnarbeid.

Produkter og materialer

Fasade Trekledning

🧱 Tre

Trekledning på bolig og garasje, i henhold til fasadetegninger.

Vinduer Fasadevindu i tre

🧱 Tre

Antall: 19

Fasadevinduer i treverk fordelt på bolig og tilbygg, inkludert flere vinduer i stue, kjøkken og soverom.

Maling Innvendig og utvendig maling

Maling av treflater innvendig og utvendig på bolig og garasje.

Elektro Elektriske installasjoner

Elektriske installasjoner i bolig, tilbygg og garasje.

Tømrer Tømrerarbeider

Tømrerarbeider for oppføring av tilbygg, garasje og innvendige arbeider.

Grunnarbeid Graving og fundamentering

Grunnarbeider for tilbygg og ny garasje, inkludert fundamentering og drenering.

Dører Ytterdører i tre

🧱 Tre

Antall: 10

Ytterdører i tre til bolig, tilbygg og garasje, inkludert dører til bod og inngangspartier.

Bad Bad og vaskerom

Antall: 2

Bad i 1. etasje og vaskerom i kjeller, med nødvendige sanitærinstallasjoner.

Trapper Innvendige trapper

Antall: 2

To innvendige trapper, en mellom kjeller og 1. etasje, og en i 1. etasje.

Isolasjon Vegger og tak

Isolasjon i vegger og tak for bolig og garasje, inkludert brannmotstand EI30 mellom garasje og bolig.

Tak Saltak

🧱 Tre, antatt tekket med takstein eller lignende

Saltak på bolig og garasje, med tilhørende taktekking og takrenner.

Garasjeport Garasjeporter

Antall: 2

Portmål 28 x 22 M og 55 x 22 M

To garasjeporter i ny garasje, med spesifiserte mål.

Gulv Innvendige gulvflater

Innvendige gulv i bolig og tilbygg, antatt parkett eller fliser i våtrom.

VVS Sanitærinstallasjoner

VVS-installasjoner i tilbygg og bruksendret kjeller, inkludert bad og vaskerom.

Fasader

Enebolig

Nord - Øst
Materiale
Tre
Taktype
Saltak
Vinduer
4
Dører
1
Synlige etasjer
1
Sør - Øst
Materiale
Tre
Taktype
Saltak
Vinduer
1
Dører
0
Synlige etasjer
1
Nord - Vest
Materiale
Tre
Taktype
Saltak
Vinduer
1
Dører
1
Synlige etasjer
1
Sør - Vest
Materiale
Tre
Taktype
Saltak
Vinduer
2
Dører
1
Synlige etasjer
1
Nord
Materiale
Tre
Taktype
Saltak
Vinduer
2
Dører
1
Synlige etasjer
2
Sør
Materiale
Tre
Taktype
Saltak
Vinduer
1
Dører
0
Synlige etasjer
1
Øst
Materiale
Tre
Taktype
Saltak
Vinduer
3
Dører
1
Synlige etasjer
1
Vest
Taktype
Saltak
Høyde
2.4 m
Mønehøyde
5.5 m
Vinduer
0
Dører
1
Synlige etasjer
1

Hendelser

17.04.2026 Igangsettingstillatelse for oppføring av tilbygg, garasje og bruksendring - Vikdalsgutua 5
14.04.2026 Dispensasjon for oppføring av ny bygning innenfor 100-metersbeltet og i LNF-område, og rammetillatelse for tilbygg, bruksendring og oppføring av garasje - Vikdalsgutua 5
13.04.2026 Vikdalsgutua 5 Søknad om igangsettingstillatelse 51/69
26.03.2026 Vedlegg - plan til tilbygg
11.03.2026 Byggesak Vikdalsgutua 5 - Gbnr 51/69
09.03.2026 Mangel i søknad - Vikdalsgutua 5
19.02.2026 Vikdalsgutua 5 Søknad om rammetillatelse 51/69