Facade
Fasadetegning som viser bygningens utseende fra øst og sør.
1 / 11
Extension
UnderBehandling
Enebolig
Tilbygg gang/inngangsparti på enebolig, Villavegen 10A
📍 Villavegen 10A , 5416 STORD
Nøkkelinfo
- Sakstype
- Tilbygg
- Bygningstype
- Enebolig
- Bruksareal
- 9 m²
- Boenheter
- 1
- Kommune
- Stord
- Fylke
- Vestland
- Gnr / Bnr
- 26 / 813
- Saksnummer
- 2025/14118
- Fase
- Under behandling
Om byggesaken
Ny tilbygg på 9 m² med bebygd areal 9 m² og bruksareal 7,2 m² på en eksisterende enebolig i Villavegen 10A. Tilbygget plasseres på østsiden av huset og skal fungere som gang og inngangsparti. Bygget har en mønehøyde på 4,2 meter og gesimshøyde på 2,9 meter, med netto romhøyde på 2,4 meter. Tilbygget er oppført i tre med saltak, og fundamentert med ringmur og isolert betonggulv. Det er tilknyttet eksisterende infrastruktur uten endringer i vann- og avløpssystem. Nabosamtykke foreligger for plassering 3 meter fra nabogrense. Tiltaket er i tråd med gjeldende reguleringsplan og tekniske krav (TEK17).
Produkter og materialer
Grunnarbeid
Grunnarbeid for tilbygg
Grunnarbeid utført av Sagenes Entreprenør AS
Grunnarbeid for fundamentering av tilbygget
Vinduer
Fasadevindu
Antall: 2
2 vinduer på østfasade i tilbygget
Vinduer for naturlig lys i tilbygget
Betong
Ringmur og isolert betonggulv
🧱 Betong og isolasjon
Montering og støping av ringmurselement og isolert betonggulv i tilbygget
Fundamentering og gulv i tilbygget
Tømrer
Tømrerarbeid tilbygg
Tømrerarbeid utført av Vestlandsbolig AS
Tømrerarbeid for oppføring av tilbygget
Tak
Saltak
🧱 Tre med taktekking
Saltak med mønehøyde 4,2 m og gesimshøyde 2,9 m
Saltak for tilbygget
Dører
Ytterdør
Antall: 1
Dør i tilbygget som inngangsparti
Ytterdør til tilbygget
Fasade
Yttervegger i tre
🧱 Tre
Tilbyggets yttervegger oppført i tre, i tråd med eksisterende bygg
Trevegger for tilbygget som gang/inngangsparti
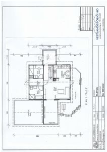
Plantegning
Enebolig 120.5 m²
Etasje 1 120.5 m²
| Rom | Areal | Vinduer | Dører |
|---|---|---|---|
| Stue 101 | 35.0 m² | 1 | 1 |
| Kjøkken 102 | 8.2 m² | 1 | 1 |
| Gang 103 | 7.2 m² | 0 | 2 |
| Gang 104 | 4.0 m² | 0 | 1 |
| Sov 105 | 6.4 m² | 1 | 1 |
| Bad 106 | 7.3 m² | 0 | 1 |
| Garasje 107 | 30.0 m² | 1 | 1 |
Fasader
Enebolig
Øst
- Materiale
- Tre
- Taktype
- Saltak
- Vinduer
- 2
- Dører
- 0
- Synlige etasjer
- 1
Sør
- Materiale
- Tre
- Taktype
- Saltak
- Vinduer
- 4
- Dører
- 1
- Balkonger
- 1
- Synlige etasjer
- 1
Nord
- Materiale
- Tre
- Taktype
- Saltak
- Vinduer
- 2
- Dører
- 2
- Synlige etasjer
- 1
Vest
- Materiale
- Tre
- Taktype
- Flatt tak
- Vinduer
- 1
- Dører
- 0
- Synlige etasjer
- 1
Hendelser
21.04.2026
Stadfesting av motteken søknad - Ferdigattest- 26/813 - Tilbygg, Villavegen 10A
19.04.2026
Søknad om ferdigattest - 26/813, Villavegen 10A
29.10.2025
Matrikkelføring tilbygg, Villavegen 10 A - 26/813
22.10.2025
Løyve til tiltak i eitt trinn - 26/813 - Tilbygg, Villavegen 10A
21.10.2025
Villavegen 10A Supplering av søknad 26/813
06.10.2025
Søknad om løyve i eitt trinn - 26/813, Villavegen 10A
02.10.2025
Stadfesting av motteken søknad - 26/813 - Tilbygg, Villavegen 10A