ChangeOfUse Ferdigattest Fritidsbolig

Bruksendring av naust til fritidsbolig i Gjerdsvikvegen, Gjerdsvika

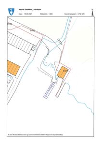
📍 Gjerdsvikvegen 103 , 6083 GJERDSVIKA

Nøkkelinfo

Sakstype
Bruksendring
Bygningstype
Fritidsbolig
Bruksareal
120 m²
Boenheter
1
Kommune
Sande
Fylke
Møre og Romsdal
Gnr / Bnr
6 / 209
Saksnummer
2021/398
Fase
Ferdigattest

Om byggesaken

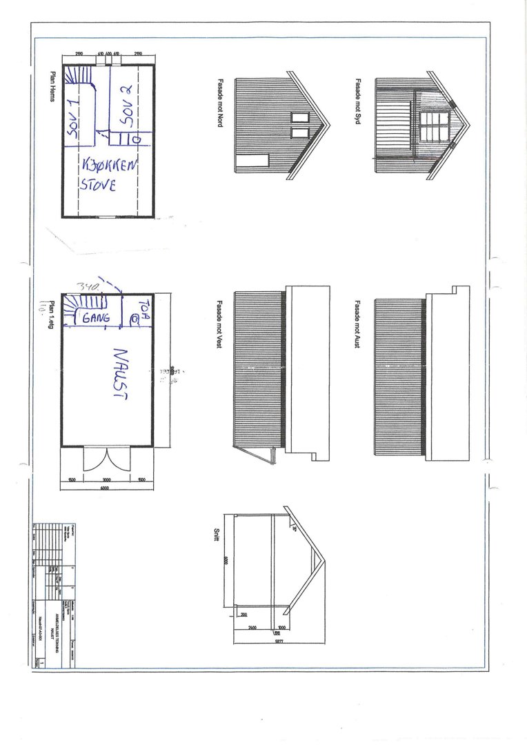
Eksisterende naust på 120 m² med to etasjer og saltakskonstruksjon er ombygd til fritidsbolig. Bygningen har tre fasader i tre med dobbelfalset bordkledning og saltak, med totalt 3 vinduer og 2 dører. Konstruksjonen består av støpt plate i ringmur, 4 toms reisverk med ekspansjonsbolter og kryssfiner i hjørner. Bygningen har fått dispensasjon for bruksendring og oppgradering til sikkerhetsklasse S2, med krav om tett tank for kloakk. Tiltaket inkluderer tilknytning til offentlig vannforsyning og godkjent avløpsløsning. Det foreligger ferdigattest for tiltaket.

Produkter og materialer

VVS Avløpssystem med tett tank

Tett tank for kloakk med varsling for tømming

Avløpsløsning med tett tank for kloakk iht. vilkår i dispensasjon

Vinduer Fasadevindu

🧱 Tre eller aluminium (ikke spesifisert)

Antall: 3

Fasadevindu i tre fasader, totalt 3 stk

VVS Vannforsyning

Tilknytning til offentlig vannforsyning

Vannforsyning til bygningen via offentlig nett

Fasade Dobbelfalset bordkledning

🧱 Tre

Utvendig kledning på naustet, dobbelfalset bordkledning

Utvendig trepanel som fasadekledning

Elektro Elektrisk anlegg

Elektrisk oppvarming med panelovner og elektriske installasjoner

Elektrisk anlegg for oppvarming og strømforsyning

Tak Saltak

🧱 Tre

Saltakskonstruksjon over hele bygget

Saltak i tre over bygningen

Tømrer Reisverk og skråstag

🧱 Tre

4 toms reisverk med 16 mm ekspansjonsbolter, 6 toms skråstag i hjørner

Bærekonstruksjon i tre med forsterkninger i hjørner

Grunnarbeid Ringmur og plate

🧱 Betong

Støpt plate inne i ringmur

Fundamentering med ringmur og støpt plate

Dører Ytterdør

Antall: 2

Ytterdører i nord- og sørfasade, totalt 2 stk

Fasader

Enebolig

Nord
Materiale
Tre
Taktype
Saltak
Vinduer
2
Dører
1
Synlige etasjer
1
Sør
Materiale
Tre
Taktype
Saltak
Vinduer
1
Dører
1
Synlige etasjer
1
Vest
Materiale
Tre
Taktype
Saltak
Vinduer
0
Dører
0
Synlige etasjer
1
Øst
Materiale
Tre
Taktype
Saltak
Vinduer
0
Dører
0
Synlige etasjer
1

Hendelser

17.04.2026 Ferdigattest - Gjerdsvikvegen, 6083 Gjerdsvika - Gnr 6 bnr 209
16.04.2026 Endra vedlegg - Søknad om ferdigattest - Gnr 6 bnr 209
14.04.2026 Søknad om ferdigattest - Gjerdsvikvegen, 6083 Gjerdsvika - Gnr 6 bnr 209
27.03.2026 Tilbakemelding om manglar i søknad om ferdigattest - Gjerdsvikvegen - Gnr 6 bnr 209
13.03.2026 Søknad om ferdigattest - Gjerdsvikvegen, 6083 Gjerdsvika - Gnr 6 bnr 209
26.02.2026 Oppmoding om korrigering av vedtak og registrering av dispensasjonar frå kommuneplanen og byggeforbodet i strandsona - Gnr 6 bnr 209
10.06.2021 Løyve til tiltak - Bruksendring av eigedom frå naust til fritidsbustad - Gjerdsvikvegen, 6083 Gjerdsvika - gnr 6 bnr 209
23.04.2021 Gnr 6 bnr 209 - Søknad om løyve til bruksendring