ChangeOfUse UnderBehandling Fritidsbolig

Bruksendring og fasadeendring på fritidsbolig i Lerdalsveien 37, Hvaler

📍 Lerdalsveien 37 , 1684 VESTERØY

Nøkkelinfo

Sakstype
Bruksendring
Bygningstype
Fritidsbolig
Bruksareal
97 m²
Boenheter
1
Kommune
Hvaler
Fylke
Østfold
Gnr / Bnr
50 / 57
Saksnummer
2026/69
Fase
Under behandling

Om byggesaken

Eksisterende fritidsbolig på 96,8 m² i Lerdalsveien 37 gjennomgår bruksendring fra tilleggsdel til hoveddel ved innbygging av en tidligere overbygd terrasse. Den frittstående boden på 4,1 m² rives, noe som reduserer samlet bruksareal fra 100,9 m² til 96,8 m². Fasadeendringen innebærer fjerning av en stor skyvedør med glassflate som erstattes med yttervegger og mindre vinduer, noe som gir redusert glassareal og visuell eksponering. Byggets fotavtrykk utvides ikke, og det gjøres ingen nye terrenginngrep. Fasaden males i rødt for å dempe visuell eksponering, og det stilles vilkår om naturtilpassede materialer og farger. Det etableres to nye rom innvendig: et lite bad på 2,2 m² og et soverom på 4,9 m². Terrasser reduseres til maks 40 m², inkludert trapper. Bygget har saltak med tegl, og fasadene er i tre med rødbrun farge.

Produkter og materialer

Tømrer Innbygging av terrasse

🧱 Trekonstruksjoner

Innbygging av eksisterende overbygd terrasse innenfor eksisterende bygningsvolum

Tømrerarbeid for å omgjøre terrasse til innvendig areal

Fasade Trepanel

🧱 Tre, rødmalt

Fasade i tre med rødmalt farge, listverk og vindskier males i samme rødfarge for nedtoning

Fasadeendring med ny trepanel og fargeendring for redusert visuell eksponering

Grunnarbeid Riving og opprydding

Riving av utebod og fjerning av privatiserende elementer som flaggstang, samt dokumentasjon med foto

Opprydding på tomten for å redusere bygningsmasse og privatisering

Innvendig Soverom

Antall: 1

Nytt soverom på 4,9 m² innredet i tidligere terrasseareal

Innvendig ombygging for nytt soverom

Maling Fasademaling

🧱 Avdempet, naturtilpasset rødfarge

Maling av fasade, listverk, vindskier og vindusrammer i samme rødfarge for nedtoning

Fargevalg for å redusere visuell eksponering i landskapet

Vinduer Fasadevindu

🧱 Tre med rødmalt ramme

Antall: 10

Redusert glassareal sammenlignet med eksisterende stor skyvedør, vinduer i mindre omfang

Nye vinduer i fasaden som erstatter stor skyvedør, med mindre glassflater for redusert visuell eksponering

Dører Ytterdør

🧱 Tre, rødmalt

Antall: 4

Dører i fasade, inkludert erstatning for skyvedør

Nye ytterdører i rødmalt tre som del av fasadeendring

Terrasse Platting

🧱 Tre

Eksisterende terrasseareal reduseres til maks 40 m² inkludert trapper

Reduksjon av terrasseareal for å oppfylle kommuneplanens krav

Innvendig Bad

Antall: 1

Nytt bad/toalett på 2,2 m² innredet i tidligere terrasseareal

Innvendig ombygging for nytt bad

Tak Saltak med teglstein

🧱 Teglstein

Eksisterende saltak med teglstein beholdes, gesims- og mønehøyder uendret

Takmateriale og form beholdes som eksisterende

Riving Frittstående bod

Antall: 1

Riving av frittstående bod på 4,1 m²

Fjerning av separat bod for å redusere samlet bygningsmasse

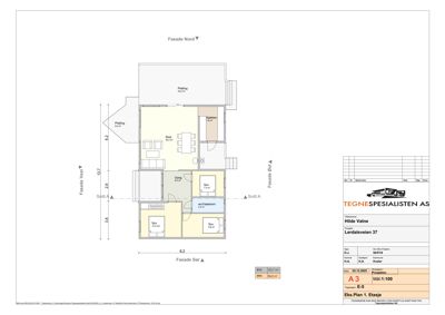
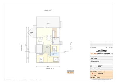
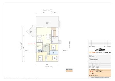
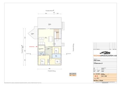
Plantegning

Enebolig 103.7 m²

Etasje 1 103.7 m²

Rom Areal Vinduer Dører
Platting 101 34.2 m² 0 1
Platting 102 9.2 m² 0 1
Stue 103 31.1 m² 1 1
Kjøkken 104 7.6 m² 1 1
Sov/opphold 105 4.9 m² 1 1
Gang 106 8.0 m² 0 3
Sov 107 7.3 m² 1 1
Bad 108 4.2 m² 0 1
Sov 109 12.5 m² 1 1
Bad 110 2.2 m² 0 1
Sov 111 8.8 m² 1 1
Platting Platting 34.2 m² 0 0
Stue Stue 32.2 m² 1 1
Kjøkken Kjøkken 7.6 m² 0 1
Gang Gang 8.4 m² 0 2
Sov Sov 7.3 m² 0 1
wc/Vaskerom wc/Vaskerom 4.2 m² 0 1

Fasader

Enebolig

Vest
Materiale
Tre
Taktype
Flatt tak
Takmat.
Tegl
Høyde
4.0 m
Vinduer
4
Dører
1
Synlige etasjer
1
Nord
Materiale
Tre
Taktype
Saltak
Takmat.
Tegl
Vinduer
2
Dører
1
Balkonger
1
Synlige etasjer
1
Øst
Materiale
Tre
Taktype
Saltak
Takmat.
Tegl
Høyde
3.4 m
Vinduer
4
Dører
1
Synlige etasjer
1
Sør
Materiale
Tre
Taktype
Saltak
Takmat.
Tegl
Høyde
3.3 m
Mønehøyde
3.4 m
Vinduer
0
Dører
0
Synlige etasjer
1

Hendelser

17.04.2026 Dispensasjon og ett-trinns tillatelse til bruksendring - fasadeendring - 50/57 - Lerdalsveien 37, Vesterøy
15.04.2026 Uttalelse - dispensasjon - bruksendring tilleggsdel - 50/57 - Lerdalsveien 37
15.04.2026 Dispensasjon og ett-trinns tillatelse til bruksendring - fasadeendring - 50/57 - Lerdalsveien 37, Vesterøy
20.03.2026 Oversendelse av sak til uttalelse - dispensasjon - bruksendring - fasadeendring - 50/57 - Lerdalsveien 37
20.03.2026 Uttalelse til søknad om dispensasjon for bruksendring og fasadeendring - 50/57 - Lerdalsveien 37
13.01.2026 Søknad ett-trinn - bruksendring - fasadeendring - 50/57 - Lerdalsveien 37