ChangeOfUse Igangsettingstillatelse Fritidsbolig

Rehabilitering og bruksendring av fritidsbolig i Strandveien, Fredvang

📍 Strandveien 1 , 8387 FREDVANG

Nøkkelinfo

Sakstype
Bruksendring
Bygningstype
Fritidsbolig
Bruksareal
265 m²
Boenheter
1
Kommune
Flakstad
Fylke
Nordland - Nordlánnda
Gnr / Bnr
23 / 50
Saksnummer
23/23
Fase
Igangsettingstillatelse

Om byggesaken

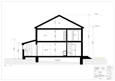
Eksisterende fritidsbolig på 265 m² over to etasjer med loft og krypkjeller rehabiliteres og tilbakeføres til opprinnelig form og fasade slik den fremstod rundt 1920. Bygget har saltak som tilbakeføres med torvtak, og kledning og vinduer skiftes ut for å bevare byggets historiske karakter. Tiltaket inkluderer vesentlig reparasjon av bygningskroppen, påbygg og tilbygg, samt bruksendring fra bolig til fritidsbolig. Bygningen er oppført i tre med reisverk av slettskåret rundtømmer og har en ringmur av tørrmur. Det er gitt dispensasjon fra kommuneplanens arealdel for areal og etasjeantall, samt fra veglovens byggegrense. Vannforsyning løses med privat brønn og septiktank, da offentlig vann og avløp ikke er tilgjengelig i området.

Produkter og materialer

Vinduer Fasadevindu

🧱 Tre, nye vinduer som tilsvarer opprinnelig stil

Antall: 20

Skifte ut vinduer for å tilbakeføre byggets opprinnelige uttrykk

Nye vinduer i tre for fasadene, tilpasset historisk stil

Gulv Innvendige gulv

🧱 Eikeparkett eller tilsvarende

Nye gulv i oppholdsrom for å matche byggets stil

Innvendige gulv i tre for oppholdsrom

Tak Saltak med torvtak

🧱 Torv på saltak

Tilbakeføring av takform og taktekking med torv som opprinnelig

Rehabilitering av tak med opprinnelig saltakform og torvtak

Fasade Kledning

🧱 Tre, liggende su panel

Skifte ut eksisterende kledning med ny i tre som tilsvarer opprinnelig utførelse

Ny kledning i tre for å tilbakeføre fasaden til opprinnelig utseende

Elektro Elektrisk installasjon

Oppgradering av elektrisk anlegg i bygget

Elektrisk installasjon tilpasset rehabilitert fritidsbolig

Dører Ytterdører i tre

🧱 Tre

Antall: 2

Nye ytterdører i tre som matcher byggets historiske stil

Ytterdører tilpasset opprinnelig byggestil

Betong Krypkjeller

Rehabilitering av krypkjeller under bygget

Oppgradering av krypkjeller for bedre konstruksjon

Tømrer Bærende konstruksjoner

🧱 Tre

Rehabilitering og forsterkning av bærende trekonstruksjoner

Tømrerarbeid for å sikre byggets bæreevne

Grunnarbeid Ringmur og fundament

🧱 Tørrmur i stein

Rehabilitering og forsterkning av eksisterende tørrmur som ringmur

Oppgradering av fundament og ringmur for stabilitet

VVS Privat vann og avløp

Brønnboring for vannforsyning og septiktank for avløp på egen tomt

Privat vann- og avløpsløsning da offentlig nett ikke er tilgjengelig

Grunnarbeid Tomtearbeid

Oppmåling, utstikking og grunnarbeider for rehabilitering og tilbygg

Grunnarbeid for å sikre korrekt plassering og fundamentering

Terrasse Uteareal og parkeringsplass

Antall: 15

Opparbeidelse av parkeringsplass på terreng ca 15 m²

Parkeringsareal på egen tomt i tilknytning til fritidsboligen

Maling Utvendig og innvendig maling

Maling av fasade og innvendige flater for å tilbakeføre opprinnelig uttrykk

Overflatebehandling for beskyttelse og estetikk

Fasader

Enebolig

Vest
Materiale
Tre
Taktype
Saltak
Høyde
8.1 m
Vinduer
5
Dører
0
Synlige etasjer
2

Lodge Lofoten

Nord
Materiale
Tre
Taktype
Flatt tak
Høyde
8.1 m
Vinduer
5
Dører
0
Synlige etasjer
1
Øst
Materiale
Tre
Taktype
Saltak
Vinduer
4
Dører
1
Synlige etasjer
2

Lodge

Sør
Materiale
Tre
Taktype
Saltak
Høyde
8.1 m
Vinduer
6
Dører
1
Synlige etasjer
2

Hendelser

20.04.2026 Igangsettingstillatelse - gnr 23 bnr 50 - Strandveien - Vesentlig reparasjon, fasadeendring og bruksendring
16.04.2026 Supplering av søknad 23/50
10.10.2023 Dispensasjon - lensmannsgården Fredvang - gbn 23/50