FacadeChange Rammetillatelse Fritidsbolig

Fasadeendring med nye vinduer og balkongdør på Ekelund 6

📍 Ekelund 6 , 3484 HOLMSBU

Nøkkelinfo

Sakstype
Fasadeendring
Bygningstype
Fritidsbolig
Boenheter
1
Kommune
Asker
Fylke
Akershus
Gnr / Bnr
323 / 168
Saksnummer
26/903
Fase
Rammetillatelse

Om byggesaken

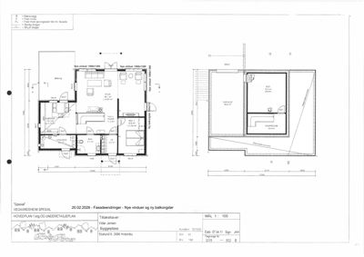
Fasadeendring på eksisterende fritidsbolig på Ekelund 6 i Holmsbu. Tiltaket omfatter utskifting av to enkle vinduer med doble vinduer på vestfasaden, innsetting av et nytt dobbeltvindu og erstatning av et eksisterende vindu med balkongdør på nordfasaden. Endringene skjer innenfor eksisterende bygningskropp uten utvidelse av areal eller volum. Vinduer og balkongdør tilpasses hyttas arkitektoniske uttrykk med tilsvarende karm- og rammeprofil, oppdeling, materialvalg og farge. Formålet er å forbedre dagslys og brukskvalitet i oppholdsrom samt oppgradere fasadeelementene til mer tidsriktige og funksjonelle løsninger.

Produkter og materialer

Dører Balkongdør

Antall: 1

Balkongdør 100 x 210 cm som erstatter eksisterende vindu på nordfasade

Erstatning av eksisterende vindu med balkongdør for bedre brukskvalitet

Vinduer Doble vinduer

Antall: 3

Vinduer 1988 x 1388 mm, doble vinduer som erstatter to enkle vinduer på vestfasade og ett nytt dobbeltvindu på nordfasade

Utskifting av to enkle vinduer med doble vinduer på vestfasade og innsetting av nytt dobbeltvindu på nordfasade

Tømrer Byggearbeid i bærende konstruksjoner

Arbeid i bærende konstruksjoner for utskifting av vinduer og balkongdør, inkludert bryting av brannceller

Utførelse av byggearbeid i bærende konstruksjoner i forbindelse med fasadeendring

Fasade Trepanel

🧱 Tre

Fasade i tre med tilpasning av karm- og rammeprofil, oppdeling og farge til eksisterende hytte

Tilpasning av nye vinduer og balkongdør til eksisterende trefasade for å opprettholde byggets arkitektoniske uttrykk

Grunnarbeid Ingen nye grunnarbeider

Ingen utvidelse av areal eller volum, tiltak innenfor eksisterende bygningskropp

Ingen nye grunnarbeider nødvendig da tiltaket er begrenset til fasadeendring

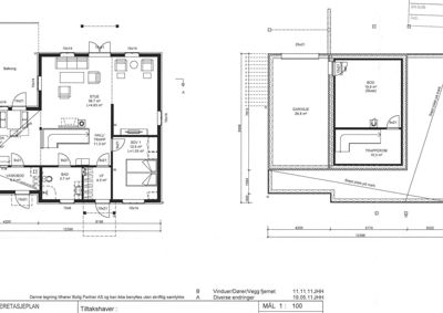
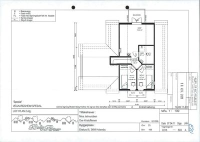
Plantegning

Enebolig 289.2 m²

Etasje 1 120.5 m²

Rom Areal Vinduer Dører
STUE 101 38.7 m² 3 1
KJØKKEN 102 15.1 m² 1 1
HALL/TRAPP 103 11.3 m² 0 2
SOV 1 104 12.6 m² 1 1
BAD 105 5.7 m² 0 1
VASK/BOD 106 6.4 m² 1 1
VF 107 4.0 m² 1 1
BALKONG 108 0.0 m² 0 1

Etasje 0 66.9 m²

Rom Areal Vinduer Dører
GARASJE U01 26.8 m² 0 1
BOD U02 19.9 m² 0 1
TRAPPEROM U03 10.3 m² 0 1
GARASJE 001 26.8 m² 0 1
BOD 002 19.9 m² 1 1
TRAPPEROM 003 10.3 m² 0 1

Etasje 2 101.8 m²

Rom Areal Vinduer Dører
Disp 201 19.2 m² 0 1
Gang/Trapp 202 4.5 m² 0 2
Bad 203 5.7 m² 0 1
Sov 2 204 8.7 m² 1 1
Sov 3 205 8.7 m² 1 1
Garderobe 206 0.0 m² 0 1
Garderobe 207 0.0 m² 0 1

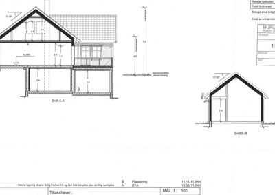
Fasader

Enebolig

Nord
Materiale
Tre
Taktype
Saltak
Takmat.
Tegl
Høyde
3.4 m
Mønehøyde
8.2 m
Vinduer
3
Dører
1
Balkonger
1
Synlige etasjer
2
Vest
Materiale
Tre
Taktype
Saltak
Takmat.
Tegl
Høyde
6.5 m
Mønehøyde
8.2 m
Vinduer
4
Dører
1
Balkonger
2
Synlige etasjer
2
Øst
Materiale
Tre
Taktype
Saltak
Takmat.
Tegl
Høyde
3.3 m
Mønehøyde
3.5 m
Vinduer
4
Dører
2
Balkonger
1
Synlige etasjer
2
Sør
Materiale
Tre
Taktype
Saltak
Takmat.
Tegl
Høyde
6.5 m
Mønehøyde
8.2 m
Vinduer
1
Dører
1
Balkonger
2
Synlige etasjer
2

Hendelser

21.04.2026 323/168 Ekelund 6 - Tillatelse til tiltak i ett trinn for fasadeendring
16.04.2026 323/168 Ekelund 6 - Mailkorrespondanse vedr saksbehandlingstid
09.04.2026 323/168 Ekelund 6 - Ber om status
19.03.2026 323/168 Ekelund 6 - Søknad om tillatelse i ett trinn - Fasadeendring - Fritidsbolig