NewConstruction Rammetillatelse Fritidsbolig

Ny fritidsbolig med garasje på Dammen 87, Notodden

📍 124/14 , 3652 HOVIN I TELEMARK

Nøkkelinfo

Sakstype
Nybygg
Bygningstype
Fritidsbolig
Bruksareal
138 m²
Boenheter
1
Kommune
Notodden
Fylke
Telemark
Gnr / Bnr
124 / 14
Saksnummer
2025/9511
Fase
Rammetillatelse

Om byggesaken

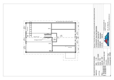
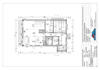
Ny fritidsbolig på ett plan med bruksareal 95 m² og bebygd areal 109 m², kledd med trepanel og saltak med takvinkel 27 grader, tekket med matt, mørk shingel. Bygget har loftsareal uten måleverdig bruksareal og inkluderer terrasse på ca. 9 m². Ny garasje i samme stil som fritidsboligen, med bruksareal 43 m² og bebygd areal 50 m², saltak med gesims- og mønehøyde henholdsvis 2,9 m og 4,3 m. Garasjen har tilhørende bod på 9,1 m². Eiendommen ligger i etablert hytteområde, ca. 20 meter fra strandlinjen til Reisjåvatn, med dispensasjon for byggegrense mot vann og arealoverskridelse for garasje. Det er minimalt med terrenginngrep, og tiltaket inkluderer privat avløpsanlegg med tett tank og gråvannsfilter. Tiltaket er tilrettelagt for universell tilgjengelighet og medisinske hensyn.

Produkter og materialer

Dører Ytterdører

🧱 Tre

Antall: 7

Ytterdører i fritidsbolig og garasje

Ytterdører for fritidsbolig og garasje

Fasade Trepanel

🧱 Tre

Trepanel på fritidsbolig og garasje

Ytterkledning i trepanel for fritidsbolig og garasje

Betong Fundament og radonsperre

🧱 Betong

Fundament inkl. radonsperre for fritidsbolig og garasje

Betongfundament med radonsperre

Pipe Elementpipe

🧱 Isola elementpipe

Antall: 1

Elementpipe montert i fritidsbolig

Pipe for ildsted i fritidsbolig

Tømrer Innvendig tømrerarbeid

Innvendig tømrerarbeid i fritidsbolig og garasje

Innvendig tømrerarbeid for fritidsbolig og garasje

Vinduer Fasadevindu

🧱 Tre/aluminium

Antall: 8

Vinduer med sprosser, rektangulær fasong, moderat størrelse

Vinduer i fritidsbolig og garasje

Maling Innvendig og utvendig maling

Maling av trepanel og innvendige flater

Maling av trepanel og innvendige overflater

Grunnarbeid Terrengarbeid

Mindre terrengtilpasning med inntil 0,6 m skjæring og 0,5 m fylling

Terrengarbeid for tilpasning av ny fritidsbolig

Bad Våtrom og membran

Våtromsarbeid med membran, montering av ildsted og pipe

Våtromsarbeid og membran i fritidsbolig

Elektro Elektrisk installasjon

Elektrisk installasjon i fritidsbolig og garasje

El-installasjon for fritidsbolig og garasje

Garasjeport Garasjeport

🧱 Tre

Antall: 1

Garasjeport i tre, saltak over

Garasjeport for garasje på 43 m² BRA

VVS Privat avløpsanlegg

🧱 Tett tank, Jetz toalettløsning, gråvannsfilter Vera Compact F1

Antall: 1

Privat avløpsanlegg med tett tank på 3000 liter, Jetz toalettløsning og gråvannsfilter

Avløpsanlegg for fritidsbolig

Tak Saltak

🧱 Shingel

Antall: 2

Takvinkel 27 grader, matt mørk shingel på fritidsbolig og garasje

Saltak med shingeltekking på fritidsbolig og garasje

Ventilasjon Ventilasjonssystem

Ventilasjon i fritidsbolig

Ventilasjon for fritidsbolig

Isolasjon Isolasjon i vegger og tak

Isolasjon i reisverk for fritidsbolig og anneks

Isolasjon for fritidsbolig og anneks

Rekkverk Terrasserekkverk

Rekkverk på terrasse ca. 9 m²

Rekkverk for terrasse ved fritidsbolig

Terrasse Markterrasse

🧱 Tre

Antall: 1

Terrasse på ca. 9 m² ved fritidsbolig

Terrasse i tre på marknivå

Gulv Fliser og gulvbelegg

Flislagt gulv i våtrom, gulvbelegg på vaskerom

Gulvbelegg og fliser i våtrom i fritidsbolig

Fasader

Garasje

Ukjent
Materiale
Tre
Taktype
Saltak
Vinduer
2
Dører
1
Synlige etasjer
1
Vest
Materiale
Tre
Taktype
Saltak
Takmat.
Shingel
Høyde
2.9 m
Mønehøyde
4.3 m
Vinduer
2
Dører
1
Synlige etasjer
1

Enebolig

Ukjent
Materiale
Tre
Taktype
Saltak
Vinduer
3
Dører
1
Synlige etasjer
1

Fritidsbolig

Øst
Materiale
Tre
Taktype
Saltak
Takmat.
Shingel
Høyde
3.3 m
Mønehøyde
5.4 m
Vinduer
2
Dører
1
Synlige etasjer
1
Nord
Materiale
Tre
Taktype
Saltak
Takmat.
Shingel
Høyde
3.3 m
Mønehøyde
5.4 m
Vinduer
3
Dører
2
Synlige etasjer
1
Sør
Materiale
Tre
Taktype
Saltak
Takmat.
Shingel
Høyde
3.3 m
Mønehøyde
5.4 m
Vinduer
2
Dører
1
Synlige etasjer
1
Vest
Materiale
Tre
Taktype
Saltak
Takmat.
Shingel
Høyde
3.3 m
Mønehøyde
5.4 m
Vinduer
1
Dører
1
Synlige etasjer
1

Hendelser

14.04.2026 Søknad om garasje på Drammen 87 - gnr 124/14
23.03.2026 Godkjenning - Søknad uten ansvarsrett - Garasje - Dammen 87 - gnr. 124/14
30.01.2026 Godkjenning - Ett-trinns søknad - Ny fritidsbolig og garasje - VA-anlegg - Dispensasjon pbl og kommuneplanens areldel - Dammen 87 - gnr. 124/14
08.12.2025 Ett-trinns søknad - Riving og oppføring av fritidsbolig med anneks/garasje og tilhørende søknader - Dammen 87 - gnr. 124/14