NewConstruction Rammetillatelse Fritidsbolig

Ny fritidsbolig med uthus og vei i Apallveien 101, Tvedestrand

📍 Apallveien 101 , 4904 TVEDESTRAND

Nøkkelinfo

Sakstype
Nybygg
Bygningstype
Fritidsbolig
Bruksareal
98 m²
Boenheter
1
Kommune
Tvedestrand
Fylke
Agder
Gnr / Bnr
94 / 30
Saksnummer
2025/3280
Fase
Rammetillatelse

Om byggesaken

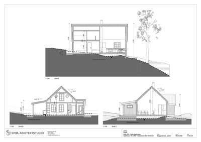
Ny fritidsbolig på ca. 79,5 m² oppvarmet bruksareal fordelt på en etasje og innredet loft med skråtak, samt et uthus på ca. 16,5 m² BRA. Hytta har tradisjonell utforming med saltak og takvinkel på inntil 43 grader, tilpasset det historiske bygningsmiljøet på Apallen. Uthuset er plassert på et flatere parti i terrenget, med saltak og rød trekledning. Tomten opparbeides med natursteinsmur, terrengtrapper i stein, og sti til brygge. Det etableres felles vei og parkeringsplass med minimal terrenginngrep, og eksisterende murer bevares. Bygningene har til sammen et bruksareal på ca. 98 m², og tiltaket er tilknyttet privat vannverk og offentlig avløp. Dispensasjoner er gitt for plassering i strandsonen, takvinkel, uthusets størrelse og veiens plassering.

Produkter og materialer

Veg Felles vei og parkeringsplass

Felles vei for to eiendommer, tilpasset terreng og bevaring av eksisterende murer

Opparbeidelse av vei og parkeringsplass med minimal terrenginngrep

Tak Saltak

🧱 Tegl

Antall: 2

Takvinkel inntil 43 grader på hytte, 30 grader på uthus, tegl taktekking

Saltak med tegltekking på hytte og uthus

Tømrer Bygging av fritidsbolig og uthus

🧱 Trekonstruksjoner

Tradisjonell byggeskikk, tilpasset kulturmiljø, inkludert boder og oppholdsrom

Tømrerarbeid for fritidsbolig og uthus

VVS Vannforsyning og avløp

Tilknyttet privat vannverk DAVA og offentlig avløpsanlegg

Vann- og avløpsinstallasjoner til fritidsbolig

Vinduer Fasadevindu

🧱 Tre

Antall: 14

Flere vinduer er gamle bygningsdeler fra Apallen

Vinduer i fritidsbolig og uthus, tilpasset kulturmiljø

Dører Ytterdører

🧱 Tre

Antall: 7

Flere dører er gamle bygningsdeler fra Apallen

Ytterdører til fritidsbolig og uthus

Fasade Trekledning

🧱 Tre

Rød farge, tilpasset kulturmiljø

Trekledning på fritidsbolig og uthus

Rekkverk Smijernsrekkverk

🧱 Smijern

Rekkverk på natursteinsmur for sikkerhet og estetikk

Rekkverk på mur for trygg ferdsel og landskapstilpasning

Grunnarbeid Tomteopparbeidelse

🧱 Stedegne steiner

Natursteinsmur, terrengtrapper i stein, opparbeidelse av sti til brygge

Opparbeidelse av uteområder med natursteinsmur og terrengtilpasning

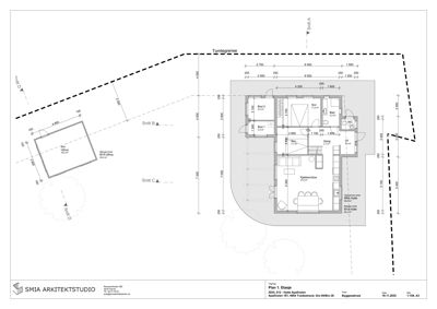
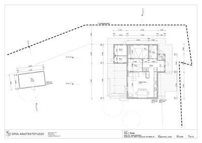
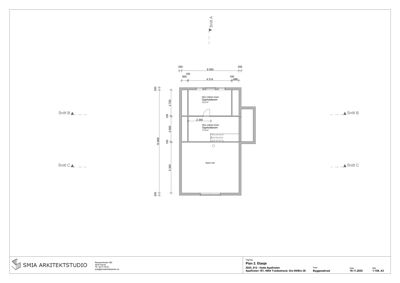
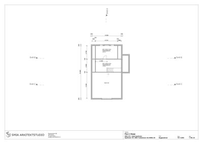
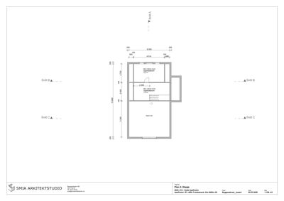
Plantegning

Enebolig 30.6 m²

Etasje 2 30.6 m²

Rom Areal Vinduer Dører
Oppholdsrom 201 12.2 m² 2 1
Oppholdsrom 202 11.4 m² 1 1
Gang 203 7.0 m² 1 1

Hytte 128.9 m²

Etasje 1 90.3 m²

Rom Areal Vinduer Dører
Bod 2 Bod 2 5.3 m² 1 1
Bod 1 Bod 1 3.3 m² 0 1
Soverom Sov 7.7 m² 1 2
Bad Bad 4.3 m² 0 1
WC WC 1.3 m² 0 1
Gang Gang 7.7 m² 0 3
Vaskerom VF 3.2 m² 1 1
Kjøkken/stue Kjøkken/stue 31.8 m² 2 1
Kjøkken/stue Kj 31.8 m² 2 2
Soverom Sov1 7.7 m² 1 2
Soverom Sov2 11.3 m² 1 2
Bod Bod1 3.3 m² 0 1
Bod Bod2 5.3 m² 0 1

Etasje 2 38.6 m²

Rom Areal Vinduer Dører
Oppholdsrom 12.2 m² 0 1
Oppholdsrom 11.4 m² 0 0
Apent ned 15.0 m² 1 0

Uthus 34.6 m²

Etasje 0 34.6 m²

Rom Areal Vinduer Dører
Oppholdsrom 101 12.2 m² 0 1
Oppholdsrom 102 11.4 m² 0 0
Apen ned 103 11.0 m² 2 0

Fasader

Uthus

Sør
Materiale
Tre
Taktype
Saltak
Takmat.
Tegl
Høyde
2.5 m
Mønehøyde
4.3 m
Vinduer
2
Dører
0
Synlige etasjer
1
Vest
Materiale
Tre
Taktype
Saltak
Takmat.
Tegl
Høyde
2.5 m
Mønehøyde
4.3 m
Vinduer
2
Dører
0
Synlige etasjer
1
Nord
Materiale
Tre
Taktype
Saltak
Takmat.
Tegl
Høyde
2.5 m
Mønehøyde
4.3 m
Vinduer
2
Dører
1
Synlige etasjer
1
Øst
Materiale
Tre
Taktype
Saltak
Takmat.
Tegl
Høyde
2.5 m
Mønehøyde
4.3 m
Vinduer
2
Dører
0
Synlige etasjer
1

Hendelser

19.03.2026 Vedtak: 94/30/0/0 - Apallveien 101 - Fritidsbolig, vei og parkeringsplass, dispensasjon
16.03.2026 Snitt med kotehøyde
06.03.2026 Reviderte tegninger etter uttalelse
11.02.2026 Utsendelse av Statsforvalters uttalelse: 94/30
06.02.2026 Uttalelse til søknad om dispensasjon for oppføring av ny hytte og uthus samt opparbeidelse av uteområder
16.01.2026 Mottaksbrev - 94/30/0/0 - Apallveien 101 - nytt bygg - Fritidsbolig, vei og parkeringsplass
16.01.2026 Til forhåndsuttalelse hos Statsforvalteren
09.12.2025 Apallveien 101 Søknad om tillatelse i ett trinn 94/30