SitePlan
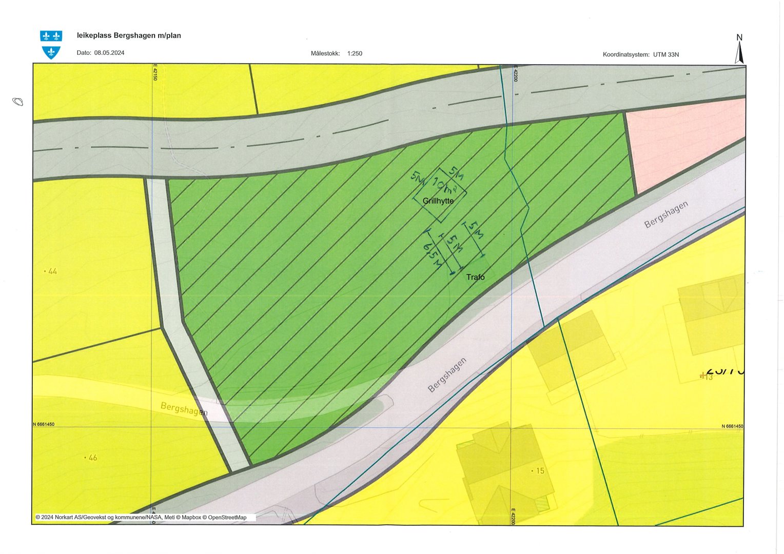
Situasjonsplan som viser tomtens beliggenhet i forhold til veier (Bergshagen), nabotomter og planlagt plassering av grilling og trafikk.
1 / 1
NewConstruction
Avslatt
Fritidsbolig
Oppføring av grillhytte på lekeplass i Bergshagen, Røldal
📍 Bergshagen 18 , 5760 RØLDAL
Nøkkelinfo
- Sakstype
- Nybygg
- Bygningstype
- Fritidsbolig
- Kommune
- Ullensvang
- Fylke
- Vestland
- Gnr / Bnr
- 27 / 44
- Saksnummer
- 2024/1908
- Fase
- Avslått
Om byggesaken
Ny frittstående grillhytte skal oppføres på lekeplassen i Bergshagen, Røldal. Grillhytta er planlagt som et åpent bygg tilgjengelig for allmennheten, plassert på kommunalt regulert fellesareal. Bygget skal plasseres med minst 5 meters avstand til nærliggende trafostasjon og uten konflikt med vann-, avløps- eller elektriske kabler. Prosjektet omfatter plassering, utforming og tekniske forhold knyttet til grillhytta, men detaljer om størrelse og materialer mangler i dokumentasjonen.
Produkter og materialer
Fasade
Åpen grillhytte
Antall: 1
Åpen grillhytte plassert på kommunalt fellesareal, minst 5 meter fra trafostasjon
Frittstående åpen grillhytte for allmenn bruk på lekeplass
Tømrer
Bygging av grillhytte
Antall: 1
Tømrerarbeid for oppføring av grillhytte
Grunnarbeid
Fundamentering og plassering
Antall: 1
Plassering på regulert fellesareal med hensyn til avstand til trafostasjon og infrastruktur
Grunnarbeid for oppføring av grillhytte på lekeplass
Hendelser
13.04.2026
Vedtak - avvising av søknad - Gnr. 27 , bnr. 44 - Røldal - grillhytte
27.11.2024
Tilbakemelding om manglar - gnr. 27, bnr. 44 - Bergshagen, Røldal - grillhytte
13.05.2024
Søknad om tiltak - grillhytte i Røldal