NewConstruction UnderBehandling Fritidsbolig

Oppføring av utleiehytter og bryggeanlegg i Bjørkenesveien 4, Risør

📍 Bjørkenesveien 4 , 4957 RISØR

Nøkkelinfo

Sakstype
Nybygg
Bygningstype
Fritidsbolig
Bruksareal
281 m²
Boenheter
2
Kommune
Tvedestrand
Fylke
Agder
Gnr / Bnr
69 / 43
Saksnummer
2025/2200
Fase
Under behandling

Om byggesaken

Prosjektet omfatter oppføring av to nye utleiehytter med tilhørende bobilparkering og bryggeanlegg på eiendommen Bjørkenesveien 4 i Risør. Totalt bebygd areal er 752 m² med et bruksareal på 281 m². Sanitæranlegg inngår i prosjektet, men teknisk anlegg/sanitærbygget er ikke inkludert i denne søknaden og vil eventuelt søkes separat. Utleiehyttene er planlagt med moderne arkitektonisk uttrykk, lav mønehøyde på 3,5 meter, og jordfarget trepanel som kledning. Bryggeanlegget er redusert i størrelse til ca. 32 m² for å tilpasses natur- og friluftshensyn. Prosjektet inkluderer også fire bobiloppstillingsplasser, parkeringsplasser, lekeareal og tilrettelegging for båtplasser. Byggene plasseres innenfor byggegrense på minst 15 meter fra strandlinjen, med hensyn til naboer og landskap. Tiltaket er i tråd med kommuneplanens arealformål næringsvirksomhet og vurderes som et positivt bidrag til lokal turisme og næringsutvikling.

Produkter og materialer

Trapper Innvendig trapp

Antall: 1

Innvendig trapp i enebolig

Innvendig trapp i utleiehytte

Terrasse Terrasseoverdekket

🧱 Tre

Terrasseoverdekket ved utleiehytter

Terrasseoverdekket for oppholdsareal ved utleiehytter

Brygge Trebrygge

🧱 Tre

Antall: 3

Bryggeanlegg redusert fra 100 m² til ca. 32 m², med longside parkering av båter

Bryggeanlegg for båtplasser til utleiehyttene

VVS Sanitæranlegg

Sanitæranlegg med dusj, WC og teknisk rom på 49,7 m²

Sanitæranlegg for utleiehytter

Garasjeport Bobilparkering

Antall: 4

Fire faste plasser for bobiloppstilling

Oppstillingsplasser for bobiler

Dører Ytterdør

🧱 Tre/aluminium ikke spesifisert

Antall: 11

Ytterdører i utleiehytter og sanitærbygg

Ytterdører for utleiehytter og sanitærbygg

Fasade Trepanel kledning

🧱 Tre, jordfarget

Oppløst form med matte jordfargede materialer

Fasade med trepanel i jordfarger for utleiehyttene og sanitæranlegg

Betong Grunnmur og fundament

🧱 Betong

Grunnmur og fundament for utleiehytter og sanitærbygg

Elektro Elektrisk installasjon

Elektrisk anlegg i utleiehytter og sanitærbygg

Elektrisk installasjon for utleiehytter og sanitærbygg

Balkong Ingen balkonger

Antall: 0

Ingen balkonger i prosjektet

Tak Flatt tak

🧱 Taktekking ikke spesifisert

Flatt tak på utleiehytter og sanitærbygg

Taktekking for utleiehytter og sanitærbygg med flatt tak

Maling Utvendig maling

🧱 Jordfarget maling

Maling i jordfarger for å dempe byggenes visuelle inntrykk

Utvendig maling av utleiehytter og sanitærbygg

Vinduer Fasadevindu

🧱 Tre/aluminium ikke spesifisert

Antall: 22

Vinduer i utleiehytter og sanitærbygg, uten sprosser

Fasadevinduer for utleiehytter og sanitærbygg

Grunnarbeid Terrengplanering

Planering til kote 3,5 moh, tilpasset eksisterende terreng

Terrengplanering for bygg og utearealer

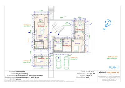
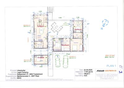
Plantegning

Sanitær 49.7 m²

Etasje 1 49.7 m²

Rom Areal Vinduer Dører
Teknisk rom TEKNISK 49.7 m² 0 1
Gang 0.0 m² 0 2
Dusj 0.0 m² 0 1
WC 0.0 m² 0 1
GARD 0.0 m² 0 2

Enebolig 137.9 m²

Etasje 1 137.9 m²

Rom Areal Vinduer Dører
STUE D1 21.0 m² 1 1
SOV 1 D2 12.0 m² 1 1
SOV 4 D3 12.0 m² 1 1
KJØKKEN D4 12.0 m² 1 1
SOV 3 D2 12.0 m² 1 1
SOV2/STUE D2 12.0 m² 1 1
ENTRE D4 12.0 m² 0 1
BAD 1 D2 6.0 m² 0 1
BAD 2 D2 6.0 m² 0 1
BAD1/VASK D2 6.0 m² 0 1
ANNEKS D2 14.9 m² 1 1

Fasader

Hytte

Syd-Øst
Materiale
Tre
Taktype
Flatt tak
Vinduer
4
Dører
2
Synlige etasjer
1
Nord-Øst
Materiale
Tre
Taktype
Flatt tak
Vinduer
3
Dører
1
Synlige etasjer
1

Utleiehytter

Syd-Øst
Materiale
Tre
Taktype
Flatt tak
Vinduer
5
Dører
2
Synlige etasjer
1
Nord-Øst
Materiale
Tre
Taktype
Flatt tak
Vinduer
3
Dører
1
Synlige etasjer
1
Nord-Vest
Materiale
Tre
Taktype
Flatt tak
Vinduer
2
Dører
1
Synlige etasjer
1
Syd-Vest
Materiale
Tre
Taktype
Flatt tak
Vinduer
3
Dører
1
Synlige etasjer
1

Hendelser

11.03.2026 Foreløpig svar - orientering om klagesaksbehandlingstid
11.03.2026 Oversendelse av saksdokumenter til settestatsforvalter
27.02.2026 Anmodning - oppnevning av settestatsforvalter
18.02.2026 Oversendelse av sak for endelig avgjørelse - Dispensasjon og rammetillatelse: Oppføring av utleiehytter og bryggeanlegg - Bjørkenesveien 4, gnr./bnr. 69/43
21.11.2025 Orientering om at vedtaket ble påklaget
21.11.2025 Klage på vedtak med dispensasjon og rammetillatelse for oppføring av utleiehytter, bobilparkering
31.10.2025 Vedtak: Rammetillatelse og dispensasjon - Oppføring av utleiehytter og bobilparkering samt bryggeanlegg - Bjørkenesveien 4, gnr./bnr. 69/43
22.10.2025 Oppdatert søknad
06.10.2025 Uttalelse fra havnemyndigheten
02.10.2025 BYGG-25/00377 - Foreløpig tilbakemelding på søknad om oppføring av utleiehytter - Bjørkenesveien 4, gnr./bnr. 69/43
30.09.2025 Oppdatert tegningsunderlag
28.08.2025 69/43/0/0 - Bjørkenesveien 4 - Søknad om rammetillatelse til oppføring av utleiehytter og sanitæranlegg