NewConstruction Rammetillatelse Fritidsbolig

Ny fritidsbolig med garasje i Børgefjellsenteret vest

📍 Børgefjellsenteret vest

Nøkkelinfo

Sakstype
Nybygg
Bygningstype
Fritidsbolig
Bruksareal
160 m²
Boenheter
1
Kommune
Raarvihke - Røyrvik
Fylke
Trøndelag - Trööndelage
Gnr / Bnr
71 / 355
Saksnummer
2023/514
Fase
Rammetillatelse

Om byggesaken

Ny fritidsbolig på totalt 160,4 m² fordelt på to etasjer med saltak og trepanel som fasademateriale. Første etasje inneholder stue, tre soverom, bad, gang med trapp, sportsbod/vaskerom og garasje på ca. 20 m². Bygget har 1 trapp, flere vinduer i treverk og pipe. Hytta fundamenteres lavt i terrenget og tilpasses naturgitte forhold med krav til radontiltak og tilkobling til vann- og avløpsanlegg. Bygget oppfyller krav til brannklasse, energikrav og har minimum 4 meters avstand til nabogrense.

Produkter og materialer

Elektro Elektriske installasjoner

Elektriske installasjoner iht. TEK17 krav

Fasade Trepanel

🧱 Tre

Trepanel som fasademateriale på alle fasader

Grunnarbeid Fundamentering og terrengtilpasning

Fundamenteres lavest mulig i terrenget, tilpasses naturgitte forhold

Grunnarbeider for fundamentering og terrengtilpasning

Tømrer Tømrerarbeider

🧱 Tre

Tømrerarbeider for oppføring av bygg, inkludert våtrom

Vinduer Fasadevindu i tre

🧱 Tre

Antall: 8

Vinduer i tre til stue, soverom og garasje

Tak Saltak

🧱 Tre, taktekking ikke spesifisert

Antall: 1

Saltak med trepanel som fasade

Dører Ytterdører og innerdører

🧱 Tre

Antall: 11

Ytterdører og innerdører til inngang, rom og garasje

Pipe Pipe for vedovn/peis

Antall: 1

Pipe tilknyttet oppvarming i fritidsboligen

Isolasjon Isolasjon i vegger og tak

Isolasjon for å oppfylle energikrav i TEK17

Bad Bad med sanitærutstyr

Antall: 1

Bad med dør, uten vindu, i første etasje

Garasjeport Garasjeport i tre

🧱 Tre

Antall: 1

Garasjeport til garasje på ca. 20 m²

Trapper Innvendig trapp

Antall: 1

Innvendig trapp mellom etasjer

Betong Fundament og støttemurer

Betongarbeider for fundament og eventuelle støttemurer

Maling Utvendig og innvendig maling

Maling av trepanel utvendig og innvendige overflater

VVS Rørinstallasjoner og sanitærutstyr

Installasjon av vann- og avløpsanlegg, sanitærutstyr og radontiltak

Plantegning

Hytte/Garasje 160.4 m²

Etasje 1 160.4 m²

Rom Areal Vinduer Dører
Stue/Sekken 10x11 A 41.5 m² 1 2
Soverom 1 10x19 F/A 8.5 m² 1 1
Soverom 2 10x19 F/A 8.6 m² 1 1
Soverom 3 10x15 F 8.6 m² 1 1
Bad 10x19 F/A 6.1 m² 0 1
Gang/Trappe 10x29 9.2 m² 0 3
Sport/Vask 10x29 8.0 m² 0 1
Garasje 10x22 19.9 m² 1 1

Fasader

Enebolig

Sør
Materiale
Tre
Taktype
Saltak
Høyde
4.7 m
Mønehøyde
6.4 m
Vinduer
3
Dører
1
Synlige etasjer
2
Øst
Materiale
Tre
Taktype
Saltak
Høyde
4.7 m
Mønehøyde
6.4 m
Vinduer
3
Dører
1
Synlige etasjer
2

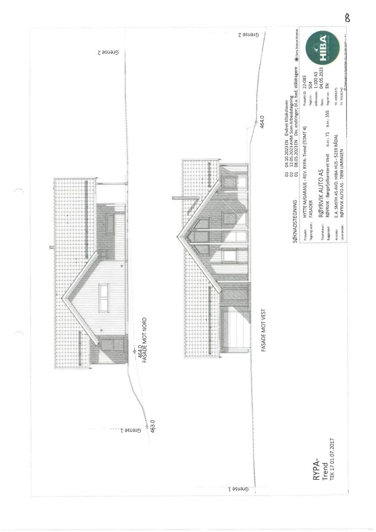
Hytte

Nord
Materiale
Tre
Taktype
Saltak
Vinduer
1
Dører
0
Synlige etasjer
2
Vest
Materiale
Tre
Taktype
Saltak
Vinduer
4
Dører
1
Synlige etasjer
2

Hendelser

09.04.2026 Ber om innsyn i 2023/514-3
23.05.2024 Foreløpig svar - tiltak på tomt nr 4 - Børgefjellsenteret vest - gnr/bnr 71/353
10.10.2023 Revidert byggesøknad - oppføring av fritidsbolig - gnr/bnr 71/355 - tomt 4 i Børgefjellsenteret Vest
10.10.2023 Behandling - søknad om godkjenning av fritidsbolig - tomt nr 4 - Børgefjellsenteret vest - gnr/bnr 71/355
10.10.2023 Søknad om tiltak med ansvar - oppføring av fritidsbolig på tomt nr 4 - gnr/bnr 71/353
10.10.2023 Varsel om faktura for behandling av byggesak - gnr/bnr 71/355
10.10.2023 Mangelbrev - planlagt tiltak på tomt nr 4 - Børgefjellsenteret vest - gnr/bnr 71/355
03.08.2023 Forespørsel om forhåndskonferanse - tiltak på tomt nr 4 - Børgefjellsenteret vest - gnr/bnr 71/353
03.08.2023 Planlagt tiltak - oppføring av fritidsbolig på tomt nr 4 - Børgefjellsenteret vest - gnr/bnr 71/353