NewConstruction Rammetillatelse Fritidsbolig

Ny fritidsbolig på Burtnalia 8, Eidfjord

📍 Burtnalia 8 , 5785 VØRINGSFOSS

Nøkkelinfo

Sakstype
Nybygg
Bygningstype
Fritidsbolig
Bruksareal
72 m²
Boenheter
1
Kommune
Eidfjord
Fylke
Vestland
Gnr / Bnr
18 / 112
Saksnummer
2026/699
Fase
Rammetillatelse

Om byggesaken

Ny fritidsbolig på 71,6 m² med en etasje, oppført i tre med trelags konstruksjoner. Boligen inneholder to soverom på 12 m² hver, stue på 24 m² med to vinduer og en dør, kjøkken på 10 m², bad på 6 m², toalett, vaskerom og gang. Bygget har en trapp, en pipe, og er tilknyttet offentlig vann og avløp. Oppvarming skjer med biobrensel og elektrisitet. Bygningen har tre yttervegger i tre, og fundamentering på peler.

Produkter og materialer

VVS Vann og avløp tilknyttet offentlig nett

Tilknyttet offentlig vann og avløp

Vann- og avløpsinstallasjoner tilknyttet offentlig nett

Pipe Pipe

Antall: 1

1 pipe i bygget

Pipe for oppvarming

Tak Tak med peler fundamentering

Fundamentering på peler (3 stk)

Fundamentering for bygget på peler

Gulv Innvendige gulv

Innvendige gulv i alle rom

Oppvarming Biobrensel og elektrisk oppvarming

Oppvarming med biobrensel og elektrisitet

Oppvarmingssystem basert på biobrensel og elektrisitet

Vinduer Vanlige vinduer

Antall: 4

2 vinduer i stue, 1 vindu i hvert soverom

Vinduer til stue og soverom

Fasade Yttervegger i tre

🧱 Tre

Tre yttervegger med horisontale og vertikale bærekonstruksjoner i tre

Yttervegger i tre som bærende konstruksjon og fasade

Dører Innvendige og utvendige dører

Antall: 9

1 dør i stue, 1 dør i kjøkken, 1 dør i bad, 2 dører i gang, 1 dør i hvert soverom, 1 dør i toalett, 1 dør i vaskerom

Dører til alle rom og utgang

Trapper Innvendig trapp

Antall: 1

En innvendig trapp i bygget

Tømrer Generelt tømrerarbeid

Tømrerarbeid for oppføring av trebygget

Grunnarbeid Fundamentering og grunnarbeid

Fundamentering på peler

Grunnarbeid og fundamentering for bygget

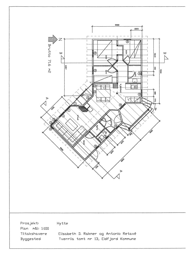
Plantegning

Hytte 71.6 m²

Etasje 1 71.6 m²

Rom Areal Vinduer Dører
Stue 101 24.0 m² 2 1
Kjøkken 102 10.0 m² 0 1
Bad 103 6.0 m² 0 1
Gang 104 4.0 m² 0 2
Sov 105 12.0 m² 1 1
Sov 106 12.0 m² 1 1
Toalett 107 2.0 m² 0 1
Vaskerom 108 3.0 m² 0 1

Hendelser

16.04.2026 Gnr/bnr 18/112- Kvalitetsheving i matrikkelen - fritidsbustadprosjektet - Burtnalia 8