NewConstruction UnderBehandling Fritidsbolig

Ny fritidsbolig med anneks og brygge i Damholtveien 545

📍 Damholtveien 545 , 1870 ØRJE

Nøkkelinfo

Sakstype
Nybygg
Bygningstype
Fritidsbolig
Bruksareal
87 m²
Boenheter
1
Kommune
Marker
Fylke
Østfold
Gnr / Bnr
84 / 59
Saksnummer
2022/756
Fase
Under behandling

Om byggesaken

Ny fritidsbolig på ca. 67,5 m² BYA med tilhørende anneks på ca. 19,5 m² oppføres på eiendommen Damholtveien 545, som ligger i et LNF-område med byggeforbud i 100-metersbeltet langs Haldenvassdraget. Eksisterende hytte på 26 m² rives. Bygningene har tradisjonell stil med saltak og pulttak, og benytter tre som fasademateriale med mørke, dempede farger for å gli inn i terrenget. Det etableres to støttemurer med maksimal høyde 1 meter, tilpasset terrenget, samt oppgradering av eksisterende atkomstvei. Det planlegges også en brygge på 2 x 5 meter med adkomsttrapp, men denne er kontroversiell og ikke anbefalt av regionale myndigheter. Ny fritidsbolig er plassert ca. 5-6 meter fra vannkanten og er tilpasset terrenget for å minimere terrenginngrep. Prosjektet har fått dispensasjon fra arealformål og byggeforbud etter en grundig klagebehandling.

Produkter og materialer

Mur Støttemurer

🧱 Naturstein

Antall: 2

To støttemurer med maksimal høyde 1 meter, tilpasset terreng

Støttemurer foran og bak fritidsboligen for terrengtilpasning

Terrasse Brygge

🧱 Tre

Antall: 1

Brygge 2 x 5 meter med adkomsttrapp, uten rekkverk

Oppføring av brygge for båtliv og adkomst til vannet

Bygningskomponenter Dører

🧱 Tre

Antall: 5

Ytterdører i tre, inkludert dører med glassfelt på nordfasade

Ytterdører til fritidsbolig og anneks

Elektro

Elektrisk installasjon iht. gjeldende forskrifter

El-installasjon i fritidsbolig og anneks

VVS Privat vann og avløp

Privat vannforsyning og avløpsanlegg med utslippstillatelse

Installasjon av privat vann- og avløpssystem, inkludert septiktank

Bygningskomponenter Vinduer

🧱 Tre

Antall: 10

Vinduer i fritidsbolig og anneks, mørke rammer, tilpasset tradisjonell stil

Fasadevinduer i tre til hovedbygg og anneks

Tømrer Trekonstruksjoner

🧱 Tre

Tømrerarbeider for oppføring av fritidsbolig og anneks

Bygging av trekonstruksjoner for bolig og anneks

Bad

Antall: 1

Bad på ca. 5,7 m² med sanitærinstallasjoner

Bad med sanitærutstyr i fritidsboligen

Isolasjon

Isolasjon iht. TEK17 krav for fritidsbolig

Isolasjon av vegger, tak og gulv for fritidsbolig og anneks

Tak Saltak og pulttak

🧱 Tegl

Saltak på anneks og pulttak på hovedbygg med teglstein

Taktekking med teglstein på fritidsbolig og anneks

Gulv

Innvendige gulv i henhold til standard for fritidsbolig

Gulvbelegg i fritidsbolig og anneks

Grunnarbeid Oppgradering av atkomstvei

Oppgradering av eksisterende vei med krav til avkjørsel og frisikt

Opparbeidelse og oppgradering av atkomstvei med godkjent avkjørselstillatelse

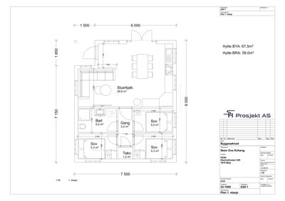
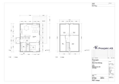
Plantegning

Enebolig 125.7 m²

Etasje 1 65.3 m²

Rom Areal Vinduer Dører
Stue/kjøk. 101 35.5 m² 2 1
Entre 102 5.7 m² 0 1
Bad 103 5.7 m² 0 1
Gang 104 3.4 m² 0 1
Sov 105 9.9 m² 1 1
Tekn. 106 1.0 m² 0 1
Sov 107 5.3 m² 1 1

Etasje 2 60.4 m²

Rom Areal Vinduer Dører
Hems 201 12.2 m² 1 1
Hems 202 12.2 m² 1 1
Hems 203 25.0 m² 1 1
Bod 204 10.7 m² 0 1

Fasader

Hovedbygg

Øst
Materiale
Tre
Taktype
Pulttak
Takmat.
Tegl
Høyde
4.9 m
Mønehøyde
10.0 m
Vinduer
2
Dører
1
Synlige etasjer
1

Annekset

Sør
Materiale
Tre
Taktype
Pulttak
Takmat.
Tegl
Høyde
3.5 m
Mønehøyde
4.9 m
Vinduer
3
Dører
1
Synlige etasjer
1

Anneks

Øst
Materiale
Tre
Taktype
Saltak
Takmat.
Tegl
Høyde
3.5 m
Mønehøyde
9.0 m
Vinduer
2
Dører
1
Synlige etasjer
1
Sør
Materiale
Tre
Taktype
Saltak
Takmat.
Tegl
Høyde
3.5 m
Vinduer
1
Dører
0
Synlige etasjer
1
Vest
Materiale
Tre
Taktype
Saltak
Takmat.
Tegl
Høyde
3.5 m
Vinduer
0
Dører
0
Synlige etasjer
1
Nord
Materiale
Tre
Taktype
Saltak
Takmat.
Tegl
Høyde
3.5 m
Vinduer
2
Dører
0
Synlige etasjer
1

Hendelser

23.04.2026 Behandling av klage på dispensasjon for oppføring av ny fritidsbolig - Damholtveien 545 - gnr 84 bnr 59
23.04.2026 Behandling av søknad om dispensasjon - Oppføring fritidsbolig - Damholtveien 545 - gnr 84 bnr 59
20.04.2026 Søknad om ferdigattest – Damholtveien 545 – gnr 84 bnr 59
25.03.2024 Rammetillatelse og igangsettingstillatelse - Riving og oppføring fritidsbolig - Damholtveien 545 - gnr 84 bnr 59