NewConstruction UnderBehandling Fritidsbolig

Ny fritidsbolig med garasje i Friarfjordveien 44, Lebesby

📍 Friarfjordveien 44

Nøkkelinfo

Sakstype
Nybygg
Bygningstype
Fritidsbolig
Bruksareal
53 m²
Boenheter
1
Kommune
Lebesby
Fylke
Finnmark - Finnmárku - Finmarkku
Gnr / Bnr
20 / 50
Saksnummer
2026/261
Fase
Under behandling

Om byggesaken

Ny frittstående fritidsbolig på 53,2 m² BRA og 71 m² BYA oppføres på eiendommen Friarfjordveien 44 i Lebesby kommune. Boligen har saltak med 35 graders takvinkel og mønehøyde på 5,8 meter, og er tilpasset området med trepanel som fasademateriale. Bygget inneholder kjøkken/stue, gang, bad, to soverom, teknisk bod og vindfang. Det planlegges også en fremtidig garasje og nedgravd gråvannstank på tomten. Tomten er kupert med morenegrus og hardpakket morenegrus som grunnforhold. Det monteres forbrenningstoalett, og det er ikke innlagt vann. Det er etablert ny avkjørsel fra fylkesvei 98 med tillatelse fra vegmyndighetene. Tiltaket er innenfor tillatt utnyttelse og har dispensasjon for plassering innenfor byggegrense og hensynssone for høyspenningsanlegg. Området er aktsomhetsområde for snø- og jord-/flomskred, men tiltaket vurderes som trygt. Kulturminnemyndighetene har varslet befaring på grunn av sannsynlighet for automatisk fredete kulturminner i området.

Produkter og materialer

Tak Saltak

Saltak med 35 graders takvinkel, mønehøyde 5,8 m

Tak med saltak og spesifisert takvinkel og høyde

Dører Ytterdør og innerdører

🧱 Tre

Antall: 8

Ytterdør og innerdører i tre, totalt 8 dører

Dører til vindfang, soverom, bad, teknisk bod, gang

Betong Pilarer

🧱 Betong

Pilarer for fundamentering av hytte

Betongpilarer for bærekonstruksjon

Tømrer Oppføring av hytte

🧱 Tre

Oppføring av hytte med innvendige arbeider, utført av selvbygger

Tømrerarbeid for oppføring av fritidsbolig

Fasade Trepanel

🧱 Tre

Fasade i tre med saltak

Fasademateriale i tre tilpasset området

Pipe Pipe og ildsted

Antall: 1

Pipe og ildsted inkludert i prosjektet

Pipe for ildsted i fritidsboligen

Elektro Elektrisk installasjon

Elektromontør fagbrev hos tiltakshaver, ansvarlig selvbygger for elektro

Elektrisk installasjon utført av tiltakshaver med fagbrev

Garasjeport Fremtidig garasje

Antall: 1

Planlagt frittstående garasje på tomt, uten rom for varig opphold

Garasje for parkering av to biler på egen eiendom

Grunnarbeid Tomtearbeid og fundamentering

Grunnarbeid på morenegrus og hardpakket morenegrus, fundamentering med pilarer

Grunnarbeid og fundamentering tilpasset kupert terreng

Mur Støttemur

🧱 Betong og naturstein

Støttemur i naturstein og betong på tomt

Støttemurer for terrengstabilisering

VVS Avløpsanlegg

Privat avløpsanlegg med forbrenningstoalett, søknad om utslippstillatelse

Avløpsanlegg uten innlagt vann, forbrenningstoalett

Terrasse Terrenginngrep og opparbeidelse

Opparbeidelse av ny adkomst og terrenginngrep på tomt

Terrengarbeid for tilpasning av tomt og adkomst

Vinduer Fasadevindu

🧱 Tre/Glass

Antall: 10

Fasadevindu i tre, totalt 10 vinduer fordelt på rom

Vinduer i fasaden til kjøkken/stue, soverom, vindfang

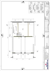
Plantegning

Enebolig 70.3 m²

Etasje 1 70.3 m²

Rom Areal Vinduer Dører
Kjøkken/stue 101 28.4 m² 3 1
Gang 102 4.1 m² 0 2
Bad 103 3.4 m² 0 1
Soverom 1 104 5.7 m² 1 1
Soverom 2 105 4.0 m² 1 1
Tekn. Bod 106 2.2 m² 0 1
Vindfang 107 2.2 m² 1 1

Fasader

Enebolig

Ukjent
Materiale
Tre
Taktype
Saltak
Høyde
6.3 m
Mønehøyde
8.4 m
Vinduer
3
Dører
1
Synlige etasjer
2
Vest
Materiale
Tre
Taktype
Saltak
Vinduer
2
Dører
1
Synlige etasjer
2
Nord
Materiale
Tre
Taktype
Saltak
Vinduer
2
Dører
1
Synlige etasjer
2
Sør
Materiale
Tre
Taktype
Saltak
Vinduer
2
Dører
1
Synlige etasjer
2
Øst
Materiale
Tre
Taktype
Saltak
Vinduer
2
Dører
1
Synlige etasjer
2

Hendelser

21.04.2026 Varslet befaring - 20/50 - Friarfjordveien 40 - Oppføring av fritidsbolig
14.04.2026 Uttalelse fra seksjon for kulturarv om oppføring av fritidsbolig under gbnr. 20/50 - Friarfjordveien 40 - Lebesby kommune - varsel om befaring
09.04.2026 Uttalelse vedrørende søknad om tillatelse til oppføring av fritidsbolig - Gbnr. 20/50 - Friarfjordveien 40 - Davvesiidda gielda / Lebesby kommune
20.03.2026 Høringsbrev - 20/50 - Friarfjordveien 40 - Oppføring av fritidsbolig
11.03.2026 Søknad om tillatelse i ett trinn - 20/50 - Friarfjordveien 44 - Oppføring av ny fritidsbolig