NewConstruction Rammetillatelse Fritidsbolig

Ny fritidsbolig med tilkomstveg i Greplandsvegen 93, Svanøy

📍 Greplandsvegen 93 , 6914 SVANØYBUKT

Nøkkelinfo

Sakstype
Nybygg
Bygningstype
Fritidsbolig
Bruksareal
150 m²
Boenheter
1
Kommune
Kinn
Fylke
Vestland
Gnr / Bnr
114 / 7
Saksnummer
2023/5224
Fase
Rammetillatelse

Om byggesaken

Ny fritidsbolig på totalt 149,7 m² BRA fordelt på hovedplan og hems, plassert i kupert terreng på Greplandsvegen 93, Svanøy. Bygget har en lang og smal form tilpasset terrenget, med flere takvinkler (21,5°, 36°, 48° og 10°) og kombinasjon av stående trekledning og Steni steinkomposittplater utvendig. Hytta inneholder kjøkken, lounge, sofakrok med vedfyrt peisovn uten pipe, tre soverom med egne utganger, bad med utedusj under tak, toalett, bod/teknisk rom og hems med trappestige. Det er etablert infrastruktur for vann, avløp med slamavskiller, elektrisk strøm og off-grid solenergi. Tilkomstveg med snuplass er opparbeidet. Fasader og vinduer er i tre med saltak og pipe. Hems tas i bruk først når trapp og rømningsveg via takvindu er etablert. Innvendige overflater og tekniske installasjoner ferdigstilles etter brukstillatelse.

Produkter og materialer

Maling Overflatebehandling og maling

Overflatebehandling og malerarbeid gjenstår

Innvendig og utvendig maling og overflatebehandling

VVS Sanitærinstallasjoner og vannforsyning

Innlagt vann, avløp via slamavskiller, utedusj under tak, oppsamling av takvann

Vann- og avløpssystem for fritidsbolig med sanitærutstyr

Pipe Vedfyrt peisovn uten pipe

Antall: 1

Vedfyrt peisovn med røykrør, ingen pipe for plass- og kostnadsbesparelse

Peisovn for oppvarming i oppholdsrom

Grunnarbeid Veg- og tomtearbeid

Opparbeiding av veg med snuplass, grave- og sprengningsarbeid i kupert terreng

Grunnarbeid for tilkomstveg og tomt, inkludert sprengning og opparbeiding av snuplass

Tak Saltak med bandtak

🧱 Grå bandtak

Saltak med flere takvinkler (21,5°, 36°, 48°, 10°), takrenner og nedløp i grå farge

Taktekking og takrenner i grå bandtak for estetikk og funksjon

Vinduer Fasadevindu og takvinduer

🧱 Tre med metallbeslag

Antall: 14

5-kanta vinduer uten sprosser over foldedører, tre skrå vinduer i front, takvinduer med åpning på hems

Vinduer tilpasset design og rømningskrav, inkludert takvinduer for rømningsvei

Elektro Elektrisk anlegg og solenergi

Elektrisk strømforsyning med off-grid solenergi, 230 V til stikkontakter, trekkerør og kabler lagt

Elektrisk installasjon tilpasset off-grid energiforsyning

Trapper Trappestige til hems

🧱 Tre

Antall: 1

Trappestige til hems med plass til varmtvannstank under, alternativ rømningsvei via takvindu

Innvendig trappestige for adkomst til hems og rømningsvei

Terrasse Takoverbygde terrasser

Terrasser med takoverbygg på vest, øst og sør side

Uteplasser med takoverbygg for værbeskyttelse

Dører Ytterdører og innerdører

🧱 Tre

Antall: 10

Ytterdører i fasade, innerdører til soverom, bad, toalett og bod

Dører for adkomst og rominndeling, inkludert foldedører mot terrasse

Fasade Stående trekledning og Steni steinkomposittplater

🧱 Tre, Steni Vision Copper brown (43248), Møre Royal natur RO

Kombinasjon av stående trekledning og Steni plater i gråbrun farge, med beslag og søyler i metall RAL 7047 Telegrey 4

Utvendig kledning og fasadeelementer tilpasset terreng og fargepalett

Gulv Innvendige gulvflater

Legging av gulv gjenstår, fliser på del av gulv i oppholdsrom

Innvendige gulvflater med fliser og annet gulvbelegg

Rekkverk Terrasserekkverk

Rekkverk på terrasser tilpasset design og sikkerhet

Rekkverk for terrasser og uteområder

Tømrer Bygging av konstruksjon og innvendige arbeider

🧱 Tre og stål

Stålbjelker og søyler for bærekonstruksjon, innvendige vegger, himlinger og isolasjon

Tømrerarbeid for bærekonstruksjon, vegger, himling og innredning

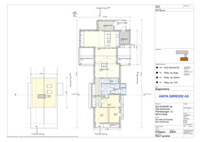
Plantegning

Enebolig 273.9 m²

Etasje 1 136.5 m²

Rom Areal Vinduer Dører
Inngang m/gard 101 6.4 m² 0 1
Tak over inngang 102 4.8 m² 0 0
Bod/teknisk 103 5.1 m² 0 1
Lounge, kjøkken, allrom m/peis 104 40.8 m² 4 2
Tak over terrasse vest 105 10.4 m² 0 0
Tak over terrasse aust 106 10.4 m² 0 0
Sofakrok m/peis 107 14.0 m² 0 0
Toalett 108 3.8 m² 0 1
Bad/vask 109 8.5 m² 0 1
Utedusj 110 2.6 m² 0 1
Gang m/skap 111 10.6 m² 0 2
Sov 1 112 8.6 m² 1 1
Sov 2 113 8.2 m² 1 1
Sov 3 114 6.5 m² 1 1
Takutbygg sør 115 4.2 m² 0 0

Etasje 0 28.8 m²

Rom Areal Vinduer Dører
Hems 001 28.8 m² 0 0

Etasje 2 108.6 m²

Rom Areal Vinduer Dører
Hems 201 108.6 m² 0 0

Fasader

Enebolig

Vest
Materiale
Tre
Taktype
Saltak
Vinduer
6
Dører
2
Balkonger
1
Synlige etasjer
2
Nord
Materiale
Tre
Taktype
Saltak
Vinduer
3
Dører
1
Synlige etasjer
1
Sør
Materiale
Tre
Taktype
Saltak
Vinduer
1
Dører
1
Synlige etasjer
1
Øst
Materiale
Tre
Taktype
Saltak
Vinduer
4
Dører
2
Synlige etasjer
1

Hendelser

16.04.2026 Midlertidig brukstillatelse pbl §21-10 - 114/7 - - fritidsbustad
07.04.2026 Søknad om mellombels bruksløyve gbnr 114/7
03.02.2026 Spørsmål om bruksløyve gbnr 114/7 - Svanøy
26.06.2024 Hytte på gbnr. 114/7 - Svanøya