NewConstruction UnderBehandling Fritidsbolig

Riving og gjenoppføring av hytte i Grundvikveien 32, Fredrikstad

📍 Grundvikveien 30 , 1628 ENGELSVIKEN

Nøkkelinfo

Sakstype
Nybygg
Bygningstype
Fritidsbolig
Bruksareal
113 m²
Boenheter
1
Kommune
Fredrikstad
Fylke
Østfold
Gnr / Bnr
108 / 13
Saksnummer
2025/1441
Fase
Under behandling

Om byggesaken

Ny hytte oppføres på samme tomt som eksisterende hytte i Grundvikveien 32, Fredrikstad. Den nye hytta har et samlet bruksareal på 113 m², fordelt på ett plan med saltak og tre som fasademateriale. Bygget har 1 etasje med gesimshøyde på 3,5 meter og mønehøyde på 5,2 meter. Hytta inneholder blant annet stue, kjøkken, gang, bad, soverom, garderobe, teknisk rom og utkikk. Bygget har 11 vinduer og 8 dører, samt en trapp. Det er lagt vekt på estetisk forbedring med ny ytterkledning i naturlige farger, redusert volum sammenlignet med eksisterende hytte, færre glassflater mot sjøen og fjerning av privatiserende elementer som flaggstang og kajakkstativ. Tiltaket er godkjent med dispensasjon fra LNF-område og byggeforbud i 100-metersbeltet, med vilkår om stedstilpasset materialbruk og bevaring av allmennhetens tilgang til strandsonen.

Produkter og materialer

Tak Saltak

🧱 Tre og taktekking

Antall: 1

Saltak med mønehøyde 5,2 m og gesimshøyde 3,5 m

Saltak til ny hytte, tilpasset eksisterende høyder

Bad Baderomsinnredning og fliser

Antall: 1

Bad på 8 m² med standard baderomsinnredning

Bad med sanitærutstyr og flislagte overflater

Gulv Innvendige gulvflater

Antall: 1

Gulv i stue, kjøkken, soverom, bad og øvrige rom

Innvendige gulvflater i ny hytte

Grunnarbeid Betongfundament og grunnmur

🧱 Betong

Antall: 1

Fundamenter og grunnmur for ny hytte

Grunnarbeid for ny hytte inkl. betongfundament og grunnmur

Elektro Elektriske installasjoner

Antall: 1

Elektriske installasjoner for ny hytte

Elektroinstallasjoner iht. gjeldende forskrifter

Maling Utvendig og innvendig maling

Antall: 1

Maling i naturlige, stedstilpassede farger

Maling av ytterkledning og innvendige flater

Trapper Innvendig trapp

🧱 Tre

Antall: 1

Trapp til hems

Innvendig trapp i tre til hems

VVS Sanitærinstallasjoner

Antall: 1

Sanitærinstallasjoner for ny hytte

VVS-installasjoner inkludert sanitær

Vinduer Fasadevindu

🧱 Tre

Antall: 11

Færre glassflater enn eksisterende, inndelt for å dempe refleksjon mot sjøen

Vinduer i tre til fasade, tilpasset estetisk og landskap

Riving Riving og miljøsanering

Antall: 1

Riving av eksisterende hytte og miljøsanering

Riving av eksisterende hytte før nybygg

Fasade Ytterkledning i tre

🧱 Tre

Antall: 1

Ny ytterkledning i naturlige fargenyanser, stedstilpasset

Ytterkledning som gir estetisk forbedring og landskapstilpasning

Kjøkken Kjøkkeninnredning

Antall: 1

Kjøkken på 15 m² med standard innredning

Kjøkkeninnredning tilpasset ny hytte

Dører Ytterdører og innerdører

🧱 Tre

Antall: 8

Hovedinngangsdør uten glass, øvrige dører i tre

Ytterdører og innerdører i tre, tilpasset ny hytte

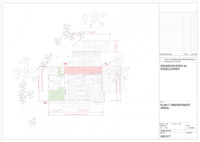
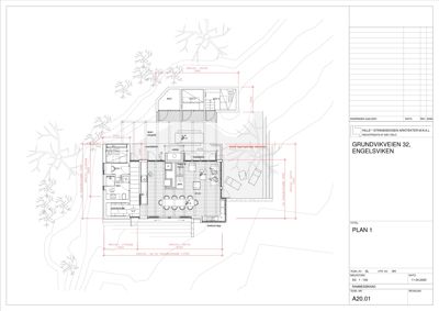
Plantegning

Enebolig 113.0 m²

Etasje 1 113.0 m²

Rom Areal Vinduer Dører
STUE 101 45.0 m² 2 1
KJØKKEN 102 15.0 m² 1 1
GANG 103 12.0 m² 0 2
BAD 104 8.0 m² 0 1
SOV 1 105 12.0 m² 1 1
GARDEROBE 106 3.0 m² 0 1
TEKNISK 107 5.0 m² 0 1
UTKIK 108 10.0 m² 1 1

Hytte 0.0 m²

Etasje 1 0.0 m²

Rom Areal Vinduer Dører
WC WC 0.0 m² 0 1
Vaskerom VASK 0.0 m² 0 1
Kjøkken KOK 0.0 m² 0 1
Opphold OPP 0.0 m² 0 1

Fasader

Hytte

Vest
Materiale
Tre
Taktype
Saltak
Høyde
3.5 m
Mønehøyde
5.2 m
Vinduer
1
Dører
0
Synlige etasjer
1
Nord
Materiale
Tre
Taktype
Saltak
Høyde
3.5 m
Mønehøyde
5.2 m
Vinduer
2
Dører
0
Synlige etasjer
1
Sør
Materiale
Tre
Taktype
Saltak
Høyde
3.5 m
Mønehøyde
5.2 m
Vinduer
6
Dører
1
Synlige etasjer
2

Eksisterende hytte

Øst
Materiale
Tre
Taktype
Saltak
Vinduer
2
Dører
0
Synlige etasjer
1
Sør
Materiale
Tre
Taktype
Saltak
Vinduer
6
Dører
1
Synlige etasjer
2

Hendelser

16.04.2026 Supplering av søknad - eiendom 108/13 - Grundvikveien 32
16.04.2026 Supplering av søknad - eiendom 108/13 - Grundvikveien 32
16.04.2026 Svar angående supplering av søknad - eiendom 108/13
15.04.2026 Foreløpig svar på søknad - eiendom 108/13 - Grundvikveien
15.04.2026 Erklæring om ansvarsrett og jennomføringsplan - eiendom 108/13 - Grundvikveien 32
15.04.2026 Søknad om igangsettingstillatelse - Grundvikveien 32 - Eiendom 108/13
12.08.2025 Rammetillatelse - Rive og gjenoppføre hytte - Grundvikveien 32 - Eiendom 108/13
21.07.2025 Eiendom 108/13 - Uttalelse til revidert forslag for riving av eksisterende hytte og oppføring av ny
09.07.2025 Uttalelse til søknad om dispensasjon - Fredrikstad kommune - Eiendom 108/13 - Grundvikveien 32
24.06.2025 Anmodning om ny uttalelse - Søknad om riving og oppføring av ny hytte - Revidert forslag - Grundvikveien 32 - Eiendom 108/13
16.06.2025 Oppdatert gjennomføringsplan - Grundvikveien 32
13.06.2025 Omprosjektering av Grundvikveien 32 - Eiendom 108/13 - Rive og gjenoppføre hytte
20.05.2025 Omprosjektering av tiltak - Grundvikveien 32
18.03.2025 Oversendelse av innkomne uttalelser - Eiendom 108/13 - Grundvikveien 32
13.03.2025 Uttalelse til søknad om dispensasjon - Eiendom 108/13 - Grundvikveien 32
24.02.2025 Uttalelse til søknad om dispensasjon for å rive eksisterende hytte og oppføre ny - Eiendom 108/13
18.02.2025 Anmodning om uttalelse - Rive eksisterende hytte og oppføring av ny hytte - Grundvikveien 32 - eiendom 108/13
15.01.2025 Bekreftelse på mottatt søknad - Rive og gjenoppføre hytte - Grundvikveien 32 - Eiendom 108/13
13.01.2025 Rammesøknad - Grundvikveien 32 - Eiendom 108/13 - Rive og gjenoppføre hytte