NewConstruction Ferdigattest Fritidsbolig

Ny rorbu med uthus og naust på Østsideveien 817 B, Smøla

📍 Hellesfjorden, Østsideveien 817B , 6570 SMØLA

Nøkkelinfo

Sakstype
Nybygg
Bygningstype
Fritidsbolig
Bruksareal
110 m²
Boenheter
2
Kommune
Smøla
Fylke
Møre og Romsdal
Gnr / Bnr
6 / 38
Saksnummer
21/00952
Fase
Ferdigattest

Om byggesaken

Ny frittstående rorbu på 110 m² BRA i to etasjer med saltak, beliggende på Østsideveien 817 B, Hellesfjorden, Smøla. Bygget inneholder to boenheter med kjøkken, bad, stue, gang og soverom. Tilhørende uthus og naust på til sammen ca. 54 m² med treningsrom, bod og sjøbod. Bygget er fundamentert på ringmur med isolert plate. Fasader har flere vinduer og dører, og saltak med gesimshøyde rundt 6,8 meter. Avløpsanlegg med slamavskiller på 4 m³ er etablert i henhold til utslippstillatelse. Bygget er planlagt og oppført i samsvar med gjeldende tekniske krav og kommuneplan, med godkjent ferdigattest.

Produkter og materialer

Tak Saltak

Antall: 1

Saltak med takvinkel ca. 33 grader, gesimshøyde ca. 6,8 m

Saltak på rorbu og uthus

Vinduer Fasadevindu

Antall: 21

Vinduer i ulike størrelser, blant annet 0,9x1,2 m og 0,9x1,8 m, fordelt på fasader nord, sør, vest og ukjent

Fasadevindu til rorbu i to etasjer

Gulv Innvendige gulv

Isolert plategulv i treningsrom og øvrige rom

Isolert gulv i rorbu og uthus

Grunnarbeid Ringmur og isolert plate

🧱 Betong

Ringmur med isolert plate som fundament for rorbu og uthus

Fundamentering av bygg med ringmur og isolert plate

Tømrer Bygging av rorbu og uthus

🧱 Tre

Oppføring av rorbu i to etasjer med tilhørende uthus og naust

Tømrerarbeid for bygging av rorbu og uthus

Dører Ytterdører og skyvedører

Antall: 9

Inkluderer skyvedører i kobbhus 1,8x2,1 m og flere ytterdører på fasader

Ytterdører og skyvedører til rorbu og uthus

Elektro Ventilasjonsaggregat

Antall: 1

Installasjon av ventilasjonsaggregat planlagt utført i uke 27

Ventilasjonsanlegg for rorbu

Fasade Kledning

Platekledning av vegger i 1. etasje, utføres i uke 27

Utvendig kledning på rorbu

VVS Avløpsanlegg med slamavskiller

Antall: 1

Slamavskiller på 4 m³ med utslipp minst 2 m under laveste vannstand, i henhold til utslippstillatelse

Avløpsanlegg for sanitært avløpsvann

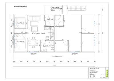
Plantegning

Enebolig 65.1 m²

Etasje 2 65.1 m²

Rom Areal Vinduer Dører
Soverom Sov 7.3 m² 1 1
Soverom Sov 7.3 m² 1 1
Stue / Kjøkken Stue / kjøkken 12.6 m² 0 0
Gang Gang 3.0 m² 0 2
Bad Bad 4.4 m² 0 1
Felles inngang Felles ingang 5.2 m² 0 1

Uthus 54.0 m²

Etasje 1 54.0 m²

Rom Areal Vinduer Dører
Treningsrom - Isolert plate 32.8 m² 0 1
Naust / Sjøbod 21.2 m² 0 1
Bod 3.6 m² 0 1

Ringmur 105.0 m²

Etasje 1 105.0 m²

Rom Areal Vinduer Dører
Treningsrom - Isolert plate 52.5 m² 0 1
Naust / Sjøbod 52.5 m² 0 1

Fasader

Enebolig

Nord
Taktype
Saltak
Vinduer
6
Dører
1
Synlige etasjer
2
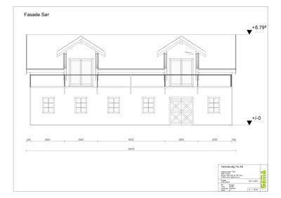
Sør
Taktype
Saltak
Høyde
6.8 m
Vinduer
6
Dører
1
Balkonger
2
Synlige etasjer
2
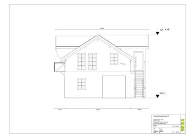
Vest
Taktype
Saltak
Høyde
6.8 m
Vinduer
5
Dører
1
Synlige etasjer
2
Ukjent
Taktype
Saltak
Høyde
6.8 m
Vinduer
4
Dører
1
Balkonger
1
Synlige etasjer
2

Hendelser

15.04.2026 21/00952-9 006/038 - spørsmål om godkjenning for utleie
14.11.2025 21/00952-8 006/038 - Vedtak om ferdigattest
15.01.2024 21/00952-7 006/038 - Søknad om ferdigattest
28.06.2023 21/00952-6 006/038 - søknad om midlertidig brukstillatelse
16.12.2021 21/00952-3 006/038- Vedtak om byggetillatelse
16.12.2021 21/00952-5 006/056 - Melding om vedtak
16.12.2021 21/00952-4 006/038 - Melding om nytt avløpsanlegg
12.11.2021 21/00952-2 006/038 - Foreløpig svar, oppføring av rorbu
11.11.2021 21/00952-1 006/038 - Søknad om tillatelse i ett trinn, oppføring av rorbu