NewConstruction Ferdigattest Fritidsbolig

Ny fritidsbolig med riving av hytte i Floten, Ålvik

📍 Kjepsovegen 323 , 5614 ÅLVIK

Nøkkelinfo

Sakstype
Nybygg
Bygningstype
Fritidsbolig
Bruksareal
68 m²
Boenheter
1
Kommune
Kvam
Fylke
Vestland
Gnr / Bnr
79 / 11
Saksnummer
25/5521
Fase
Ferdigattest

Om byggesaken

Ny fritidsbolig på 68 m² fordelt på to etasjer med saltak og tegl takmateriale, oppført i tre. Bygget har stue, kjøkken, bad og entre i første etasje, samt to soverom, kleskott og sovealkover i andre etasje. Det er én trapp i bygget og pipe er installert. Fritidsboligen har flere vinduer og dører fordelt på begge etasjer, og balkong på øst- og sørfasade. Bygget erstatter en tidligere hytte som er revet. Utomhusanlegg inkluderer terrengtilpasning og opparbeidelse av avkjørsel i henhold til krav fra Statens vegvesen. Varmesystemet består av ovn/kamin/peis med elektrisk energiforsyning.

Produkter og materialer

Fasade Trepanel

🧱 Tre

Trepanel som fasademateriale på alle fasader.

Maling Utvendig og innvendig maling

Maling av trepanel utvendig og innvendige overflater.

Varme Ovn/kamin/peis

Antall: 1

Varmefordeling via ovn/kamin/peis.

Pipe Murpipe

Antall: 1

Pipe for ovn/kamin/peis installert i bygget.

Tak Saltak med tegl takmateriale

🧱 Tegl

Antall: 1

Saltak med tegl som takmateriale.

VVS Avløpsanlegg og vannforsyning

Innregulert og koordinatfestet avløps- og vannledninger i henhold til innmålingsdata.

Privat vann- og avløpsanlegg med utslippstillatelse.

Elektro Elektrisk energiforsyning

Elektrisk energiforsyning til bygget.

Dører Ytterdører og innerdører

🧱 Tre

Antall: 8

Ytterdører og innerdører i tre, inkludert inngangsdør og dører til rom som bad, soverom og kleskott.

Kjøkken Kjøkkenrom

Antall: 1

Kjøkken på 10,2 m² med ett vindu og en dør.

Grunnarbeid Terrengtilpasning og avkjørsel

Utbedring av avkjørsel i henhold til Statens vegvesens krav, terrengprofiler og situasjonsplan.

Grunnarbeid for tilpasning av tomt og avkjørsel.

Trapper Innvendig trapp i L-form

Antall: 1

Innvendig trapp mellom første og andre etasje.

Bad Bad med våtromsstandard

Antall: 1

Bad på 6,3 m² uten vindu, med dør til entre.

Tømrer Trekonstruksjoner

🧱 Tre

Tømrerarbeid og montering av trekonstruksjoner for fritidsboligen.

Gulv Gulvbelegg

Gulv i alle rom, antatt standard for fritidsbolig.

Vinduer Fasadevindu

🧱 Tre

Antall: 8

Fasadevindu i tre fordelt på to etasjer, inkludert 3 i stue, 1 i kjøkken, 1 i sov 1, 1 i sov 2, og flere på fasader.

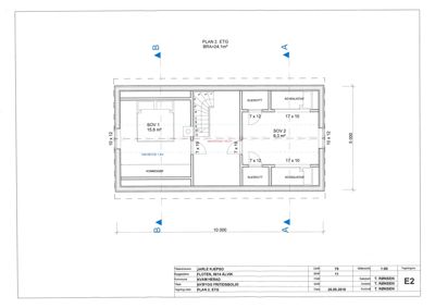
Plantegning

Enebolig 68.0 m²

Etasje 1 43.9 m²

Rom Areal Vinduer Dører
Stue 101 21.0 m² 3 1
Kjøkken 102 10.2 m² 1 1
Bad 103 6.3 m² 0 1
Entre 104 4.9 m² 0 1

Etasje 2 24.1 m²

Rom Areal Vinduer Dører
Sov 1 201 15.6 m² 1 1
Sov 2 202 9.3 m² 1 1
Kleskott 203 0.0 m² 0 1
Sovealkove 204 0.0 m² 0 0
Kleskott 205 0.0 m² 0 1
Sovealkove 206 0.0 m² 0 0
Kommoder 207 0.0 m² 0 0

Etasje 0 0.0 m²

Rom Areal Vinduer Dører
Kryp 0.0 m² 0 0
Kjeller 0.0 m² 0 0

Fasader

Enebolig

Sør
Materiale
Tre
Taktype
Saltak
Takmat.
Tegl
Vinduer
4
Dører
2
Balkonger
1
Synlige etasjer
2
Nord
Materiale
Tre
Taktype
Saltak
Takmat.
Tegl
Vinduer
2
Dører
1
Synlige etasjer
1
Vest
Materiale
Tre
Taktype
Saltak
Vinduer
3
Dører
0
Synlige etasjer
2

Fritidsbolig

Øst
Materiale
Tre
Taktype
Saltak
Vinduer
2
Dører
0
Balkonger
1
Synlige etasjer
2

Hendelser

21.04.2026 Godkjent ferdigattest - fritidsbustad
21.04.2026 Gebyrskjema
16.04.2026 Innmålingsdata Va
09.01.2026 Søknad om ferdigattest gnr. 79 bnr.11
11.12.2025 Ferdigattest - påminning om plikt til å søkje ferdiattest