NewConstruction Ferdigattest Fritidsbolig

Ny fritidsbolig i Hydal Hyttegrend, tomt 137, Stryn

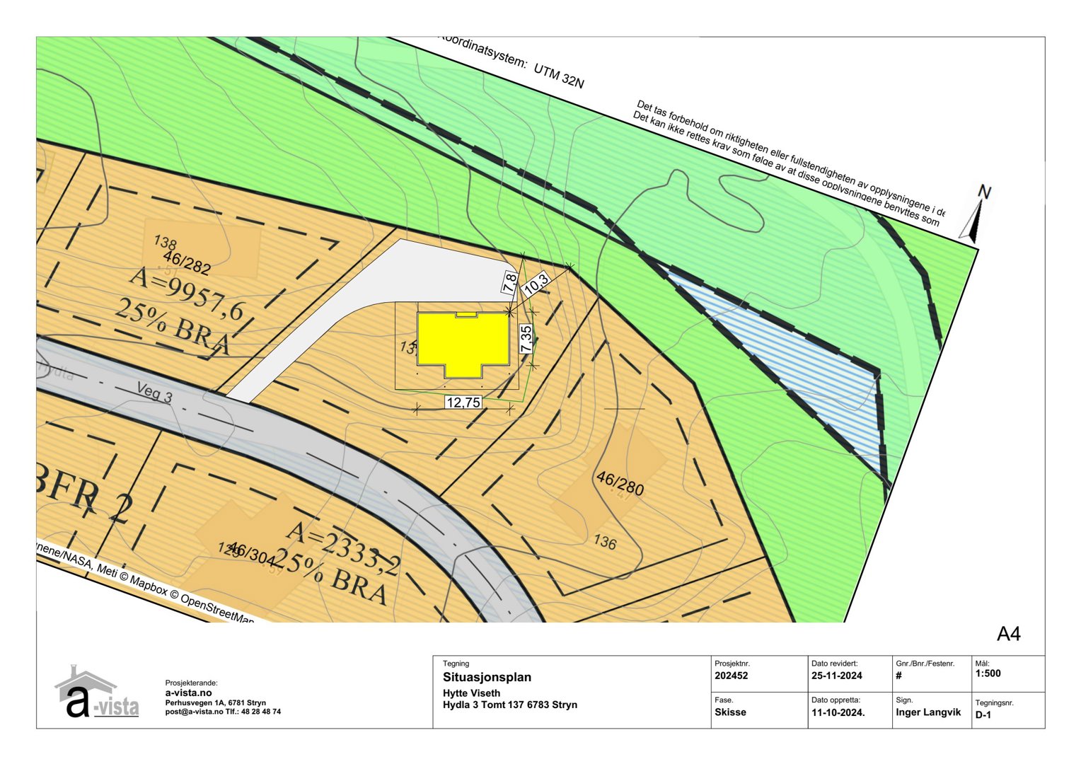
📍 Nedre-Hydla 49 , 6783 STRYN

Nøkkelinfo

Sakstype
Nybygg
Bygningstype
Fritidsbolig
Bruksareal
126 m²
Boenheter
1
Kommune
Stryn
Fylke
Vestland
Gnr / Bnr
46 / 281
Saksnummer
2025/922
Fase
Ferdigattest

Om byggesaken

Ny fritidsbolig oppført på tomt 137 i Hydal Hyttegrend, Stryn, med totalt bruksareal på 125,7 m² fordelt på hovedetasje (92,9 m²) og loft (32,8 m²). Bygget har to etasjer med gesimshøyde ca. 3 meter og mønehøyde ca. 5,5 meter. Det er overbygde arealer på totalt 14,7 m². Hytta inneholder blant annet kjøkken/stue, flere soverom, bad, bod, vaskerom og hems. Bygget er plassert i henhold til situasjonsplan med ferdig planert terreng på kote 396,5 moh. Bygget er tilknyttet offentlig vann- og avløpsnett med installasjon av sanitæranlegg både innvendig og utvendig. Bygget er oppført med trekonstruksjoner og plass-støpte betongkonstruksjoner, og har gjennomført alle nødvendige kontroller og kvalitetssikringer i henhold til gjeldende regelverk. Ferdigattest er utstedt, og bygget er godkjent for bruk som fritidsbolig.

Produkter og materialer

Grunnarbeid Graving og fylling byggegrube, uteområde, veger, terreng og grøfter

Utført av Hatledal AS, ansvarlig for graving og fylling av byggegrube og uteområder

Grunnarbeid for byggeplass, inkludert terrengarbeid og tilrettelegging for bygging

Gulv Innvendige gulvflater

Gulv i hovedetasje og loft iht. tegninger

Innvendige gulvflater i fritidsboligen

Terrasse Terrasse og uteområder

Terrasse og uteområder planert og tilrettelagt iht. situasjonsplan

Terrasse og uteområder rundt fritidsboligen

Tak Saltak med 30° takvinkel

Takhøyde 2,4 m i hovedetasje, 2,2 m på loft, takvinkel 30°

Tak med saltak konstruksjon for fritidsboligen

Bad Bad med sanitærutstyr

Antall: 2

Bad i hovedetasje (5,4 m²) og på loft (6,1 m²)

Bad med nødvendig sanitærutstyr i fritidsboligen

Vinduer Fasadevindu og takvindu

Flere vinduer i fasade og tak, dimensjoner og plassering iht. tegninger

Vinduer for naturlig lys og ventilasjon i fritidsboligen

Elektro Elektrisk anlegg og varmefordeling

Elektrisitet som energiforsyning, varmepumpe luft som varmefordeling

Elektrisk installasjon og varmefordeling i fritidsboligen

Maling Innvendig og utvendig maling

Maling og overflatebehandling iht. standard for fritidsboliger

Maling av innvendige og utvendige flater

Kjøkken Kjøkkeninnredning

Antall: 1

Kjøkken/stue på 42,9 m² i hovedetasje

Kjøkkeninnredning i fritidsboligen

VVS Sanitæranlegg innvendig og utvendig

Utført av Kr. A Vik AS, inkludert vann- og avløpsinstallasjoner, tilknyttet offentlig VA-nett

Sanitærinstallasjoner for vann og avløp i fritidsboligen

Balkong Overbygde utearealer

Overbygde arealer totalt 14,7 m² fordelt på flere steder

Overbygde utearealer til fritidsboligen

Tømrer Tømrerarbeid og montering av trekonstruksjoner

🧱 Tre

Utført av Stryn Trelast AS / Grandane Consult

Bygging av trekonstruksjoner for fritidsboligen

Betong Plass-støpte betongkonstruksjoner

🧱 Betong

Utført av Stryn Trelast AS / Grandane Consult

Fundamenter og konstruksjoner i betong for fritidsboligen

Isolasjon Isolasjon i vegger, tak og gulv

Isolasjon iht. TEK17 krav for fritidsbolig

Isolasjon for energieffektivitet og komfort

Dører Ytterdører og innerdører

Ytterdører og innerdører iht. tegninger og tekniske krav

Dører for adkomst og rominndeling i fritidsboligen

Hendelser

16.04.2026 Gbnr. 46/281 søknad om ferdigattest
16.04.2026 Ferdigattest for fritidsbustad på gbnr. 46/281 i Hydla
30.04.2025 Vedtak - løyve til oppføring av fritidsbustad på gbnr. 46/281 (tomt 137) i Hydla 3
29.04.2025 Godkjent søknad om tilkopling og utføring av sanitæranlegg/rørleggjarmelding på gbnr. 46/281
25.04.2025 Gbnr. 46/281 - søknad om løyve til tiltak
25.04.2025 Gbnr. 46/281 - søknad om tilkopling og utføring av sanitæranlegg