NewConstruction Rammetillatelse Fritidsbolig

Oppføring av fire campinghytter i Nordlandsveien 100, Værøy

📍 Nordlandsveien 100 , 8063 VÆRØY

Nøkkelinfo

Sakstype
Nybygg
Bygningstype
Fritidsbolig
Bruksareal
67 m²
Boenheter
4
Kommune
Værøy
Fylke
Nordland - Nordlánnda
Gnr / Bnr
17 / 59
Saksnummer
24/160
Fase
Rammetillatelse

Om byggesaken

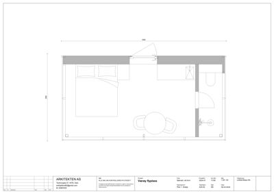
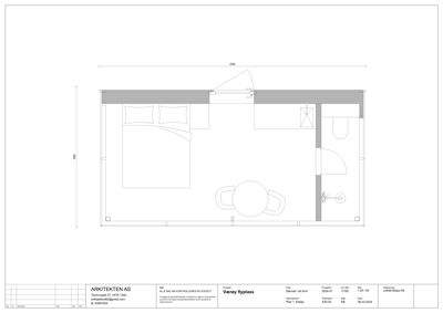
Prosjektet omfatter oppføring av fire kompakte utleiehytter på Nordlandsveien 100, Værøy, på tidligere flyplassområde. Hver hytte har et bruttoareal på ca. 16,75 m² og er plassert på peler for å minimere terrenginngrep. Hyttene bygges i tre med flate tak som kan tekkes med sedum eller torv, og har store vinduer mot nord-nordøst for å gi god utsikt. Byggene har lukket fasade på tre sider og vindusfasade på den fjerde. Området er i dag asfaltert, og det planlegges å etablere en grønn voll som skjerming mot bobiltrafikk. Volden skal også bidra til å gjenopprette naturlig vegetasjon ved å fjerne asfalt på deler av tomten. Hyttene skal tilknyttes privat vannverk og offentlig avløp, og oppfyller kravene i TEK17. Prosjektet har fått rammetillatelse med dispensasjon fra plankrav og byggeforbud i strandsonen, basert på at tiltaket ikke vesentlig tilsidesetter hensynene bak bestemmelsene.

Produkter og materialer

VVS Vann og avløp tilkobling

Antall: 4

Tilkobling til privat vannverk og offentlig avløp med god kapasitet

Vann- og avløpsinstallasjoner i henhold til gjeldende krav

Bygningskomponenter Utleiehytter i tre med flatt tak

🧱 Tre, sedum/torv tak

Antall: 4

Hytter på ca. 16,75 m² BRA, plassert på peler, med lukket fasade på tre sider og stort vindu mot nord-nordøst

Fire kompakte utleiehytter med flate tak og store vinduer, designet for værharde forhold og minimalt klimaavtrykk

Vinduer Store vinduer i utleiehytter

🧱 Glass

Antall: 4

Store vinduer i nord-nordøstlig fasade for utsikt og lysinnslipp

Vinduer i glass med god isolasjonsevne i henhold til TEK17

Grunnarbeid Peling og terrengtilpasning

Antall: 4

Hyttene settes på peler for å unngå store terrenginngrep

Grunnarbeid for peling og tilpasning til eksisterende terreng

Tak Flatt tak med sedum eller torv

🧱 Sedum eller torv

Antall: 4

Taktekking med sedum eller torv vurderes i igangsettingsfase basert på vindforhold

Grønt tak for miljøprofil og isolasjon

Fasade Trepanel fasade

🧱 Tre

Antall: 4

Trepanel med avdempet fargesetting tilpasset omgivelsene

Tradisjonell trepanel fasade med fargevalg i tradisjonell skala

Grunnarbeid Grønn voll og naturrestaurering

Antall: 1

Etablering av grønn voll for skjerming mot bobiltrafikk og fjerning av asfalt for naturrestaurering

Landskapsarbeid for å bedre naturmiljø og adskille trafikk

Tømrer Montering av hytter

🧱 Tre

Antall: 4

Prefabrikkerte hytter monteres på peler på byggeplass

Tømrerarbeid for montering og tilpasning av hytter

Fasader

Uthus

Front
Materiale
Tre
Taktype
Flatt tak
Vinduer
0
Dører
0
Synlige etasjer
1
Right
Materiale
Tre
Taktype
Flatt tak
Vinduer
0
Dører
0
Synlige etasjer
1
Left
Materiale
Tre
Taktype
Flatt tak
Vinduer
0
Dører
0
Synlige etasjer
1
Back
Materiale
Tre
Taktype
Flatt tak
Vinduer
1
Dører
1
Synlige etasjer
1

Hendelser

28.03.2026 Gbn 17/59 - Campinghytter ved Flyplass - Nordland - Dispensasjon Regulering / Byggeskikk
28.03.2026 Gbn 17/59 - Campinghytter ved Flyplass - Nordland - Dispensasjon Regulering / Byggeskikk
28.03.2026 Gbn 17/59 - Campinghytter ved Flyplass - Nordland -Rammesøknad med dispensasjon
28.02.2026 Vedtak
28.02.2026 Rammetillatelse - Campinghytter ved Flyplass - Nordland - gbn 17/59 Nordlandsveien 100