NewConstruction Rammetillatelse Fritidsbolig

Ny fritidsbolig på Øvre Stuggulivegen 64, Oppdal

📍 Øvre Stuggulivegen 64 , 7347 OPPDAL

Nøkkelinfo

Sakstype
Nybygg
Bygningstype
Fritidsbolig
Bruksareal
106 m²
Boenheter
1
Kommune
Oppdal
Fylke
Trøndelag - Trööndelage
Gnr / Bnr
317 / 112
Saksnummer
2026/9515
Fase
Rammetillatelse

Om byggesaken

Ny fritidsbolig på 106 m² BRA og 122 m² BYA oppføres på Øvre Stuggulivegen 64 i Oppdal. Bygget er i ett plan med bindingsverk og trepanel som kledning, saltak med 25 graders takvinkel tekket med grå/svart shingel. Boligen inneholder blant annet stue, kjøkken, TV-stue, tre soverom, to bad, bod, vindfang og utvendig bod. Det er en terrasse på 46 m² langs to sider av bygget, delvis med takoverbygg. Fundamentet består av støpt plate med murstripe, og det legges rør og el-varmekabler i platen. Bygget skal tilknyttes privat felles vann- og avløpsnett, og adkomst skjer via privat vei med tinglyst vegrett. Prosjektet har godkjente tegninger, gjennomføringsplan og ansvarsrett for prosjektering og utførelse.

Produkter og materialer

Fasade Trepanel kledning

🧱 Tre

Bindingsverk med trepanel som utvendig kledning

Yttervegger i bindingsverk kledd med trepanel

Betong Støpt plate med murstripe

🧱 Betong

Støpt hovedplate med murstripe 260-269 mm, rør og el-varmekabler i plate

Fundament og gulvstøp med integrert varmekabler

Bad Våtrom med membran

Antall: 2

To bad med membran og sanitærutstyr

Bad med membran og sanitærinstallasjoner

VVS Sanitærinstallasjoner og bunnledning

Innvendige sanitærinstallasjoner inkl. bunnledning tilkoblet privat fellesanlegg

Vann og avløpsinstallasjoner for fritidsbolig

Terrasse Terrasse på mark

🧱 Tre

Terrasse på 46 m² langs to sider av bygget, delvis med takoverbygg

Uteplass med terrasse og takoverbygg

Dører Ytterdører og terrassedører

Antall: 7

Dører til vindfang, bod, bad, soverom og terrasse

Ytterdører og dører til rom og terrasse

Grunnarbeid Grunn- og terrengarbeid, adkomstvei

Grunnarbeid med radonsperre, bygging av adkomstvei fra regulert veg

Grunnarbeid og vei til tomt

Tak Saltak med shingel

🧱 Shingel, grå/svart

Saltak med 25 graders takvinkel, tekket med grå/svart shingel

Tak med saltak konstruksjon og shingeltekking

Tømrer Trekonstruksjoner

🧱 Tre

Montering av trekonstruksjoner for fritidsbolig

Tømrerarbeid for bygging av hytte

Elektro El-varmekabler i gulvplate

El-varmekabler legges i støpt gulvplate

Elektrisk gulvvarme i betongplate

Vinduer Rektangulære vinduer med sprosser og spesialglass

🧱 Tre/Aluminium (ikke spesifisert)

Antall: 10

Vinduer med moderat størrelse, noen med sprosser, 3 glass uten sprosser i gavl

Fasadevinduer i ulike størrelser og former

Pipe Montering av ildsted og pipe

Antall: 1

Montering av ildsted og pipe i fritidsboligen

Ildsted og pipe for oppvarming

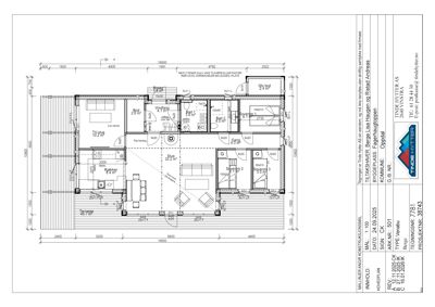
Plantegning

Enebolig 203.4 m²

Etasje 0 0.0 m²

Rom Areal Vinduer Dører

Etasje 1 203.4 m²

Rom Areal Vinduer Dører
TV-stue TV-stue 10.2 m² 1 1
Kjøkken Kjøkken 8.4 m² 1 0
Terrasse Terrasse 45.7 m² 0 0
Stue Stue 32.2 m² 1 1
Bod Bod 2.6 m² 0 1
Vindfang Vindfang 4.1 m² 2 1
Bad 1 Bad 1 3.8 m² 0 1
Bad 2 Bad 2 4.0 m² 0 1
Gang Gang 4.3 m² 2 2
Soverom 1 Soverom 1 6.1 m² 1 1
Soverom 2 Soverom 2 5.1 m² 1 1
Soverom 3 Soverom 3 5.0 m² 1 1
Utv bod Utv bod 2.4 m² 0 1
Bislag Bislag 1.4 m² 0 0

Hovedbygg 0.0 m²

Etasje 1 0.0 m²

Rom Areal Vinduer Dører
Stue 0 0.0 m² 0 0

Hendelser

15.04.2026 317/112 - Supplering av søknad
14.04.2026 317/112 - Tillatelse til oppføring av fritidsbolig
14.04.2026 317/112 - Oppheving av vedtak
09.04.2026 317/112 - Tillatelse til oppføring av fritidsbolig
08.04.2026 317/112 - Supplering av byggesøknad
25.03.2026 317/112 - Grunnboksutskrift
18.03.2026 317/112 - Ett-trinns søknad - Nytt bygg - boligformål