NewConstruction UnderBehandling Fritidsbolig

Ny dobbel utleiehytte på Øyro 31, Rosendal

📍 Øyro 31 , 5470 ROSENDAL

Nøkkelinfo

Sakstype
Nybygg
Bygningstype
Fritidsbolig
Bruksareal
329 m²
Boenheter
2
Kommune
Kvinnherad
Fylke
Vestland
Gnr / Bnr
87 / 67
Saksnummer
2026/292
Fase
Under behandling

Om byggesaken

Ny dobbel utleiehytte på totalt 328,8 m² BRA fordelt på to etasjer med tilsvarende plassering, volum og arkitektonisk utforming som eksisterende hytter i området. Bygget har flere soverom, bad, WC, bod, gang og stue i begge enheter, med til sammen 2 trapper. Hytta bygges i tre med saltak og flatt tak med tegl takmateriale, og har flere vinduer og dører. Bygget er en del av et etablert utleieområde tilknyttet Rosendal Fjordhotel, og skal brukes til kommersiell overnatting. Tiltaket inkluderer tilkomst via privat vei og parkering på egen tomt på 2236 m². Bygget ligger innenfor regulert område for utleiehytter, men krever dispensasjon fra byggegrense mot sjø i kommuneplanen. Dispensasjon er gitt etter politisk behandling med vekt på næringsutvikling og forutsigbarhet, til tross for innsigelser om strandsonens friluftsverdi.

Produkter og materialer

Fasade Trepanel

🧱 Tre

Antall: 1

Trepanel på alle fasader, malt i grå farge

Utvendig kledning av hytta

Trapper Innvendige trapper

🧱 Tre

Antall: 2

To trapper på 2,1 m² hver mellom etasjer

Innvendige trapper for adkomst mellom 1. og 2. etasje i hver enhet

Grunnarbeid Fundamentering og drenering

Grunnarbeid for fundamentering av bygget og drenering rundt

Grunnarbeid for ny dobbel utleiehytte

Dører Ytterdører og innerdører

🧱 Tre

Antall: 30

Ytterdører og innerdører til alle rom og innganger i hytta

Dører for adkomst og rominndeling i dobbel hytta

VVS Sanitæranlegg

Bad og WC med sanitærinstallasjoner, tilknytning til privat vannverk og offentlig avløp

VVS-installasjoner for bad, WC og kjøkken

Maling Utvendig og innvendig maling

Maling av trepanel utvendig og innvendige overflater

Maling for fasade og innvendige flater

Elektro Elektrisk anlegg

Elektrisk installasjon iht. TEK, inkludert belysning og stikkontakter

Elektrisk anlegg for hele bygget

Tømrer Bærekonstruksjon og innvendige vegger

🧱 Tre

Trestenderverk 198 mm, innvendige vegger med platekledning

Tømrerarbeid for bærekonstruksjon og innvendige vegger

Gulv Innvendige gulv

🧱 Parkett og fliser

Parkett i stue og soverom, fliser på bad og WC

Innvendige gulvflater med ulike overflater

Tak Saltak og flatt tak

🧱 Tegl takstein

Antall: 1

Saltak med tegl takmateriale på hoveddelen, flatt tak med tegl på del av bygget

Taktekking for dobbel hytta

Vinduer Fasadevindu

🧱 Tre/aluminium

Antall: 26

Vinduer i ulike størrelser, inkludert 3-lags energiglass, fordelt på fasader og etasjer

Vinduer til stue, soverom, bod og andre rom i dobbel hytta

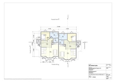
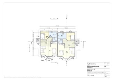
Plantegning

Dobbel-hytte 328.8 m²

Etasje 1 194.8 m²

Rom Areal Vinduer Dører
Stue 101 24.8 m² 3 1
Gang 102 11.0 m² 0 4
Soverom 103 8.4 m² 1 1
Bad 104 6.3 m² 0 1
WC 105 2.6 m² 0 1
Bod 106 1.5 m² 1 1
Stue 201 24.7 m² 3 1
Gang 202 11.0 m² 0 4
Soverom 203 8.5 m² 1 1
Bad 204 6.3 m² 0 1
WC 205 2.6 m² 0 1
Bod 206 1.5 m² 1 1
Stue 107 24.7 m² 3 1
Gang 108 11.0 m² 0 4
Soverom 109 8.5 m² 1 1
Bod 110 1.5 m² 1 1

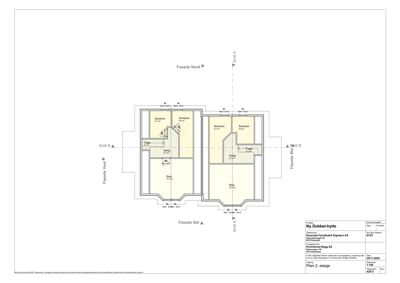
Etasje 2 134.0 m²

Rom Areal Vinduer Dører
Stue 201 18.3 m² 2 1
Gang 202 6.1 m² 0 4
Soverom 203 8.7 m² 1 1
Soverom 204 5.8 m² 1 1
Trapp 205 2.1 m² 0 0
Stue 301 17.7 m² 2 1
Gang 302 5.7 m² 0 4
Soverom 303 8.4 m² 1 1
Soverom 304 5.7 m² 1 1
Trapp 305 2.1 m² 0 0
Stue 206 18.3 m² 2 1
Gang 207 6.1 m² 0 2
Soverom 208 8.7 m² 1 1
Soverom 209 5.8 m² 1 1
Trapp 210 2.1 m² 0 0

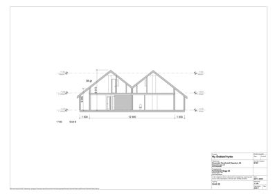
Fasader

Ny Dobbel-hytte

Vest
Materiale
Tre
Taktype
Flatt tak
Takmat.
Tegl
Vinduer
2
Dører
1
Synlige etasjer
1
Nord
Materiale
Tre
Taktype
Saltak
Takmat.
Tegl
Vinduer
6
Dører
2
Synlige etasjer
2

Hendelser

14.04.2026 Særutskrift - Behandling dispensasjon - 87/67 - dobbel utleigehytte - Øyro 31, Rosendal
23.03.2026 Supplering av søknad - 87/67
10.03.2026 Uttale - dispensasjon - Kvinnherad 87/67 - Rosendalsvegen 46 - utleigehytte
16.02.2026 Vestland fylkeskommune sin uttale til søknad om dispensasjon frå byggegrense - oppføring av dobbel utleigehytte - 87/67
09.02.2026 Bed om uttale - dispensasjon frå byggeforbodet i KPA - 87/67 - Rosendal
03.02.2026 Mangelbrev - Eitt-trinns søknad og dispensasjon - 87/67
09.01.2026 Stadfesting på mottatt søknad - Eitt-trinns søknad - 87/67
09.01.2026 Søknad om tiltak - Eitt-trinns - 87/67