NewConstruction UnderBehandling Fritidsbolig

Ny fritidsbolig og garasje på Pjeksen 12

📍 Pjeksen 12 , 2636 ØYER

Nøkkelinfo

Sakstype
Nybygg
Bygningstype
Fritidsbolig
Bruksareal
271 m²
Boenheter
1
Kommune
Øyer
Fylke
Innlandet
Gnr / Bnr
16 / 489
Saksnummer
2025/3180
Fase
Under behandling

Om byggesaken

Ny fritidsbolig med totalt bruttoareal på ca. 271 m² fordelt på to etasjer, med saltak og pulttak dekket med sedum. Bygget har flere boder, bad, kjøkken/stue på 57 m², samt oppholdsrom og hems med ståhøyde. Fasaden er i tre med flere vinduer og dører, og det er pipe tilknyttet. Det planlegges også en garasje på eiendommen. Bygget har en gesimshøyde som overskrider reguleringsplanens maksimum med inntil 1,78 meter på enkelte punkter, og mønehøyden er 5,37 meter. Det er søkt dispensasjon for gesimshøyde, men denne er avslått av kommunen. Tiltaket er tilpasset terrenget for å redusere visuell påvirkning og har et variert takvolum for bedre dagslys og brukbar hems.

Produkter og materialer

Gulv Innvendige gulv

Innvendige gulv i oppholdsrom og soverom

Vinduer Fasadevindu

Antall: 13

Totalt 13 fasadevinduer i trefasaden

Dører Ytterdører

Antall: 7

Totalt 7 ytterdører fordelt på begge etasjer

Fasade Trepanel

🧱 Tre

Trefasade med sedumtak

Utvendig kledning i tre med sedumtak på saltak og pulttak

Isolasjon Vegger og tak

Isolasjon i vegger og tak for fritidsbolig

VVS Sanitær og varme

VVS-installasjoner for bad, kjøkken og oppvarming

Tak Saltak og pulttak med sedum

🧱 Sedum

Saltak og pulttak med sedum som takmateriale

Grønt tak med sedum på både saltak og pulttak

Elektro Elektrisk anlegg

Elektriske installasjoner for belysning, strøm og sikkerhet

Trapper Innvendig trapp

Antall: 1

Innvendig trapp mellom etasjene

Garasjeport Garasjeport

Antall: 1

Garasje med port på eiendommen

Pipe Vedovn/peispipe

Antall: 1

Pipe tilknyttet bygget

Terrasse Uteområde med jacuzzi

Antall: 1

Terrasse med jacuzzi uten vinduer eller dører

Grunnarbeid Plate på mark

Bygget fundamenteres på plate på mark

Grunnarbeid med plate på mark som fundament

Bad Bad og vaskerom

Antall: 3

Tre bad med sanitærutstyr og fliser/overflater

Tømrer Bærende konstruksjoner og innvendige vegger

🧱 Tre

Tømrerarbeid for bærende konstruksjoner og innvendige vegger i tre

Plantegning

Ny Hytte Mosetertoppen 271.3 m²

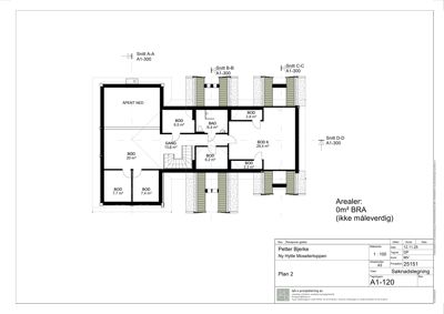
Etasje 2 120.5 m²

Rom Areal Vinduer Dører
Åpent ned 201 20.0 m² 0 1
Bod 202 20.0 m² 0 1
Bod 203 7.7 m² 0 1
Bod 204 7.4 m² 0 1
Bod 205 6.5 m² 0 1
Gang 206 13.8 m² 0 3
Bad 207 6.4 m² 0 2
Bod 208 6.2 m² 0 1
Bod 6 209 29.4 m² 0 1
Bod 210 2.3 m² 0 1
Bod 211 2.8 m² 0 1

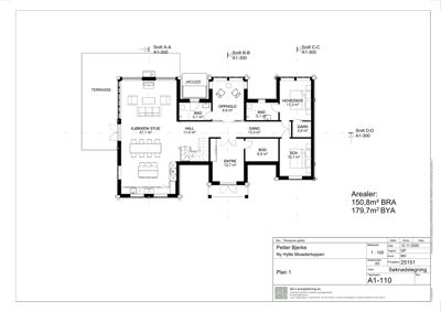
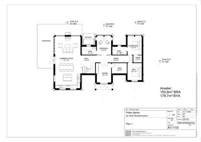
Etasje 1 150.8 m²

Rom Areal Vinduer Dører
Kjøkken/ Stue 101 57.1 m² 2 2
Hall 102 11.5 m² 0 2
Opphold 103 9.9 m² 0 2
Jacuzzi 104 0.0 m² 0 0
Bad 105 5.1 m² 0 1
Gang 106 13.3 m² 0 3
Hovedsoverom 107 11.3 m² 1 2
Bad 108 5.1 m² 0 1
Garderobe 109 2.6 m² 0 1
Soverom 110 10.7 m² 1 1
Bod 111 6.9 m² 0 1
Entré 112 12.7 m² 0 1

Hytte 150.8 m²

Etasje 1 150.8 m²

Rom Areal Vinduer Dører
Kjøkken/Stue KJØKKEN/STUE 57.1 m² 3 2
Hall HALL 11.5 m² 0 1
Entre ENTRE 12.7 m² 0 2
Opphold OPP HOLD 9.9 m² 0 1
Gang GANG 13.3 m² 0 2
Bad BAD 5.1 m² 0 1
Jacuzzi JACUZZI 0.0 m² 0 0
Bad BAD 5.1 m² 0 1
Hovedsoverom HOVEDSOV 11.3 m² 2 1
Garderobe GARD 2.6 m² 0 1
Soverom SOV 10.7 m² 1 1
Bod BOD 6.9 m² 0 1

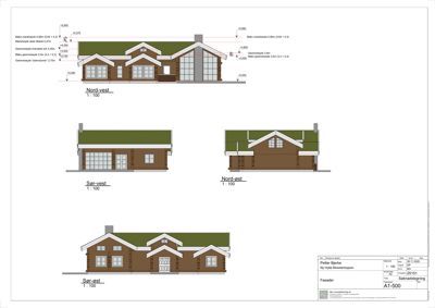
Fasader

Ny Hytte Moseteroppen

Nord-vest
Materiale
Tre
Taktype
Saltak
Takmat.
Sedum
Høyde
3.5 m
Mønehøyde
5.4 m
Vinduer
5
Dører
1
Synlige etasjer
2
Sør-vest
Materiale
Tre
Taktype
Pulttak
Takmat.
Sedum
Vinduer
2
Dører
1
Synlige etasjer
1
Nord-øst
Materiale
Tre
Taktype
Saltak
Takmat.
Sedum
Vinduer
2
Dører
0
Synlige etasjer
1
Sør-øst
Materiale
Tre
Taktype
Saltak
Takmat.
Sedum
Vinduer
4
Dører
1
Synlige etasjer
1

Hendelser

13.04.2026 Dispensasjon 21.04.26 - Eiendom 16/489 - Gesimshøyde - Plan-ID 0521 201708 MOSETERTOPPEN–PJEKSEN FB5, 6 OG DEL AV FB13 - Pjeksen 12
25.02.2026 Dispensasjon - Eiendom 16/489 - Gesimshøyde - Plan-ID 0521 201708 MOSETERTOPPEN–PJEKSEN FB5, 6 OG DEL AV FB13 - Pjeksen 12
09.02.2026 Dispensasjonssøknad - Eiendom 16/489 - Garasje og fritidsbolig dispensasjon fra bestemmelsene for gesims - Pjeksen 12
18.12.2025 Rammesøknad -Eiendom 16/489 - Garasje og fritidsbolig - Pjeksen 12