NewConstruction Soeknad Fritidsbolig

Ny fritidsbolig og driftsbygg på Såsteinsundet 130, Bamble

📍 Såsteinsundet 130 , 3967 STATHELLE

Nøkkelinfo

Sakstype
Nybygg
Bygningstype
Fritidsbolig
Bruksareal
186 m²
Boenheter
1
Kommune
Bamble
Fylke
Telemark
Gnr / Bnr
92 / 37
Saksnummer
2026/2175
Fase
Søknad

Om byggesaken

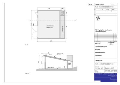
Ny fritidsbolig på 99 m² BRA med saltak og tradisjonelt arkitektonisk formspråk, inkludert hems, oppføres som erstatning for en sammenrast hytte. I tillegg bygges en driftsbygning på 87,3 m² BRA for lagring av maskiner og materiell til skjøtsel av eiendommen, med betongstøpt batterirom og vanntank for brannsikring. Begge byggene har trekledning og saltak med tegltak. Det planlegges solcellepaneler på taket av driftsbygget for strømproduksjon til batteribanken. Eiendommen ligger på en øy i LNF-område med hensynssone friluftsliv, og tiltaket inkluderer også privat vann- og avløpsanlegg med minirenseanlegg. Samlet bebygd areal etter tiltaket blir 252,1 m² BRA og 283,9 m² BYA. Tiltaket innebærer riving av eksisterende bygninger og oppføring av ny bebyggelse samlet i et tun midt på øya.

Produkter og materialer

VVS Privat vannverk og vanntank

Antall: 1

Vanntank for oppsamling av regnvann til brannsikring og forbruk

Privat vannforsyning med vanntank for brannberedskap og forbruk

Dører Ytterdører

🧱 Tre

Antall: 7

Ytterdører på fritidsbolig og driftsbygg

Dører i tre tilpasset byggenes arkitektur

VVS Minirenseanlegg

Antall: 1

Minirenseanlegg for avløp med rensegrad på 98%

Privat avløpsanlegg med minirenseanlegg for rensing av avløp

Fasade Trekledning

🧱 Tre

Tradisjonell trekledning på både fritidsbolig og driftsbygg

Fasadebekledning i tre for ny fritidsbolig og driftsbygg

Tømrer Nybygg av fritidsbolig og driftsbygg

Nybygg med tradisjonell trekonstruksjon og saltak

Tømrerarbeid for oppføring av ny fritidsbolig og driftsbygg

Gulv Innvendige gulv

Innvendige gulv i fritidsboligen (ikke spesifisert materiale)

Tak Saltak med tegltak

🧱 Tegl

Antall: 2

Saltak med tegltak på fritidsbolig og driftsbygg

Taktekking med tegltak på begge bygg

Trapper Innvendig trapp til hems

Antall: 1

Innvendig trapp til hems i fritidsboligen

Vinduer Oppsprossede vinduer

🧱 Tre/aluminium

Antall: 17

Oppsprossede vinduer på fritidsbolig, 2 vinduer på driftsbygg

Vinduer i tradisjonelt arkitektonisk formspråk

Betong Betong støpt batterirom

🧱 Betong

Antall: 1

Betongrom formet som skorstein for batteribanken, brannsikret

Betongrom for batteribank med brannsikring i driftsbygget

Grunnarbeid Riving av eksisterende bygninger

Riving av eksisterende hytte og driftsbygninger på eiendommen

Riving av eksisterende bebyggelse før nybygging

Elektro Solcellepaneler

Solcellepaneler montert på takflater mot sør/vest på driftsbygget

Solcelleanlegg for lading av batteribank i driftsbygget

Plantegning

Driftsbygg 87.3 m²

Etasje 1 87.3 m²

Rom Areal Vinduer Dører
Driftsbygg DRIFTSBYGG 87.3 m² 2 2
Vann tank VANN TANK 0.0 m² 0 0
Batteri rommet BATTERI ROMMET 0.0 m² 0 0

Enebolig 99.0 m²

Etasje 1 99.0 m²

Rom Areal Vinduer Dører
Sov 1 101 13.4 m² 1 1
Sov 103 10.3 m² 1 1
Allrom 104 55.4 m² 3 1
WC 105 1.9 m² 0 1
Bad 106 5.8 m² 0 1
Gang 104 9.7 m² 0 1

Fasader

Enebolig

Sør
Materiale
Tre
Taktype
Saltak
Takmat.
Tegl
Vinduer
2
Dører
1
Synlige etasjer
1
Øst
Materiale
Tre
Taktype
Saltak
Takmat.
Tegl
Vinduer
5
Dører
0
Synlige etasjer
1
Nord
Materiale
Tre
Taktype
Saltak
Vinduer
3
Dører
0
Synlige etasjer
1
Vest
Materiale
Tre
Taktype
Saltak
Vinduer
3
Dører
1
Synlige etasjer
1

Hendelser

21.04.2026 Avslag på dispensasjonssøknad - gbnr. 92/37 - Såsteinsundet 130 - rive og bygge ny fritidsbolig og driftsbygning
21.04.2026 Gebyr - gbnr. 92/37 - Såsteinsundet 130 - rive og bygge ny fritidsbolig
25.03.2026 Søknad om tillatelse til tiltak - gbnr. 92/37 - Såsteinsundet 130 - rive og bygge ny fritidsbolig