NewConstruction UnderBehandling Fritidsbolig

Riving og gjenoppføring av hytte med kjeller på Nevlungstranda 43

📍 Sebergveien 12 , 3296 NEVLUNGHAVN

Nøkkelinfo

Sakstype
Nybygg
Bygningstype
Fritidsbolig
Bruksareal
172 m²
Boenheter
1
Kommune
Larvik
Fylke
Vestfold
Gnr / Bnr
4091 / 2
Saksnummer
2026/2987
Fase
Under behandling

Om byggesaken

Ny fritidsbolig på Nevlungstranda 43 med totalt 171,6 m² BRA fordelt på hovedetasje og underliggende kjeller. Hytta har flatt tak, trekledning i naturtilpassede farger, og er utformet med moderne arkitektur tilpasset terrenget. Kjelleretasjen inneholder kjellerstue, soverom, bad og teknisk rom, og ligger hovedsakelig under terreng med lysgrav mot øst. Hovedetasjen inneholder stue, kjøkken, bad, tre soverom, bod og korridorer. Bygget har god terrengtilpasning med begrensede oppfyllinger og masseutskifting for å sikre fundamentering og drenering. Utearealene inkluderer atrium og terrasse med sjøutsikt. Tiltaket omfatter også oppgradering av overvannshåndtering med gresskledde svanker og flomvei til eksisterende grøfter. Bygget holder seg innenfor gjeldende krav til BYA (129,7 m²) og maksimal byggehøyde (ca. 4 m gesimshøyde).

Produkter og materialer

Gulv Innvendige gulv

Gulv i oppholdsrom, soverom, bad og kjellerstue

Gulvbelegg tilpasset romfunksjon

Tak Flatt tak

🧱 trolig membran eller tilsvarende vanntett taktekking

Antall: 1

Flatt tak med gesimshøyde ca. 3,5-3,9 m over terreng

Vanntett flatt tak med trappet nivå for å redusere volum

Annet Overvannshåndtering

🧱 gresskledde svanker, grøfter

Overvannsløsning med gresskledde svanker og flomvei til grøfter langs vei

Løsning for håndtering av overvann på egen tomt

Grunnarbeid Masseutskifting og terrengoppfylling

🧱 jordmasser og fyllmasser

Oppfylling opptil ca. 1 m for fundamentering og drenering

Masseutskifting for å sikre stabile grunnforhold og drenering

Tømrer Bygging av bærende konstruksjoner

🧱 tre

Bærende vegger, takstoler, innvendige skillevegger

Tømrerarbeid for oppføring av hytte og kjeller

Betong Kjellerfundament og vegger

🧱 betong

Kjellervegger og fundamentering for underetasje

Betongkonstruksjon for kjeller og bæresystem

Fasade Trekledning

🧱 tre i naturtilpassede fargetoner

Nedtonet og stedstilpasset fasade med trekledning

Fasadebekledning for estetisk og funksjonell tilpasning til området

VVS Bad og teknisk rom

Sanitærinstallasjoner i bad i kjeller og hovedetasje, teknisk rom i kjeller

VVS-installasjoner for bad og tekniske funksjoner

Maling Innvendig og utvendig maling

Maling av treverk og innvendige flater

Overflatebehandling for beskyttelse og estetikk

Ventilasjon Mekanisk ventilasjon

Ventilasjonssystem for oppholdsrom og bad

Ventilasjon for inneklima og fuktstyring

Terrasse Uteplass og balkong

🧱 tre eller kompositt

Antall: 1

Terrasse med sjøutsikt og balkong tilknyttet stue/kjøkken

Utearealer for opphold og utsikt

Vinduer Fasadevindu

🧱 tre med 3-lags glass

Antall: 8

Vinduer i hoved- og kjelleretasje, inkludert lysgravsvindu i kjeller

Vinduer for dagslys og utsyn i stue, kjøkken, soverom og bod

Dører Ytterdører og terrassedør

🧱 tre eller tilsvarende

Antall: 10

Inngangsdører, dør til utebod, dør til terrasse og kjellerdør med lysgrav

Dører for adkomst til hytte, kjeller og uteområder

Elektro Belysning og strøm

Elektriske installasjoner i hele hytta

Elektroinstallasjoner for belysning, strøm og tekniske systemer

Rekkverk Terrasserekkverk

🧱 tre eller annet egnet materiale

Rekkverk på terrasse og evt. balkong

Sikkerhetsrekkverk for utearealer

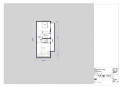
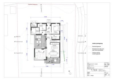
Plantegning

Enebolig 171.6 m²

Etasje 0 51.1 m²

Rom Areal Vinduer Dører
Kjellerstue Kjellerstue 23.6 m² 0 1
Korridor Korridor 6.6 m² 0 1
Bad Bad 6.5 m² 0 1
Sov Sov 14.4 m² 1 1

Etasje 1 120.5 m²

Rom Areal Vinduer Dører
Stue 101 15.9 m² 1 1
Kjøkken 102 23.6 m² 1 1
Bad 103 4.9 m² 0 1
Soverom 104 10.9 m² 1 1
Soverom 105 6.6 m² 1 1
Soverom 106 6.7 m² 1 1
Bod 107 2.6 m² 1 1
Korridor 108 5.1 m² 0 1
Korridor 109 8.7 m² 0 1

Fasader

Hytte

Sør
Materiale
Tre
Taktype
Flatt tak
Høyde
3.9 m
Vinduer
3
Dører
1
Synlige etasjer
1
Øst
Materiale
Tre
Taktype
Flatt tak
Høyde
3.9 m
Vinduer
3
Dører
1
Balkonger
1
Synlige etasjer
1

Ny hytte

Vest
Materiale
Tre
Taktype
Flatt tak
Høyde
3.5 m
Vinduer
1
Dører
1
Synlige etasjer
1
Nord
Materiale
Tre
Taktype
Flatt tak
Høyde
3.5 m
Vinduer
1
Dører
1
Synlige etasjer
1

Hendelser

14.04.2026 Foreløpig tilbakemelding - Rive og gjenoppføre hytte - Nevlungstranda 43 - gbfnr 4091/2/42
26.03.2026 Etterspør status - Rive og gjenoppføre hytte- Nevlungstranda 43 - gbfnr 4091/2/42
20.02.2026 Supplering av søknad - Rive og gjenoppføre hytte- Nevlungstranda 43 - gbfnr 4091/2/42
12.02.2026 Supplering av søknad - Rive og gjenoppføre hytte- Nevlungstranda 43 - gbfnr 4091/2/42
11.02.2026 Søknad om rammetillatelse - Rive og gjenoppføre hytte- Nevlungstranda 43 - gbfnr 4091/2/42