NewConstruction UnderBehandling Fritidsbolig

Ny fritidsbolig med sjøbod og terrasse i Justøyveien 97

📍 Skalle, Justøyveien 97 , 4790 LILLESAND

Nøkkelinfo

Sakstype
Nybygg
Bygningstype
Fritidsbolig
Bruksareal
65 m²
Boenheter
1
Kommune
Lillesand
Fylke
Agder
Gnr / Bnr
12 / 55
Saksnummer
2026/1079
Fase
Under behandling

Om byggesaken

Ny fritidsbolig på ca. 65 m² BYA med saltak og tradisjonell sørlandsk byggeskikk oppføres lavere i terrenget for bedre landskapstilpasning og redusert synlighet. Bygget har to etasjer med stue, kjøkken, bad og tre soverom. Det etableres en enkel, uisolert sjøbod på ca. 10 m² med valmtak og teglstein tak, malt i rødt, til lagring og transportutstyr. Ny terrasse på ca. 30 m² erstatter eksisterende terrasse, med bedre tilpasning til terreng og bygningskropp. Det etableres VA-anlegg for tilkobling til offentlig vann og avløp. Tiltaket innebærer riving av eksisterende fritidsbolig på ca. 53 m² BYA og oppgradering til moderne standard med bedre terrengtilpasning og miljøforbedringer.

Produkter og materialer

Tømrer Bygningskonstruksjon og tømrerarbeid

🧱 Tre

Tømrerarbeid for oppføring av fritidsbolig og sjøbod

Bygningskonstruksjon i tre for fritidsbolig og sjøbod

Gulv Innvendige gulv

Standard gulvbelegg tilpasset fritidsbolig

Gulv i stue, kjøkken, bad og soverom

Terrasse Ny terrasse

🧱 Tre eller tilsvarende terrassemateriale

Antall: 1

Ca. 30 m², tilpasset terreng og bygningskropp, redusert areal fra tidligere 40 m²

Ny terrasse med bedre terrengtilpasning og mindre visuell eksponering

Grunnarbeid Terrenginngrep og fundamentering

Fjerning av ca. 30 m³ fjellnabb, tilbakeføring av terreng til naturlige formasjoner

Grunnarbeid for ny plassering av fritidsbolig og terrasse

Elektro Elektrisk anlegg

Elektrisk installasjon iht. gjeldende forskrifter

Elektrisk anlegg for fritidsbolig og sjøbod

VVS VA-anlegg for tilkobling til offentlig nett

Antall: 1

Etablering av vann- og avløpsledning med tilhørende installasjoner, miljøforbedring

VA-anlegg for tilkobling til offentlig vann og avløpsnett

Fritidsbolig Ny fritidsbolig i to etasjer

🧱 Tre, saltak

Antall: 1

65 m² BYA, BRA ca. 59,8 m², tradisjonell sørlandsk byggeskikk, kompakt form, saltak, moderate høyder

Ny fritidsbolig med stue, kjøkken, bad og tre soverom fordelt på to etasjer

Dører Ytterdører og innerdører

🧱 Tre eller tilsvarende

Antall: 9

2 ytterdører i sjøbod, 1 ytterdør i fritidsbolig, 6 innerdører i fritidsbolig

Dører for adkomst og romavgrensning

Isolasjon Bygningsisolasjon

Isolasjon tilpasset dagens byggtekniske krav for fritidsbolig

Isolasjon for energieffektivitet og komfort i fritidsboligen

Tak Saltak med teglstein

🧱 Teglstein takmateriale

Antall: 2

Saltak på fritidsbolig og sjøbod, teglstein tak på sjøbod

Taktekking for fritidsbolig og sjøbod

Sjøbod Enkel sjøbod

🧱 Tre, valmtak med teglstein tak, malt rød

Antall: 1

Ca. 10 m² BYA, uisolert, uten oppholdsfunksjon

Sjøbod for lagring og transportutstyr, tilpasset eksisterende bebyggelsesmønster

Bad Bad med sanitærutstyr

Antall: 1

Bad på ca. 9,5 m² med standard sanitærutstyr

Bad i fritidsboligen

Vinduer Fasadevindu og takvindu

🧱 Tre eller aluminium, 3-lags energiglass antatt

Antall: 9

Stue 3 vinduer, kjøkken 1 vindu, soverom 4 vinduer, totalt 9 vinduer i fritidsbolig

Vinduer i fritidsboligen for dagslys og ventilasjon

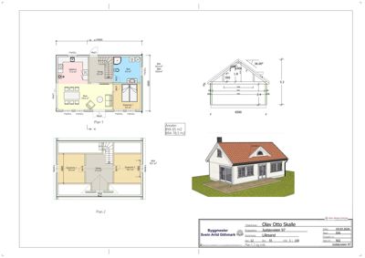
Plantegning

Enebolig 83.7 m²

Etasje 1 65.0 m²

Rom Areal Vinduer Dører
Stue 101 19.4 m² 3 1
Kjøkken 102 11.2 m² 1 0
Gang 103 8.3 m² 0 2
Bad 104 9.5 m² 0 1
Soverom 1 105 9.5 m² 2 1

Etasje 2 18.7 m²

Rom Areal Vinduer Dører
Gang 201 11.5 m² 0 2
Soverom 1 202 10.5 m² 1 1
Soverom 1 203 10.7 m² 1 1

Fasader

Sjøbod

Sør/vest
Materiale
Tre
Taktype
Valmtak
Takmat.
Tegl
Høyde
3.4 m
Mønehøyde
5.5 m
Vinduer
1
Dører
0
Synlige etasjer
1
Nord/vest
Materiale
Tre
Taktype
Valmtak
Takmat.
Tegl
Høyde
3.4 m
Mønehøyde
5.5 m
Vinduer
0
Dører
0
Synlige etasjer
1
Sør/øst
Materiale
Tre
Taktype
Valmtak
Takmat.
Tegl
Høyde
3.4 m
Mønehøyde
5.5 m
Vinduer
0
Dører
0
Synlige etasjer
1
Nord/øst
Materiale
Tre
Taktype
Valmtak
Takmat.
Tegl
Høyde
3.4 m
Mønehøyde
5.5 m
Vinduer
0
Dører
1
Synlige etasjer
1
Øst
Materiale
Tre
Taktype
Valmtak
Takmat.
Tegl
Høyde
3.4 m
Mønehøyde
5.5 m
Vinduer
0
Dører
1
Synlige etasjer
1

Eksisterende hytte

Vest
Materiale
Tre
Taktype
Valmtak
Høyde
4.7 m
Mønehøyde
5.3 m
Vinduer
2
Dører
0
Synlige etasjer
1
Sør
Materiale
Tre
Taktype
Valmtak
Høyde
5.3 m
Vinduer
4
Dører
1
Synlige etasjer
1

Hendelser

20.04.2026 Tilleggsinformasjon
15.04.2026 Ber om høyde og BRA på eksisterende
15.04.2026 Vedrørende begrunnelsen
27.03.2026 Søknad om dispensasjon
27.03.2026 Tilleggsdokumentasjon til søknad om dispensasjon - bilder av eksisterende fritidsbolig