NewConstruction UnderBehandling Fritidsbolig

Oppføring av to fritidsboliger med avløpsanlegg på Skjæringa 8, Senja

📍 Skjæringa 8 , 9385 SKALAND

Nøkkelinfo

Sakstype
Nybygg
Bygningstype
Fritidsbolig
Bruksareal
97 m²
Boenheter
2
Kommune
Senja
Fylke
Troms - Romsa - Tromssa
Gnr / Bnr
307 / 5
Saksnummer
2025/229
Fase
Under behandling

Om byggesaken

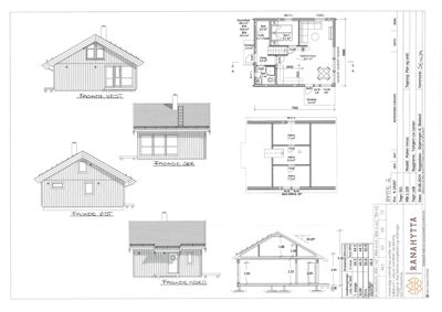
To nye frittliggende fritidsboliger med grunnflate på ca. 48,5 m² hver skal oppføres på eiendommen Skjæringa 8, gnr. 307, bnr. 5 i Senja kommune. Byggene er planlagt plassert på parsellen mot sjøen, bak eksisterende bebyggelse, med saltak og tre som hovedmateriale. Hver bolig har en etasje, gesimshøyde på 2 meter og mønehøyde på 5,2 meter, med flere vinduer og pipe. Det etableres privat avløpsanlegg med slamavskiller og utslippsledning som legges i bergsprekker og tildekkes med betong og naturstein. Adkomst skjer via eksisterende kommunal vei med søkt utvidet bruk av avkjørsel. Prosjektet krever dispensasjon fra plankrav i kommuneplanens arealdel, byggegrense i 100-metersbeltet langs sjø og eventuelt byggegrense mot fylkesvei. Saken har vært gjenstand for klagebehandling og er under politisk og forvaltningsmessig vurdering.

Produkter og materialer

Fasade Trepanel

🧱 Tre

Antall: 2

Fasade i tre, saltak med gesimshøyde 2m og mønehøyde 5,2m

Trepanel til fasader på to fritidsboliger med saltak

Veiarbeid Avkjørsel

Antall: 1

Utvidet bruk av eksisterende avkjørsel til kommunal vei

Søknad om utvidet bruk av eksisterende avkjørsel til kommunal vei

Pipe Elementpipe

🧱 Mur/element

Antall: 2

Pipe på begge fritidsboliger

Piper for ildsted i begge fritidsboliger

VVS Privat avløpsanlegg

🧱 Slamavskiller, PE-rør

Antall: 1

Slamavskiller i glassfiberarmert polyester (GUP) med utslippsledning i bergsprekker, tildekket med betong og naturstein

Privat avløpsanlegg med slamavskiller og utslippsledning til sjø

Dører Ytterdør

🧱 Tre

Antall: 1

Ytterdør på nordfasade

Ytterdør til en av fritidsboligene

Elektro Sanitæranlegg

Antall: 2

Sanitæranlegg for to fritidsboliger

Installasjon av sanitæranlegg i to fritidsboliger

Vinduer Fasadevindu

🧱 Tre/aluminium

Antall: 8

Vinduer fordelt på fasader: 2 vest, 3 sør, 2 øst, 1 nord

Fasadevinduer til to fritidsboliger

Tak Saltak

🧱 Takstein eller lignende

Antall: 2

Saltak på to fritidsboliger, mønehøyde 5,2m

Takmaterialer for saltak på to fritidsboliger

Grunnarbeid Fundament og terrengarbeid

Antall: 2

Fundamentering og grunnarbeid for to fritidsboliger

Grunnarbeid og fundamentering for to fritidsboliger

Tømrer Elementbygg

🧱 Prefabrikkerte elementer

Antall: 2

Prefabrikkerte elementbygg levert av Ranahytta AS

Montering av to prefabrikkerte fritidsboliger

Fasader

Ranahytta

Vest
Materiale
Tre
Taktype
Saltak
Høyde
2.0 m
Mønehøyde
5.2 m
Vinduer
2
Dører
0
Synlige etasjer
1
Sør
Materiale
Tre
Taktype
Saltak
Høyde
2.0 m
Mønehøyde
5.2 m
Vinduer
3
Dører
0
Synlige etasjer
1
Øst
Materiale
Tre
Taktype
Saltak
Høyde
2.0 m
Mønehøyde
5.2 m
Vinduer
2
Dører
0
Synlige etasjer
1
Nord
Materiale
Tre
Taktype
Saltak
Høyde
2.0 m
Mønehøyde
5.2 m
Vinduer
1
Dører
1
Synlige etasjer
1

Hendelser

13.04.2026 Purring på tilbakemelding - klage på avslag på søknad om dispensasjon fra plankrav og plan- og bygningsloven - 2 nye fritidsboliger - Skjæringa 8 - gbnr. 307/5
13.04.2026 Bekreftelse på mottatt klage og videre saksgang - Skjæringa 8 - gbnr. 307/5
24.02.2026 Klage på avslag på søknad om dispensasjon fra plankrav og plan- og bygningsloven - 2 nye fritidsboliger - Skjæringa 8 - gbnr. 307/5
06.02.2026 Melding om vedtak UFS sak - fornyet dispensasjonsvurdering - dispensasjon fra plankrav og pbl § 1-8 - 2 nye fritidsboliger - Skjæringa 8 - gbnr. 307/5
17.11.2025 Tilleggsinformasjon - nytt bygg - 2 fritidsboliger, utslipp, dispensasjon - Skjæringa 8 - gbnr. 307/5
07.11.2025 Foreløpig svar - videre saksgang etter vedtak fra Statsforvalteren - nytt bygg - 2 fritidsboliger, utslipp, dispensasjon - Skjæringa 8 - gbnr. 307/5
06.10.2025 Kommunens vedtak oppheves - dispensasjon fra plankrav til oppføring av fritidsboliger - Skjæringa 8 - gbnr. 307/5
12.08.2025 Svar på status på sak - nytt bygg - 2 fritidsboliger, utslipp, dispensasjon - Skjæringa 8 - gbnr. 307/5
11.07.2025 Orientering om forventet behandlingstid av klagesak - estimert til utgangen av august - oppføring av to nye hytter - Skjæringa 8 - gbnr. 307/5
11.07.2025 Svar på spørsmål om status på sak - nybygg - 2 fritidsbygg og avløpsanlegg - Skjæringa 8 - gbnr. 307/5
10.07.2025 Spørsmål om status på sak - nybygg - 2 fritidsbygg og avløpsanlegg - Skjæringa 8 - gbnr. 307/5
03.07.2025 Anmodning om uttalelse - søknad om utslippstillatelse - Skjæringa 8 - gbnr. 307/5
10.06.2025 Supplering av søknad - nytt bygg - 2 fritidsboliger, utslipp, dispensasjon - Skjæringa 8 - gbnr. 307/5
15.05.2025 Bekreftelse på mottatt klagesak - forventet behandlingstid - oppføring av to nye hytter - Skjæringa 8 - gbnr. 307/5
12.05.2025 Melding om vedtak i UFS sak 44/2025 - klagebehandling - dispensasjon fra plankrav - oppføring av to nye hytter - Skjæringa 8 - gbnr. 307/5
08.05.2025 Svar på supplering av søknad - nytt bygg - 2 fritidsboliger og avløpsanlegg - Skjæringa 8 - gbnr. 307/5
30.04.2025 Supplering av søknad - nytt bygg - 2 fritidsboliger, utslipp, dispensasjon - Skjæringa 8 - gbnr. 307/5
29.04.2025 Mangelbrev - anmodning om tilleggsinformasjon - ett-trinns søknad - nybygg - 2 fritidsbygg og avløpsanlegg - Skjæringa 8 - gbnr. 307/5
28.04.2025 Tilleggsinformasjon - søknad om utvidet bruk av avkjørsel fra kommunal vei - Skjæringa 8 - gbnr. 307/5
25.04.2025 Til informasjon - søknad om oppsettende virkning - søknad om dispensasjon fra plankrav - 2 nye fritidsboliger - Skjæringa 8 - gbnr. 307/5
23.04.2025 Bekreftelse på mottatt klage på vedtak om dispensasjon - to nye fritidsboliger - Skjæringa 8 - gbnr. 307/5
16.04.2025 Klage på vedtak - søknad om dispensasjon fra plankrav - 2 nye fritidsboliger - Skjæringa 8 - gbnr. 307/5