NewConstruction Ferdigattest Fritidsbolig

Ny fritidsbolig med hems i Skjerkevegen 291

📍 Skjerkevegen 291 , 4737 HORNNES

Nøkkelinfo

Sakstype
Nybygg
Bygningstype
Fritidsbolig
Bruksareal
120 m²
Boenheter
1
Kommune
Evje og Hornnes
Fylke
Agder
Gnr / Bnr
9 / 31
Saksnummer
2025/331
Fase
Ferdigattest

Om byggesaken

Ny fritidsbolig på 120,5 m² BRA fordelt på to etasjer med saltak og tradisjonell trekonstruksjon med liggende kledning. Bygget står på pilarer på fjell og har sort shingeltak. Første etasje inneholder stue/kjøkken, tre soverom, vaskerom, gang og bod, mens andre etasje har et hemsrom på 35,3 m². Fasadene er i tre med flere vinduer og dører, og det er pipe og terrasse mot sør. Bygget har en BYA på 71,7 m² og er plassert i henhold til godkjent situasjonsplan og stikningsplan. Det er ikke innlagt vann i bygget.

Produkter og materialer

Terrasse Terrasse mot sør

🧱 Tre

Antall: 1

Terrasse på fasade mot sør

Utendørs terrasse i tre på sørfasade

Tømrer Trekonstruksjon

🧱 Tre

Tradisjonell trekonstruksjon for vegger og tak

Tømrerarbeid med trekonstruksjon for hele bygget

Dører Ytterdører og terrassedører

Antall: 5

Dører på flere fasader, inkludert terrassedør mot sør

Ytterdører og terrassedører i tre eller tilsvarende materiale

Tak Saltak med shingel

🧱 Sort shingel

Saltak med 30 graders takvinkel, taktekke i sort shingel

Taktekking med sort shingel på saltak

Grunnarbeid Fundamentering på pilarer

Bygget fundamentert på pilarer stående på fjell

Grunnarbeid med pilarfundament på fjell

Trapper Innvendig trapp til hems

Antall: 1

Innvendig trapp mellom 1. og 2. etasje (hems)

Trapp for adkomst til hemsrom i 2. etasje

Fasade Liggende trekledning

🧱 Tre

Liggende panel på alle fasader

Ytterkledning i liggende trepanel på hele bygget

Vinduer Åpningsbare og faste vinduer

Antall: 12

Flere vinduer fordelt på fasader, inkludert 5 på sørfasade

Vinduer i tre eller tilsvarende, både faste og åpningsbare

Pipe Pipe og ildsted

Antall: 1

Pipe og ildsted inkludert, med krav til feierstigetrinn

Pipe og ildsted for oppvarming, med montert feierstigetrinn

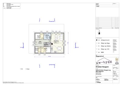
Plantegning

Hovedbygg 120.5 m²

Etasje 1 120.5 m²

Rom Areal Vinduer Dører
Stue/Kjøkken 101 28.6 m² 2 2
Soverom 102 6.7 m² 1 1
Soverom 103 3.8 m² 1 1
Soverom 104 5.7 m² 1 1
Vaskerom 105 4.7 m² 0 1
Gang 106 9.2 m² 0 3
Bod 107 3.0 m² 0 1

Enebolig 50.8 m²

Etasje 2 50.8 m²

Rom Areal Vinduer Dører
Hemsrom Hemsrom 35.3 m² 1 1

Fasader

Hytte Kristian Haugom og Marit Bjærum

Sør
Materiale
Tre
Taktype
Saltak
Vinduer
5
Dører
1
Balkonger
1
Synlige etasjer
2
Vest
Materiale
Tre
Taktype
Saltak
Vinduer
2
Dører
1
Balkonger
1
Synlige etasjer
2
Øst
Materiale
Tre
Taktype
Saltak
Vinduer
2
Dører
0
Balkonger
1
Synlige etasjer
2
Nord
Materiale
Tre
Taktype
Saltak
Vinduer
2
Dører
0
Synlige etasjer
2

Hendelser

15.04.2026 Ferdigattest for oppføring av fritidsbolig - Eiendom 9/31 - Skjerkevegen 291
09.04.2026 E-post fra Landmåler Sør - 9/31. Mur
08.04.2026 Søknad om ferdigattest 9/31
19.06.2025 Tillatelse til oppføring av fritidsbolig, eiendom 9/31, Skjerkevegen
22.05.2025 Bekreftelse på mottatt søknad , Skjerkevegen - Eiendom 9/31 - Nytt bygg - boligformål
22.05.2025 Søknad om oppføring av fritidsbolig - Eiendom 9/31 - Ingen adresse finnes