Rendering
Tegning med to perspektivvisninger av en hytte, inkludert detaljer som tak, vinduer og veranda.
1 / 21
NewConstruction
Unknown
Fritidsbolig
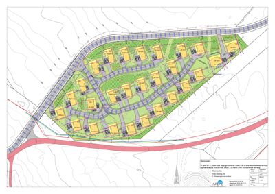
Oppføring av 27 nye fritidsboliger
📍 Strandevegen 55 , 2634 FÅVANG
Nøkkelinfo
- Sakstype
- Nybygg
- Bygningstype
- Fritidsbolig
- Kommune
- Ringebu
- Fylke
- Innlandet
- Gnr / Bnr
- 112 / 1
- Saksnummer
- 2022/1264
- Fase
- Unknown
Om byggesaken
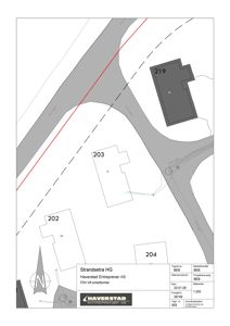
Saken gjelder søknad om tillatelse i ett trinn for oppføring av 27 nye fritidsboliger på Hestknappen 2A, samt vedtak om midlertidig brukstillatelse og ferdigmelding av vann- og avløpsanlegg.
Fasader
Enebolig
Nord
- Materiale
- Tre
- Taktype
- Saltak
- Takmat.
- Sedum
- Høyde
- 6.5 m
- Mønehøyde
- 8.2 m
- Vinduer
- 5
- Dører
- 1
- Synlige etasjer
- 2
Sør
- Materiale
- Tre
- Taktype
- Saltak
- Takmat.
- Sedum
- Høyde
- 6.5 m
- Mønehøyde
- 8.2 m
- Vinduer
- 4
- Dører
- 1
- Synlige etasjer
- 2
Øst
- Materiale
- Tre
- Taktype
- Saltak
- Takmat.
- Sedum
- Høyde
- 6.5 m
- Mønehøyde
- 8.2 m
- Vinduer
- 3
- Dører
- 1
- Synlige etasjer
- 2
Vest
- Materiale
- Tre
- Taktype
- Saltak
- Takmat.
- Sedum
- Høyde
- 6.5 m
- Mønehøyde
- 8.2 m
- Vinduer
- 4
- Dører
- 1
- Synlige etasjer
- 2
Hendelser
15.04.2026
112/107/0/3 (112/1) Midlertidig brukstillatelse - Hestknappen 16
15.04.2026
112/107/0/5 Midlertidig brukstillatelse - Hestknappen 14C
09.04.2026
112/107 Søknad om midlertidig brukstillatelse
09.04.2026
112/107 Søknad om midlertidig brukstillatelse
02.03.2026
112/107/0/5 - Ferdigmelding av arbeid på vann- og avløpsanlegg
21.01.2026
112/107 Ferdigmelding av arbeid på vann- og eller avløpsanlegg
30.06.2025
112/107 Supplering av søknad
25.06.2025
112/107 Spørsmål vedrørende Strandsetra Hyttegrend
23.04.2024
Midlertidig brukstillatelse - 112/1 - Hestknappen 2A - Nybygg-27 nye fritidsboliger
18.04.2024
112/107 Søknad om midlertidig brukstillatelse
22.03.2024
Midlertidig brukstillatelse - 112/1 - Hestknappen 2A - Nybygg-27 nye fritidsboliger
18.03.2024
112/107 Søknad om midlertidig brukstillatelse
20.04.2023
112/107 Merknad i midlertidig brukstillatelse
11.04.2023
112/1 Midlertidig brukstillatelse - Hestknappen 2A - Nybygg-27 nye fritidsboliger
03.04.2023
112/1 Forespørsel status på søknad om midlertidig brukstillatelse
31.03.2023
112/107 Søknad om midlertidig brukstillatelse
06.05.2022
Vedtak 112/1 - Hestknappen 2A - Nybygg-27 nye fritidsboliger
29.04.2022
112/1 - Hestknappen 2A - Nybygg-27 nye fritidsboliger - Tilknytningstillatelse
25.04.2022
112/1 Supplering av søknad - Hestknappen 2A
25.03.2022
112/1 Søknad om tillatelse i ett trinn