NewConstruction Soeknad Fritidsbolig

To fritidsboliger og badstue i Hundeidvik

Nøkkelinfo

Sakstype
Nybygg
Bygningstype
Fritidsbolig
Bruksareal
71 m²
Boenheter
2
Kommune
Sykkylven
Fylke
Møre og Romsdal
Gnr / Bnr
54 / 21
Saksnummer
2026/961
Fase
Søknad

Om byggesaken

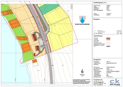
Prosjektet omfatter oppføring av to frittliggende fritidsboliger med tilhørende utearealer og parkeringsplasser, samt en mindre badstue på ca. 9 m². Bygningene er planlagt i ett plan, tilpasset terrengets topografi med lav gesimshøyde på ca. 3,06 meter, og fundamentert på peler for å minimere terrenginngrep. Tomten er skrånende, og det vil bli utført terrengbearbeiding med fyllingshøyder opptil 1,6 meter for å etablere adkomst og parkeringsareal. Bebyggelsen har en enkel, avdempet utforming med smale bygningskropper. Vannforsyning tilkobles eksisterende privat vannverk, og avløp håndteres via privat avløpsanlegg med slamavskiller. Overvann håndteres lokalt med infiltrasjon og fordrøyning. Prosjektet er i tråd med gjeldende reguleringsplan og TEK17-krav.

Produkter og materialer

Fasade Ytterkledning

Enkel og avdempet utforming med smal bygningskropp, tilpasset terreng og omgivelser

Ytterkledning tilpasset fritidsboligene og badstuen

Elektro Elektrisk installasjon

Elektriske installasjoner ikke detaljert, men nødvendig for boligformål

Elektrisk anlegg for fritidsboliger og badstue

Parkering Parkeringsplasser

Antall: 2

To parkeringsplasser på egen grunn, med adkomst fra intern vei

Parkeringsplasser for hver fritidsbolig

Terrasse Utearealer

Utearealer tilknyttet fritidsboliger, tilpasset terreng og solforhold

Terrasser og uteplasser rundt fritidsboligene

VVS Sanitærinstallasjoner

Sanitærinstallasjoner med tilhørende rørsystemer innvendig, byggesett på fabrikk

Sanitærutstyr og installasjoner for fritidsboliger og badstue

Tak Saltak

Tak med lav gesimshøyde, tilpasset terreng og bygningens volum

Taktekking for fritidsboliger og badstue

Dører Ytterdører

Ytterdører til fritidsboliger og badstue, detaljer ikke spesifisert

Ytterdører for alle bygg

Vinduer Fasadevindu

Vinduer tilpasset lav gesimshøyde og terreng, detaljer ikke spesifisert

Vinduer for fritidsboliger og badstue

Grunnarbeid Terrengbearbeiding og oppfylling

Fyllingshøyder opptil ca. 1,6 meter for parkeringsplass og adkomst, tilpasset skrånende terreng

Graving, oppfylling, planering og komprimering for å etablere byggenivå, adkomst og parkeringsareal

Betong Pelefundamentering

🧱 Betongpeler

Pelefundamentering for fritidsboliger for å redusere terrenginngrep

Fundamentering av bygg på peler tilpasset skrånende terreng

VVS Vannforsyning

Antall: 1

Tilknytning til eksisterende privat vannverk i området

Vannforsyning til fritidsboligene

Tømrer Badstue

Antall: 1

Badstue på ca. 9 m², underordnet hovedbebyggelsen

Oppføring av mindre badstue i tilknytning til fritidsboligene

Gulv Innvendige gulv

Detaljer ikke spesifisert, men nødvendig for boligstandard

Innvendige gulv i fritidsboliger og badstue

VVS Avløpssystem med slamavskiller

Antall: 1

Ny slamavskiller med tilstrekkelig kapasitet, tilknytning til eksisterende utslippsledning

Avløpsløsning for fritidsboligene, søkes i parallell prosess

Tømrer Byggesett fritidsboliger

Antall: 2

Byggesett for to fritidsboliger, inkludert våtrom og luftethet, bygges på fabrikk

Komplett tømrerarbeid for to fritidsboliger, innvendig og utvendig

Hendelser

21.04.2026 54/21 - Svar på motteken søknad
20.04.2026 54/21 - Søknad om løyve i eitt trinn