Facade
Fasadetegning som viser oppriss av flere hytter sett fra vest, med angitte høyder og terrengforhold.
1 / 12
NewConstruction
UnderBehandling
Fritidsbolig
Ny hytte med saltak i Torkildstad 21, Råde
📍 Torkildstad 23 , 1643 RÅDE
Nøkkelinfo
- Sakstype
- Nybygg
- Bygningstype
- Fritidsbolig
- Bruksareal
- 90 m²
- Boenheter
- 1
- Kommune
- Råde
- Fylke
- Østfold
- Gnr / Bnr
- 33 / 80
- Saksnummer
- 2026/6176
- Fase
- Under behandling
Om byggesaken
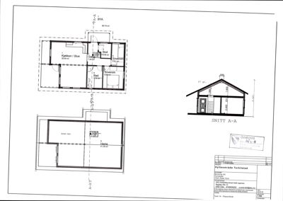
Ny fritidsbolig (hytte) på tomt 14 i Torkildstad hytteområde med et bruksareal på 73 m² og bebygd areal på 89,7 m². Hytta har saltak med teglstein, trekledning og flere vinduer og dører fordelt på en etasje. Bygget inneholder kjøkken/stue, gang, bod, to soverom, bad og hems. Det er pipe på hytta, og terrengjusteringer er utført i henhold til godkjente tegninger. Vann kan ikke legges inn før utslippsanlegget er ferdigstilt. Prosjektet er i ferd med å ferdigstilles med resterende arbeider under ansvarsrett.
Produkter og materialer
Pipe
Vedovn pipe
Antall: 1
Pipe til vedovn i hytta
Fasade
Trekledning
🧱 Tre
Trekledning på alle fasader
Trekledning som ytterkledning på hytta
Kjøkken
Kjøkkeninnredning
Antall: 1
Kjøkkeninnredning i kjøkken/stue
Gulv
Innvendig gulv
Innvendige gulv i hytta
Grunnarbeid
Terrengjustering
Endret høyde på terreng i henhold til revisjoner B og C
Terrengjustering rundt hytta
Tak
Saltak med teglstein
🧱 Teglstein
Saltak med teglstein som takmateriale
Saltak med teglstein som takdekke
Dører
Ytterdør
Antall: 1
Ytterdør til hytta
Bad
Bad med våtromsmembran
Antall: 1
Bad med membran og sanitærutstyr
Tømrer
Innvendige vegger og himling
🧱 Tre
Innvendige konstruksjoner i tre
VVS
Utslippsanlegg
Utslippsanlegg må være ferdigstilt før vann kan legges inn
Avløps- og utslippsanlegg for hytta
Vinduer
Fasadevindu
Antall: 4
Fasadevindu på hytta, antall 4 på flere fasader
Plantegning
Enebolig 132.5 m²
Etasje 1 89.7 m²
| Rom | Areal | Vinduer | Dører |
|---|---|---|---|
| Kjøkken / Stue 1 | 30.1 m² | 2 | 2 |
| Gang 2 | 7.0 m² | 0 | 2 |
| Bod 3 | 8.7 m² | 1 | 1 |
| Soverom 4 | 5.8 m² | 1 | 1 |
| Soverom 5 | 9.7 m² | 1 | 1 |
| Bad 6 | 7.2 m² | 0 | 1 |
Etasje 0 21.4 m²
| Rom | Areal | Vinduer | Dører |
|---|---|---|---|
| Hems 8 | 21.4 m² | 0 | 0 |
Etasje 2 21.4 m²
| Rom | Areal | Vinduer | Dører |
|---|---|---|---|
| Hems 8 | 21.4 m² | 0 | 0 |
Fasader
Enebolig
Sør - Øst
- Materiale
- Tre
- Taktype
- Saltak
- Takmat.
- Tegl
- Vinduer
- 2
- Dører
- 0
- Synlige etasjer
- 1
Sør - Vest
- Materiale
- Tre
- Taktype
- Saltak
- Takmat.
- Tegl
- Vinduer
- 3
- Dører
- 1
- Synlige etasjer
- 1
Nord - Vest
- Materiale
- Tre
- Taktype
- Saltak
- Takmat.
- Tegl
- Vinduer
- 4
- Dører
- 0
- Synlige etasjer
- 1
Nord - Øst
- Materiale
- Tre
- Taktype
- Saltak
- Takmat.
- Tegl
- Vinduer
- 4
- Dører
- 1
- Synlige etasjer
- 1
Hytte
Sør
- Materiale
- Tre
- Taktype
- Saltak
- Takmat.
- Tegl
- Høyde
- 7.6 m
- Mønehøyde
- 4.2 m
- Vinduer
- 4
- Dører
- 1
- Synlige etasjer
- 1
Vest
- Materiale
- Tre
- Taktype
- Saltak
- Høyde
- 6.5 m
- Mønehøyde
- 8.2 m
- Vinduer
- 4
- Dører
- 1
- Synlige etasjer
- 2
Hytte C
Nord-Øst
- Materiale
- Tre
- Taktype
- Saltak
- Takmat.
- Tegl
- Vinduer
- 4
- Dører
- 1
- Synlige etasjer
- 1
Nord-Vest
- Materiale
- Tre
- Taktype
- Saltak
- Takmat.
- Tegl
- Vinduer
- 4
- Dører
- 0
- Synlige etasjer
- 2
Sør-Vest
- Materiale
- Tre
- Taktype
- Saltak
- Takmat.
- Tegl
- Vinduer
- 4
- Dører
- 1
- Synlige etasjer
- 1
Sør-Øst
- Materiale
- Tre
- Taktype
- Saltak
- Takmat.
- Tegl
- Vinduer
- 2
- Dører
- 0
- Synlige etasjer
- 1
Hytte 1
Øst
- Materiale
- Tre
- Taktype
- Saltak
- Vinduer
- 3
- Dører
- 1
- Synlige etasjer
- 1
Sør
- Materiale
- Tre
- Taktype
- Saltak
- Vinduer
- 3
- Dører
- 1
- Synlige etasjer
- 1
Hytte 4
Øst
- Materiale
- Tre
- Taktype
- Saltak
- Vinduer
- 3
- Dører
- 1
- Synlige etasjer
- 1
Hytte 5
Øst
- Materiale
- Tre
- Taktype
- Saltak
- Vinduer
- 3
- Dører
- 1
- Synlige etasjer
- 1
Hytte 8
Vest
- Materiale
- Tre
- Taktype
- Saltak
- Vinduer
- 2
- Dører
- 1
- Synlige etasjer
- 1
Hytte 9
Vest
- Materiale
- Tre
- Taktype
- Saltak
- Vinduer
- 2
- Dører
- 1
- Synlige etasjer
- 1
Hytte 10
Vest
- Materiale
- Tre
- Taktype
- Saltak
- Vinduer
- 2
- Dører
- 1
- Synlige etasjer
- 1
Hytte 16
Sør
- Materiale
- Tre
- Taktype
- Saltak
- Vinduer
- 3
- Dører
- 1
- Synlige etasjer
- 1
Hendelser
15.04.2026
Re: Angående areal Torkildstad 21
15.04.2026
SV: Angående areal Torkildstad 21
20.03.2026
Angående areal Torkildstad 21