NewConstruction Rammetillatelse Fritidsbolig

Ny fritidsbolig med tomteopparbeidelse på Tripperåsen 14

📍 Tripperåsen 14 , 4460 MOI

Nøkkelinfo

Sakstype
Nybygg
Bygningstype
Fritidsbolig
Bruksareal
172 m²
Boenheter
1
Kommune
Lund
Fylke
Rogaland
Gnr / Bnr
13 / 70
Saksnummer
2025/1509
Fase
Rammetillatelse

Om byggesaken

Ny fritidsbolig i to etasjer med totalt bruttoareal på ca. 172 m² og bebygd areal på 95,4 m² oppføres på Tripperåsen 14, Lund kommune. Bygget har saltak og flatt tak, og fasaden er i tre. Boligen inneholder flere soverom, to bad, stue/kjøkken, boder og entre. Det er én trapp innvendig og flere vinduer og dører fordelt på begge etasjer. Bygget har pipe og balkonger på flere fasader. Tomteopparbeidelse og tilknytning til privat vann- og avløpsanlegg inngår i prosjektet. Tiltaket er prosjektert med radonsperre, mekanisk ventilasjon, og tilpasset terrenget med hensyn til sol- og skyggesituasjon. Bygget er planlagt i henhold til gjeldende reguleringsplan og byggteknisk forskrift.

Produkter og materialer

Tak Saltak og flatt tak

🧱 Tre og taktekking

Saltak på hoveddel, flatt tak på del av bygget, taktekking utført av LISTER BLIKK AS

Tak med saltak og flatt tak, inkludert taktekking og pipe

Maling Utvendig og innvendig maling

Maling av trepanel utvendig og innvendige overflater, ikke detaljert i dokumentene

Maling og overflatebehandling av fasade og innvendige flater

Dører Ytterdører og innvendige dører

🧱 Tre

Antall: 15

Ytterdører og innvendige dører i tre, inkludert rømningsdører og dører til boder og bad

Ventilasjon Mekanisk avtrekksventilasjon

Mekanisk ventilasjon for våtrom og toalett, supplert med ventiler og vinduslufting

Ventilasjonssystem for å sikre luftkvalitet og fuktstyring

Vinduer Fasadevindu i tre

🧱 Tre

Antall: 14

Vinduer fordelt på begge etasjer, inkludert fast og åpne vinduer i tre, tilpasset lyskrav og rømningsveier

Fasade Trepanel

🧱 Tre

Trepanel på alle fasader, tilpasset terreng og reguleringsplan

Trepanel som fasademateriale på hele bygget

Gulv Gulvbelegg og parkett

Ikke spesifisert, men vanlig med parkett eller fliser i oppholdsrom og våtrom

Gulvbelegg i oppholdsrom og fliser i bad

Tømrer Tømrerarbeid og montering av trekonstruksjoner

🧱 Tre

Tømrerarbeid utført av selvbygger, inkludert bærende trekonstruksjoner og innvendige vegger

Tømrerarbeid for bygging av trekonstruksjoner og innvendige arbeider

VVS Sanitærinstallasjoner

Sanitærinstallasjoner prosjektert og montert av STENE RØRSERVICE AS, tilknytning til privat vann- og avløpsanlegg

Vann- og avløpsinstallasjoner for bad og kjøkken

Grunnarbeid Tomteopparbeidelse og grunnarbeid

Grunnarbeid med drenerende masser, radonsperre, og terrengtilpasning utført av selvbygger og MYDDIS AS

Grunnarbeid, drenering, radonsperre og tomteopparbeidelse

Bad Baderomsinnredning og fliser

Antall: 2

To bad med sanitærutstyr, fliser og membran, utført av MESTERFLIS SØR AS

Bad med membran, fliser og sanitærutstyr

Pipe Pipe i mur eller stål

Antall: 1

Pipe tilknyttet ovn, utført av MESTERFLIS SØR AS

Pipe for vedovn eller peis

Trapper Innvendig trapp i L-form

Antall: 1

Innvendig trapp mellom 1. og 2. etasje

Betong Plasstøpte betongkonstruksjoner

🧱 Betong

Fundamenter og bærende konstruksjoner i betong, utført av selvbygger

Betongfundamenter og bærende konstruksjoner

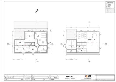
Plantegning

Hytte 204.0 m²

Etasje 1 102.0 m²

Rom Areal Vinduer Dører
Stue 101 12.8 m² 1 1
Sov 102 10.4 m² 1 1
Sov 103 7.2 m² 1 1
Sov 104 7.3 m² 1 1
Bad 105 8.0 m² 0 1
Sov 106 8.2 m² 1 1
Bod 107 3.7 m² 1 1
Entre 108 7.2 m² 0 1
Bod 109 3.1 m² 0 1

Etasje 2 102.0 m²

Rom Areal Vinduer Dører
Stue/kjøkken 201 49.1 m² 3 1
Sov 202 11.7 m² 1 1
Gang 203 3.2 m² 0 1
Bad 204 5.1 m² 0 1
Bod 205 4.1 m² 1 1

Fasader

Hytte

NORD
Materiale
Tre
Taktype
Saltak
Vinduer
3
Dører
1
Balkonger
1
Synlige etasjer
2
VEST
Materiale
Tre
Taktype
Flatt tak
Vinduer
2
Dører
0
Synlige etasjer
1
ØST
Materiale
Tre
Taktype
Saltak
Vinduer
5
Dører
1
Balkonger
1
Synlige etasjer
2
SØR
Materiale
Tre
Taktype
Saltak
Vinduer
4
Dører
0
Balkonger
1
Synlige etasjer
2

Hendelser

17.04.2026 Sv: Plassering, vedtak 25/10029 Tillatelse til tiltak, fritidsbolig, gbnr.13/70
16.12.2025 Tillatelse til tiltak, fritidsbolig, gbnr.13/70, Van Thawng Lei
16.12.2025 Saksbehandlingsgebyr, fritidsbolig.
08.12.2025 Søknad om tillatelse i ett trinn 13/70