NewConstruction UnderBehandling Fritidsbolig

Ny fritidsbolig med dispensasjon i Øvragardsvegen 52/66, Ulvik

Nøkkelinfo

Sakstype
Nybygg
Bygningstype
Fritidsbolig
Bruksareal
72 m²
Boenheter
1
Kommune
Ulvik
Fylke
Vestland
Gnr / Bnr
52 / 66
Saksnummer
2026/491
Fase
Under behandling

Om byggesaken

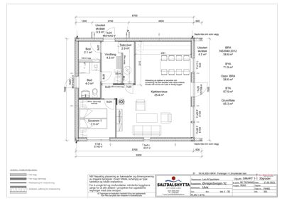
Ny fritidsbolig på 71,9 m² BYA (bruksareal 58,6 m²) med hems og saltak oppføres på eiendom Gnr 52, Bnr 66 i Øvragardsvegen, Ulvik. Bygget har en mønehøyde på 5,29 m og gesimshøyde på 3,08 m, med trepanel som fasademateriale og saltak. Boligen inneholder kjøkken/stue, soverom, bad, bod, teknisk bod og vindfang. Det er én trapp til hemsloftet som har flere hemsrom og isolert tak. Bygget er plassert på en tomt på 2042,6 m² med begrenset terrenginngrep og tilpasset plassering for å redusere bruk av dyrket jord. Det er etablert grunnarbeid, mur, betong, tømrerarbeid, sanitærinstallasjoner og pipe med ildsted. Områdestabilitetsvurdering viser ingen risiko for kvikkleireskred eller flom. Dispensasjon fra jordlova § 9 er innvilget for bruk av fulldyrket jord til tiltaket.

Produkter og materialer

Overflater Innvendige gulv og vegger

🧱 Parkett, fliser, maling

Innvendige overflater tilpasset fritidsboligstandard

Innvendige overflater for oppholdsrom og bad

Isolasjon Takisolasjon

🧱 Mineralull eller tilsvarende

Isolasjon i tak med 225 mm tykkelse

Isolasjon for takkonstruksjon

Vinduer Fasadevindu

🧱 Tre/aluminium

Antall: 6

3 vinduer i stue/kjøkken, 1 i soverom, 1 i bod

Fasadevinduer i tre/aluminium for oppholdsrom og bod

Ventilasjon Mekanisk ventilasjon

Ventilasjon iht. TEK17 krav

Ventilasjonssystem for fritidsbolig

Fasade Trepanel

🧱 Tre

Trepanel som fasademateriale

Utvendig trepanel som fasade

Elektro Elektrisk installasjon

Elektriske installasjoner iht. TEK17

Elektrisk anlegg for fritidsbolig

Vannforsyning Tilknytning til offentlig vannverk

Tilknytning til offentlig vannforsyning

Vannforsyning til fritidsbolig

Dører Ytterdør og innerdører

🧱 Tre

Antall: 7

1 ytterdør, 6 innerdører (bad, soverom, bod, teknisk, hems)

Ytterdør i tre og innerdører til rom og hems

Terrasse Uteareal/terrasse

🧱 Tre eller kompositt

Uteoppholdsareal inkludert i BYA

Terrasse/uteareal tilknyttet fritidsbolig

Trapper Innvendig trapp til hemsloft

🧱 Tre

Antall: 1

Trapp til hemsloft

Innvendig trapp i tre til hemsloft

Avløp Privat avløpsanlegg

Privat avløpsanlegg med vannklosett, uten utslippstillatelse

Avløpsløsning for fritidsbolig

Tak Saltak med taktekking

🧱 Tre, isolasjon, taktekking

Antall: 1

Saltak med isolasjon 225 mm

Saltak med isolert konstruksjon og taktekking

Tømrer Utvendig og innvendig tømrerarbeid

🧱 Tre

Oppføring av hytte med tømrerarbeid

Tømrerarbeid for oppføring av fritidsbolig

Pipe Murpipe med ildsted

🧱 Mur

Antall: 1

Pipe med ildsted montert

Murpipe med tilhørende ildsted

Grunnarbeid Fundamentering og terrengarbeid

🧱 Betong, masser

Grunnarbeid med fundamentering og terrengtilpasning

Fundamentering og terrengarbeid for bygging av fritidsbolig

Betong Mur og betongarbeid

🧱 Betong

Mur og betongarbeid inkludert radonsikring

Mur- og betongarbeid for fundament og radonsikring

VVS Sanitærinstallasjoner

Innvendig sanitæranlegg installert av Stanghelle Rørleggerfirma AS

Sanitærinstallasjoner for bad og teknisk rom

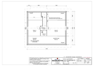
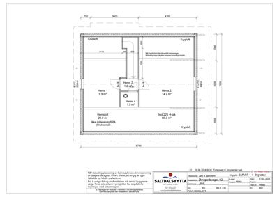
Plantegning

Hemsloft 115.9 m²

Etasje 0 115.9 m²

Rom Areal Vinduer Dører
Kryploft Kryploft 0.0 m² 0 0
Hems 1 Hems 1 9.9 m² 0 1
Hems 2 Hems 2 14.2 m² 0 1
Hems 4 Hems 4 1.5 m² 0 0
Hemsloft Hemsloft 29.0 m² 0 0
Isol.225 H-tak Isol.225 H-tak 65.3 m² 0 0

Enebolig 65.3 m²

Etasje 1 65.3 m²

Rom Areal Vinduer Dører
Kjøkken/stue 101 35.4 m² 3 1
Soverom 1 102 7.5 m² 1 1
Bad 103 4.0 m² 0 1
Bod 104 2.1 m² 1 1
Tekn. bod 105 2.9 m² 0 1
Vindfang 106 4.3 m² 0 1

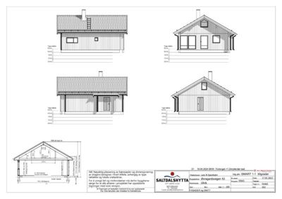
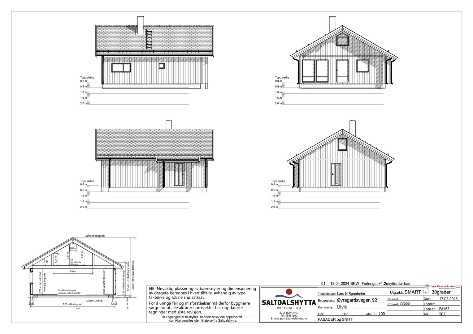
Fasader

Enebolig

Nord
Materiale
Tre
Taktype
Saltak
Høyde
2.3 m
Mønehøyde
5.3 m
Vinduer
2
Dører
0
Synlige etasjer
1
Sør
Materiale
Tre
Taktype
Saltak
Høyde
2.3 m
Mønehøyde
5.3 m
Vinduer
3
Dører
1
Synlige etasjer
1
Vest
Materiale
Tre
Taktype
Saltak
Høyde
2.3 m
Mønehøyde
5.3 m
Vinduer
1
Dører
1
Synlige etasjer
1
Øst
Materiale
Tre
Taktype
Saltak
Høyde
2.3 m
Mønehøyde
5.3 m
Vinduer
1
Dører
1
Synlige etasjer
1

Hendelser

21.04.2026 Supplering av søknad 52/66
23.03.2026 Gbnr 52/66 - Søknad om dispensasjon frå jordlova for oppføring av fritidsbustad
23.03.2026 Innvilga dispensasjon frå jordlova for oppføring av fritidsbustad
06.03.2026 Ber om vurdering av grunnforhold i forhold til søknad om tiltak
27.02.2026 Gbnr 52/66 - Søknad om dispensasjon frå jordlova for oppføring av fritidsbustad
20.02.2026 Supplering til søknad om oppføring av fritidsbustad - 52/66
20.02.2026 Søknad om dispensasjon fra jordlova, gbnr. 52/66
20.02.2026 Søknad om tiltak krev søknad om dispensasjon etter jordlova § 9
10.02.2026 Søknad om tillatelse i ett trinn 52/66