NewConstruction Soeknad Fritidsbolig

Ny fritidsbolig på Utsynvegen 33, Straumgjerde

📍 Utsynvegen 33 , 6220 STRAUMGJERDE

Nøkkelinfo

Sakstype
Nybygg
Bygningstype
Fritidsbolig
Bruksareal
141 m²
Boenheter
1
Kommune
Sykkylven
Fylke
Møre og Romsdal
Gnr / Bnr
29 / 269
Saksnummer
2026/828
Fase
Søknad

Om byggesaken

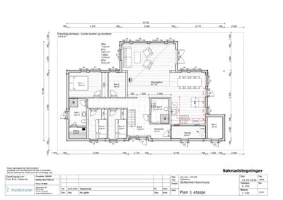
Ny frittstående fritidsbolig på 141,2 m² BRA med saltak og tradisjonell bindingsverkskonstruksjon oppført på støpt betongplate. Boligen har to etasjer inkludert hems, med totalt 119,2 m² sov-, bad-, bod- og oppholdsareal. Utvendig kledning er liggende mørkbeiset tre, og taket er tekket med sort shingel. Vinduer med 3-lags energiglass og trekarmer gir god isolasjon. Innvendig er det panel i tre, og oppvarming skjer med rentbrennende stålkonveksjonsovn og elektrisitet. Bygget er tilpasset terrenget med god terrengtilpasning og overvannshåndtering via infiltrasjon, fordrøyning og avledning. Det er planlagt 2 biloppstillingsplasser på tomten.

Produkter og materialer

Fasade Liggende kledning

🧱 Tre, mørkbeiset

Liggende mørkbeiset trepanel, lokal/kortreist opprinnelse

Utvendig kledning i tre for fasader

Dører Ytterdører

🧱 Tre

Antall: 3

Ytterdører i tre til inngang og utgang

Bad Våtromsarbeider

Flis- og membranarbeider på bad

Våtromsarbeider i bad og badstue

Maling Beis/maling utvendig

🧱 Beis

Mørkbeiset utvendig kledning

Overflatebehandling av utvendig trepanel

Pipe Montering av pipe/ildsted

🧱 Stål

Antall: 1

Pipe og ildsted for rentbrennende stålkonveksjonsovn

Elektro Ventilasjon og avtrekk

Ventilatorrør og EL-vifter i bjelkelag og gavl

Ventilasjonsanlegg for bolig

Grunnarbeid Støpt betongplate

🧱 Betong

Støpt betongplate som fundament

Fundament og grunnmur for fritidsbolig

VVS Utvendig VA / Stikkledninger

Knyttet til felles privat VA-anlegg

Vann- og avløpsledninger tilkoblet privat anlegg

Tak Saltak med shingel

🧱 Sort shingel

Saltak tekket med sort shingel

Taktekking for fritidsbolig

Grunnarbeid Terrengtilpasning og landskapsutforming

Skånsom plassering i terreng med tilbakeføring av lokal vegetasjon

Terrengarbeider og landskapsutforming rundt bygget

Parkering Biloppstillingsplasser

Antall: 2

To biloppstillingsplasser på tomten

Vinduer Fasadevindu med trekarmer

🧱 Tre, 3-lags energiglass

Antall: 14

Vinduer med horisontal inndeling, 3-lags energiglass

Isolerte vinduer for fasade og hems

Gulv Innvendige gulv

Innvendige gulv i hytta

VVS Innvendig sanitæranlegg

Sanitæranlegg for bad og tekniske rom

Betong Fundamenter inkl. radontiltak

🧱 Betong

Fundamenter med radonsperre

Fundamentering med radonsikring

Terrasse Fremtidig terrasse

Terrasse leveres og monteres av kunde

Planlagt terrasse på fritidsboligen

Tømrer Bindingsverk

🧱 Tre

Prefabrikkert reisverk produsert nær byggeplass

Konstruksjon av bindingsverk for vegger og tak

Fasader

Enebolig

Nordvest
Materiale
Tre
Taktype
Saltak
Vinduer
2
Dører
3
Synlige etasjer
1

Hendelser

13.04.2026 29/269 - Svar på motteken søknad
10.04.2026 29/269 - Søknad om løyve i eitt trinn