NewConstruction UnderBehandling Fritidsbolig

Ny fritidsbolig med garasje på Varden 282, Ringebu

📍 Varden 282 , 2634 FÅVANG

Nøkkelinfo

Sakstype
Nybygg
Bygningstype
Fritidsbolig
Bruksareal
183 m²
Boenheter
1
Kommune
Ringebu
Fylke
Innlandet
Gnr / Bnr
107 / 62
Saksnummer
2021/1928
Fase
Under behandling

Om byggesaken

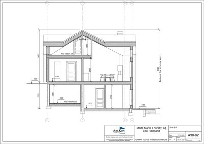
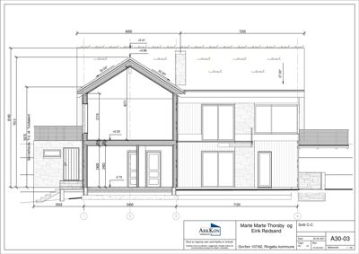
Ny fritidsbolig med et samlet bruksareal på 147,3 m² og en tilhørende garasje på 35,9 m² oppføres på eiendommen Varden 282 i Ringebu kommune. Fritidsboligen har terrassearealer som er tilpasset reguleringsplanens krav, og bygget er fundamentert med støpte fundamenter og trekonstruksjoner. Garasjen er frittstående med saltak og flatt tak, utført i tre, med garasjeport og dør. Bygget er tilknyttet offentlig vann- og avløpsnett, og det foreligger godkjente situasjonsplaner, snitt- og fasadetegninger. Prosjektet er gjennomført med ansvarlige foretak for prosjektering, utførelse og kontroll, og det er gitt midlertidig brukstillatelse for fritidsboligen, mens garasjen gjenstår å ferdigstille.

Produkter og materialer

Rekkverk Terrasserekkverk

Rekkverk på terrasse iht. reguleringsplan og kommunens veileder

Rekkverk for terrasse på fritidsbolig

VVS Sanitærinstallasjoner

Vann- og avløpsinstallasjoner tilknyttet offentlig nett, inkl. sanitærabonnement

VVS-installasjoner for fritidsbolig og garasje

Garasjeport Garasjeport i tre

🧱 Tre

Antall: 1

Garasjeport iht. fasadetegninger med saltak og flatt tak

Garasjeport til frittstående garasje

Tømrer Trekonstruksjoner

🧱 Tre

Montering av trekonstruksjoner for bolig og garasje

Tømrerarbeid med montering av trekonstruksjoner

Elektro Elektriske installasjoner

Elektriske installasjoner iht. prosjektering og ansvarserklæringer

Elektroinstallasjoner i bolig og garasje

Grunnarbeid Graving og fundamentering

Graving, utgraving av byggegruve, fundamentering iht. erklæringer

Grunnarbeid med graving og fundamentering

Betong Fundament og støping

Støping av fundamenter for fritidsbolig og garasje

Betongfundamenter og støpearbeider

Tak Saltak og flatt tak

Saltak på fritidsbolig og garasje, flatt tak på deler av garasje

Taktekking med saltak og flatt tak på garasje

Dører Ytterdører og garasjeport

🧱 Tre

Ytterdør i garasje og dør til bolig, garasjeport iht tegninger

Ytterdører og garasjeport i tre

Gulv Innvendige gulv

Innvendige gulv i fritidsbolig, type ikke spesifisert

Gulvbelegg og overflater i fritidsbolig

Terrasse Terrasse i tre og steinlagt platting

🧱 Tre og stein

Terrasse på inntil 21,3 m², steinlagt platting på planert terreng, i henhold til reguleringsplan og veileder

Utendørs terrasse og platting rundt fritidsbolig

Vinduer Fasadevindu

🧱 Tre/Aluminium

Vinduer i fritidsbolig, antall og type iht tegninger

Vinduer til fritidsbolig iht. tegninger

Fasade Trepanel

🧱 Tre

Fasader i tre, med saltak og flatt tak på garasje

Utvendig kledning i tre på fritidsbolig og garasje

Fasader

Garasje

Øst
Materiale
Tre
Taktype
Flatt tak
Vinduer
0
Dører
0
Synlige etasjer
1
Nord
Materiale
Tre
Taktype
Saltak
Vinduer
0
Dører
1
Synlige etasjer
1
Sør
Materiale
Tre
Taktype
Saltak
Vinduer
0
Dører
0
Synlige etasjer
1
Vest
Materiale
Tre
Taktype
Flatt tak
Vinduer
1
Dører
1
Synlige etasjer
1

Hendelser

14.04.2026 107/62, 107/61, 107/63 Svar på henvendelse vedrørende søknad om ferdigattest
30.03.2026 Spørsmål Ferdigattest for gnr/bnr 107/62 (Varden 282) og gnr/bnr 107/61 (Varden 284) gnr/bnr 107/63 Varden 280
18.08.2022 Midlertidig brukstillatelse - 107/62 - Varden 282 - Nytt bygg, fritidsbolig/garasje
04.08.2022 107/62 Søknad om midlertidig brukstillatelse
12.10.2021 Vedtak 107/62 - Varden 282 - Nytt bygg, fritidsbolig/garasje
08.10.2021 107/62 Angående tilsyn med kvalifikasjoner, ansvarsrett
07.10.2021 Byggesak Gnr.Bnr. 107/62 og 107/63- Tilsyn
05.10.2021 Kundlistuen AS- Byggesak Gnr.Bnr. 107/62 og 107/63- Tilsyn
26.08.2021 107/62 - Varden 282 - Nytt bygg, fritidsbolig/garasje - Tilknytningstillatelse
23.08.2021 107/62- Arkkon AS- Søknad etter unntaksregel
20.08.2021 107/62- Behov for avklaringer-Terreng
20.08.2021 107/62 Søknad om sanitærabonnement/situasjonsplan
18.08.2021 107/62- Behov for avklaringer
10.08.2021 107/62- ARKKON AS- Søknad etter unntaksregel
10.08.2021 107/62 - Etterspørsel etter søknad om tilknytning til offentlig ledningsnett tilhørende byggesak for Varden 282
03.08.2021 107/62- Behov for avklaringer
29.07.2021 Varden 282 Søknad om tillatelse i ett trinn