NewConstruction Soeknad Fritidsbolig

Ny fritidsbolig med terrasse på Veg 1326 60, Fåvang

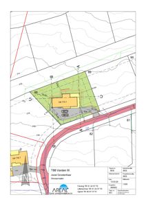
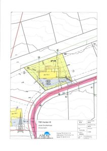
📍 Veg 1326 17 , 2634 FÅVANG

Nøkkelinfo

Sakstype
Nybygg
Bygningstype
Fritidsbolig
Bruksareal
170 m²
Boenheter
1
Kommune
Ringebu
Fylke
Innlandet
Gnr / Bnr
109 / 56
Saksnummer
2026/2661
Fase
Søknad

Om byggesaken

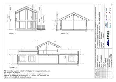
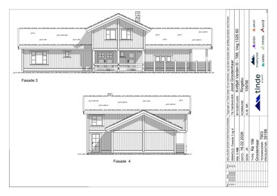
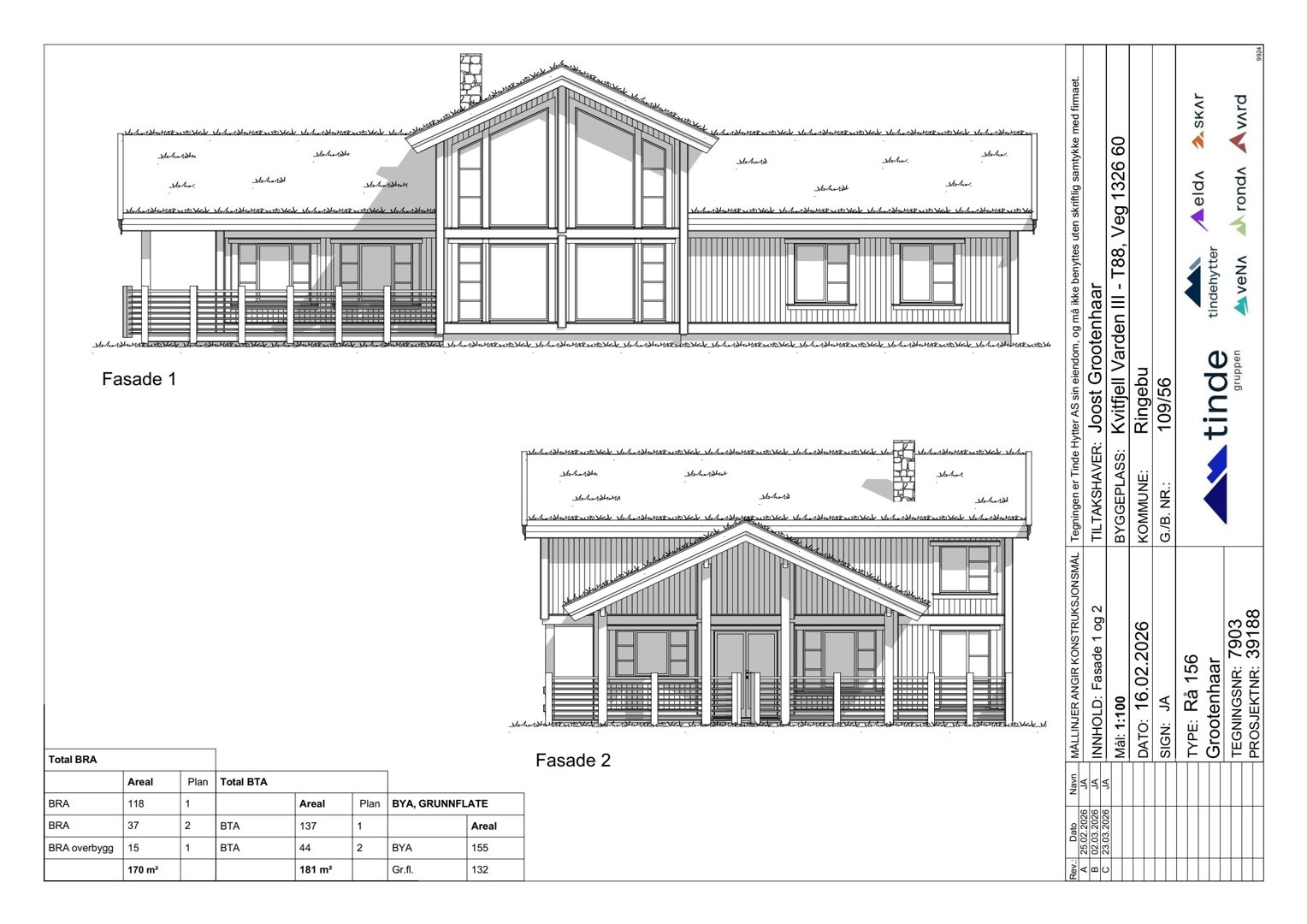
Ny fritidsbolig på ett plan med oppstue-del, oppført i bindingsverk og kledd med trepanel. Bygget har saltak med 25 graders takvinkel og torvtak, samt en terrasse på 28 m² med trerekkverk på tre sider. Fasadevinduer består av en kombinasjon av smårutede og større glassarealer med sprosser, og strekker seg opp til mønet på en gavl. Byggets totale bruksareal er 170 m², hvorav 155 m² er oppvarmet. Bygget har pipe og er prosjektert med energieffektive løsninger, inkludert elektrisk oppvarming, vedfyring og mulighet for varmepumpe. Overvann håndteres med infiltrasjonsgrøfter og torvtak. Bygget plasseres med hovedmøneretning parallelt med terreng og har tilknytning til offentlig vann og avløp.

Produkter og materialer

Elektro Elektrisk oppvarming og installasjoner

Elektrisk oppvarming som del av energiløsning

Elektriske installasjoner og oppvarming

Dører Ytterdør

Antall: 1

Ytterdør til fritidsboligen

Pipe Pipe med feieplattform

Antall: 1

Pipe med feieplattform over 1,2 m høyde

Ildsted og pipe for vedfyring

Grunnarbeid Terrengarbeid og VA-ledninger

Grunn- og terrengarbeid, stikkledning VA, overvannshåndtering med infiltrasjonsgrøfter

Terrengtilpasning og vann- og avløpsledninger

Isolasjon Isolasjon i yttervegger, tak og gulv

God isolasjon for lavt energibehov i henhold til TEK17

Isolasjon for energieffektiv bygningskropp

Vinduer Fasadevindu med sprosser

🧱 Tre/Glass

Antall: 6

Kombinasjon av smårutede og større glassarealer med sprosser, strekker seg opp til mønet på gavl

Vinduer med sprosser for redusert inntrykk av størrelse og refleksjon

VVS Sanitærinstallasjoner inkl. bunnledning

Innvendige sanitærinstallasjoner og bunnledning til offentlig vann og avløp

Sanitærinstallasjoner for fritidsboligen

Maling Utvendig maling

Overflater behandlet med holdbar maling som del av Tinde Hytters standard

Maling av utvendige treflater

Annet Overvannshåndtering

Infiltrasjonsgrøfter og fordrøyning via torvtak

Løsning for overvannshåndtering på tomt

Fasade Trepanel

🧱 Tre

Bindingsverk kledd med trepanel, standard Tinde Hytter

Yttervegger i bindingsverk med trepanel som kledning

Terrasse Terrasse med rekkverk i tre

🧱 Tre

Terrasse på mark/platting på tre sider, 28 m², rekkverk i tre

Utendørs terrasse knyttet til bygget med trerekkverk

Ventilasjon Ventilasjonsanlegg inkl. kanalføringer

Ventilasjonsanlegg for boenheten med kanalføringer, levert av FLEXIT AS og Hallum Tak og Blikk AS

Ventilasjonsanlegg for fritidsboligen

Grunnarbeid Fundament og radonsperre

Betongarbeid/fundament inkl. radonsperre

Grunnarbeid med fundamentering og radonsperre

Tømrer Montering trekonstruksjoner

🧱 Tre

Tømrerarbeid og montering av trekonstruksjoner, inkludert våtrom og membran, montering ildsted/pipe

Tømrerarbeid for oppføring av fritidsboligen

Gulv Innvendige gulvflater

Standard gulvflater i hytte, ikke nærmere spesifisert

Innvendige gulvflater i fritidsboligen

Tak Saltak med torvtak

🧱 Torv

Saltak med 25 graders takvinkel, tekket med torv

Tak med saltak konstruksjon og torvtak som taktekking

Fasader

Enebolig

Ukjent
Materiale
Tre
Taktype
Saltak
Vinduer
6
Dører
0
Balkonger
1
Synlige etasjer
2

Hovedbygg

Ukjent
Taktype
Saltak
Høyde
6.0 m
Mønehøyde
7.3 m
Vinduer
6
Dører
1
Balkonger
1
Synlige etasjer
2

Hendelser

20.04.2026 109/56 Tilknytningstillatelse vann og avløp
15.04.2026 109/56 Søknad om tillatelse i ett trinn