NewConstruction UnderBehandling Fritidsbolig

Ny hytte med terrasse på Veslvonlægret, Oppdal

📍 Veslvonlægret

Nøkkelinfo

Sakstype
Nybygg
Bygningstype
Fritidsbolig
Bruksareal
35 m²
Boenheter
1
Kommune
Oppdal
Fylke
Trøndelag - Trööndelage
Gnr / Bnr
356 / 118
Saksnummer
2026/9977
Fase
Under behandling

Om byggesaken

Ny frittstående hytte på 35 m² med saltak og trekledning oppføres på ny tomt ved Veslvonlægret i Knutshø landskapsvernområde. Hytta inneholder stue, soverom, gang, bod og vaskerom, med totalt 3 vinduer og flere dører. Det bygges også en terrasse på 2,75 x 2 meter, lagt på terrenget uten rekkverk, og tilpasset terrenget med tretrapp med 3 trinn. Bygget fundamenteres på leca-mur med grunnmurshøyde opp til 1,25 meter, og trevirket behandles med jernvitriol for naturlig patina. Materialer og farger skal harmonere med naturen, med bruk av treverk og mørke jordfarger. Den gamle hytta skal rives innen ett år etter byggestart.

Produkter og materialer

Terrasse Platting på terreng

🧱 Trevirke behandlet med jernvitriol

Antall: 1

2,75 x 2 meter, uten rekkverk, trukket inn fra hjørnet og flukt med bygningsliv

Terrasse på terreng foran inngangsparti

Dører Ytterdører og innerdører

Antall: 5

Dører til inngang, bod, vaskerom og innvendige dører

Grunnarbeid Graving og terrengtilpasning

Graving ned til fjell for fundamentering, tilbakeføring av masser for terrengtilpasning

Grunnarbeid for fundamentering og terrengtilpasning

Trapper Utendørs trapp i tre

🧱 Trevirke behandlet med jernvitriol

Antall: 1

3 trappetrinn a 23 cm høyde

Utendørs trapp ved inngangsparti

Fasade Trekledning

🧱 Trevirke behandlet med jernvitriol tilsatt kjønrøk

Materialer og farger skal ha samhørighet med naturen, mørke jordfarger, brun eller grå beis

Trekledning til hytte med naturlig patina og tilpasning til landskapet

Vinduer Vanlige vinduer

Antall: 3

Vinduer i stue og soverom

Mur Grunnmur i leca

🧱 Leca-mur

Grunnmurshøyde opp til 1,25 meter over terreng, fundamentert på fjell

Fundamentering av hytte med leca-mur

Tak Saltak

🧱 Tre

Antall: 1

Saltak på hytta

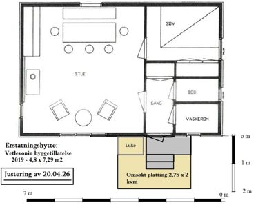
Plantegning

Erstatningshytte 0.0 m²

Etasje 1 0.0 m²

Rom Areal Vinduer Dører
STUE STUE 0.0 m² 0 0
SOV SOV 0.0 m² 0 0
GANG GANG 0.0 m² 0 0
BOD BOD 0.0 m² 0 0
VASKEROM VASKEROM 0.0 m² 0 0

Hytte 35.0 m²

Etasje 1 35.0 m²

Rom Areal Vinduer Dører
Stue 101 24.0 m² 1 1
Sov 102 8.0 m² 1 1
Gang 103 2.0 m² 0 2
Bod 104 2.0 m² 0 1
Vaskerom 105 1.0 m² 0 1

Fasader

Hovedbygg

Øst
Materiale
Tre
Taktype
Saltak
Vinduer
3
Dører
0
Synlige etasjer
1

Hytte

Sør
Materiale
Tre
Taktype
Saltak
Vinduer
3
Dører
1
Synlige etasjer
1
Øst
Materiale
Tre
Taktype
Saltak
Vinduer
3
Dører
0
Synlige etasjer
1
Nord
Materiale
Tre
Taktype
Saltak
Vinduer
1
Dører
0
Synlige etasjer
1
Vest
Materiale
Tre
Taktype
Saltak
Vinduer
1
Dører
0
Synlige etasjer
1

Hendelser

21.04.2026 356/1/118/0 - Tilleggsoppslysninger byggetiltak og ferdigattest for hytta ved Veslvonlægret i Knutshø landskaps-vernområde, festenr 262
21.04.2026 356/1/118/0 - Byggetiltak og ferdigattest for hytta ved Veslvonlægret i Knutshø landskaps-vernområde, festenr 262