VerticalExtension Rammetillatelse Fritidsbolig

Påbygg og tilbygg på fritidsbolig og garasje i Fjordveien 88, Nesodden

📍 Fjordveien 88 , 1459 NESODDEN

Nøkkelinfo

Sakstype
Påbygg
Bygningstype
Fritidsbolig
Bruksareal
128 m²
Boenheter
1
Kommune
Nesodden
Fylke
Akershus
Gnr / Bnr
7 / 26
Saksnummer
2025/2555
Fase
Rammetillatelse

Om byggesaken

Tiltaket omfatter påbygg på eksisterende garasje/uthus med et fotavtrykk på ca. 73,8 m², samt tilbygg til bad (3,1 m²) og vaskerom (4,6 m²) på fritidsboligen. Det bygges også et underbygg i form av utvidelse av kjeller på 2,3 m². Garasjetiltaket er trukket fra søknaden etter kommunens og Statsforvalterens anbefaling. Fasadeendringer på alle sider av fritidsboligen inngår, med materialvalg i tre og saltak på garasje og saltak/flatt tak på fritidsbolig. Tiltaket er tilpasset terrenget og eksisterende bebyggelse, og ligger innenfor reguleringsplanens utnyttelsesgrad og høydebegrensninger. Det er gitt dispensasjon fra byggeforbud i 100-metersbeltet langs sjø og byggegrense mot bekk, med vurdering av at tiltaket ikke vesentlig tilsidesetter hensynene bak bestemmelsene. Eiendommen ligger i LNFR-område og hensynssone for flom, men tiltaket vurderes ikke å øke flomrisiko. Det er ikke registrert kulturminner som berøres. Tiltaket øker bokvaliteten på fritidsboligen uten å medføre ulemper for allmenne interesser.

Produkter og materialer

Vinduer Fasadevindu og kjellervindu

Antall: 9

Nye vinduer i tilbygg bad, vaskerom og underbygg, samt fasadeendringer

Vinduer til nye rom og fasadeendringer

Betong Grunnmur og underbygg

🧱 Betong

Utvidelse av kjeller (underbygg) på 2,3 m² på eksisterende fritidsbolig

Betongarbeid for underbygg og fundament

Maling Innvendig og utvendig maling

Maling av fasader og innvendige flater i påbygg og tilbygg

Overflatebehandling

Dører Ytterdører og kjellerdører

Antall: 5

Nye dører til bad, vaskerom, underbygg og fasadeendringer

Dører til nye rom og fasadeendringer

Fasade Trepanel

🧱 Tre

Fasadeendringer på alle sider av fritidsboligen, tilpasset eksisterende bygg og terreng

Trepanel til fasadeendringer på fritidsbolig

Tak Saltak og flatt tak

🧱 Taktekking ikke spesifisert

Saltak på garasje og deler av fritidsbolig, flatt tak på andre deler av fritidsbolig

Taktekking for påbygg og tilbygg

Tømrer Påbygg og tilbygg konstruksjon

🧱 Tre

Påbygg på eksisterende garasje/uthus, tilbygg bad og vaskerom på fritidsbolig

Tømrerarbeid for påbygg og tilbygg

Isolasjon Bygningsisolasjon

Isolasjon i vegger, tak og gulv i påbygg og tilbygg

Isolasjon for energieffektivitet og komfort

Gulv Innvendige gulv

Gulv i bad, vaskerom og underbygg

Innvendige gulvflater

Elektro Elektrisk installasjon

Elektriske installasjoner i påbygg og tilbygg

Elektroarbeid for nye rom

Grunnarbeid Tomtearbeid og drenering

Drenering og grunnarbeid i forbindelse med underbygg og tilbygg

Grunnarbeid for fundamentering og drenering

VVS Sanitærinstallasjoner

Bad og vaskerom med tilkobling til offentlig vann- og avløpsnett

VVS-installasjoner for bad og vaskerom

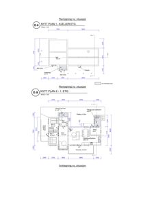
Plantegning

Enebolig 128.0 m²

Etasje 0 20.8 m²

Rom Areal Vinduer Dører
Bod Bod 18.5 m² 1 1
Underbygg Underbygg 2.3 m² 1 0

Etasje 1 107.2 m²

Rom Areal Vinduer Dører
Veranda Veranda 13.9 m² 0 1
Sov 1 Sov 1 10.5 m² 1 1
Sov 2 Sov 2 8.5 m² 1 1
Bad Bad 5.5 m² 0 1
Stue Stue 15.3 m² 1 1
Spisestue/Kjøkken Spisestue/Kjøkken 35.5 m² 0 0
Gang Gang 6.0 m² 0 1
Veranda Veranda 15.3 m² 0 1
Tilbygg nytt bad Tilbygg nytt bad 3.1 m² 0 0
Tilbygg nytt vaskerom Tilbygg nytt vaskerom 4.6 m² 0 0

Garasje 73.8 m²

Etasje 1 73.8 m²

Rom Areal Vinduer Dører
Garasje Garasje 50.0 m² 3 1
Bod 1 Bod 1 6.2 m² 1 1
Bod 2 Bod 2 6.1 m² 1 1
Bod 3 Bod 3 6.2 m² 1 1

Fasader

Enebolig

Nord
Materiale
Tre
Taktype
Saltak
Høyde
4.0 m
Mønehøyde
5.2 m
Vinduer
2
Dører
1
Balkonger
1
Synlige etasjer
2
Øst
Materiale
Tre
Taktype
Flatt tak
Høyde
4.0 m
Mønehøyde
5.2 m
Vinduer
5
Dører
2
Synlige etasjer
2
Sør
Materiale
Tre
Taktype
Saltak
Høyde
4.0 m
Mønehøyde
5.2 m
Vinduer
2
Dører
1
Balkonger
1
Synlige etasjer
2

Garasje

Sydøst
Materiale
Tre
Taktype
Saltak
Høyde
3.7 m
Mønehøyde
4.5 m
Vinduer
5
Dører
1
Synlige etasjer
1

Hendelser

21.04.2026 Dispensasjon og tillatelse i ett-trinn - Eiendom 7/26 - Fjordveien 88 - Endring av bygg - Tilbygg, underbygg og fasadeendring
14.04.2026 Etterspørsel om uttalelse – sak 2025/2555-15
25.03.2026 Uttalelse fra Stasforvalteren - Uttalelse til revidert søknad om dispensasjon for oppføring av tilbygg og underbygg på fritidsbolig - Eiendom 7/26 - Fjordveien 88 - Endring av bygg - påbygg
04.03.2026 Oversendelse for uttalelse - Eiendom 7/26 - Fjordveien 88 - Påbygg eksisterende grunnmur garasje og oppføring av tilbygg
13.02.2026 Supplering av søknad - Eiendom 7/26 - Fjordveien 88 - Endring av bygg - påbygg
29.01.2026 Tilbakemelding og etterspørsel om redegjørelse - Eiendom 7/26 - Fjordveien 88 - Endring av bygg - Tilbygg og fasadeendring
12.01.2026 Supplering av søknad - Eiendom 7/26 - Fjordveien 88 - Endring av bygg - påbygg
31.10.2025 Foreløpig vurdering - Eiendom 7/26 - Fjordveien 88 - Påbygg eksisterende grunnmur garasje, oppføring av tilbygg og fasadeendring
09.10.2025 Uttalelse til søknad om dispensasjon for påbygg til garasje og oppføring av tilbygg - Eiendom 7/26 - Fjordveien 88 - Endring av bygg - påbygg
07.10.2025 Uttalelse til søknad om dispensasjon for oppføring av påbygg og tilbygg - Fjordveien 88 - Gbnr 7/26 - Endring av bygg - påbygg
12.09.2025 Oversendelse for uttalelse - Eiendom 7/26 - Fjordveien 88 - Påbygg eksisterende grunnmur garasje og oppføring av tilbygg
02.09.2025 Supplering av søknad - Eiendom 7/26 - Fjordveien 88 - Endring av bygg - påbygg
14.07.2025 Mangelbrev - Eiendom 7/26 - Fjordveien 88 - Påbygg eksisterende grunnmur garasje og oppføring av tilbygg
27.05.2025 Supplering av søknad - Eiendom 7/26 - Fjordveien 88 - Endring av bygg - påbygg
29.04.2025 Mangelbrev - Eiendom 7/26 - Fjordveien 88 - Påbygg eksisterende grunnmur garasje og oppføring av tilbygg
05.04.2025 Søknad om rammetillatelse - 7/26 - Fjordveien 88 - Endring av bygg - påbygg