Demolition Ferdigattest Fritidsbolig

Riving og gjenoppføring av del av fritidsbolig på Nesseheia 17

📍 Nesseheia 17 , 4770 HØVÅG

Nøkkelinfo

Sakstype
Riving
Bygningstype
Fritidsbolig
Bruksareal
120 m²
Boenheter
1
Kommune
Lillesand
Fylke
Agder
Gnr / Bnr
87 / 32
Saksnummer
2024/3198
Fase
Ferdigattest

Om byggesaken

Del av eksisterende fritidsbolig på 54 m² rives og gjenoppføres på samme plassering med tilsvarende form og volum, men med tykkere vegger for bedre isolasjon og tetthet i henhold til TEK17. Bygget har saltak med teglstein, trekledning og pipe, og består av stue, kjøkken, fire soverom, bad, bod og teknisk rom. Det legges nytt vann- og avløpsanlegg med tilknytning til offentlig nett. Bygget har totalt 120 m² BRA, fordelt på to etasjer, med 1 trapp og flere vinduer og dører. Tiltaket inkluderer også grunn- og terrengarbeid, membranarbeid, og tekniske installasjoner som sanitær og ventilasjon. Prosjektet har gjennomgått dispensasjonsbehandling for LNFR-areal og strandsonen, og har mottatt ferdigattest.

Produkter og materialer

Gulv Innvendige gulvflater

Gulv i stue, kjøkken, soverom og øvrige rom i henhold til tegninger

Innvendige gulvflater med overflatebehandling

Grunnarbeid VA-ledninger og terrengarbeid

Legging av vann- og avløpsledninger med tilknytning til offentlig nett, terreng tilbakeføres etter arbeid

Nytt vann- og avløpsanlegg med tilhørende grunnarbeid

Ventilasjon Mekanisk ventilasjon

Ventilasjonsanlegg i henhold til TEK17 og prosjektering

Ventilasjonsløsning for ny bygningsdel

Dører Ytterdører

🧱 Tre eller glass

Antall: 5

Ytterdører i fasader nord, øst og innvendige dører i planløsning

Ytterdører og innvendige dører tilpasset ny planløsning

Betong Grunnmur og fundament

🧱 Betong

Fundament og grunnmur for ny bygningsdel i henhold til tegninger

Betongfundament og grunnmur for ny bygningsdel

Vinduer Fasadevindu

🧱 Tre med 3-lags energiglass

Antall: 13

Vinduer i fasader nord, øst, sør med varierende størrelser, tilpasset eksisterende stil

Nye fasadevinduer i tre med energiglass for bedre isolasjon

Tømrer Trekonstruksjoner og innvendige arbeider

🧱 Tre

Tømrerarbeid for vegger, tak, innvendige konstruksjoner og overflater

Tømrerarbeid for ny bygningsdel og tilpasning til eksisterende bygg

Pipe Murpipe

🧱 Mur

Antall: 1

Pipe i tre fasader, tilpasset eksisterende bygg

Ny murpipe for ildsted

Bad Bad med sanitærutstyr

Antall: 1

Bad på 4,7 m² med sanitærutstyr og membran

Nytt bad med komplett sanitærutstyr og fuktsikring

Fasade Trekledning

🧱 Tre

Trekledning på alle fasader, tilpasset eksisterende byggestil

Ny trekledning for fasader sør, vest, nord og øst

Tak Saltak med teglstein

🧱 Teglstein

Antall: 1

Saltak med teglstein som takmateriale, tilpasset eksisterende bygg

Nytt saltak med teglstein for holdbarhet og estetikk

VVS Sanitærinstallasjon og vannforsyning

Nytt bad med sanitærinstallasjoner, tilkoblet offentlig vann- og avløpsnett

Sanitærinstallasjoner for bad og utvendig VA-anlegg

Membran Fuktsikring våtrom

🧱 Membran

Membranarbeid i bad for fuktsikring i henhold til TEK17

Fuktsikring av våtrom med membran

Elektro Elektrisk installasjon

Elektriske installasjoner i henhold til gjeldende forskrifter

Elektrisk anlegg for ny bygningsdel

Trapper Innvendig trapp

Antall: 1

Innvendig trapp mellom etasjer

Trapp for intern kommunikasjon mellom etasjer

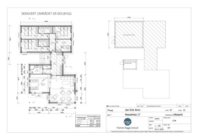
Plantegning

Enebolig 120.0 m²

Etasje 1 120.0 m²

Rom Areal Vinduer Dører
Stue 101 28.5 m² 1 1
Kjøkken 102 15.4 m² 0 1
Gang 103 11.2 m² 0 2
Soverom 104 11.7 m² 2 1
Soverom 105 11.7 m² 2 1
Soverom 106 11.7 m² 2 1
Soverom 107 9.2 m² 2 1
Bod 108 4.1 m² 0 1
Bod 109 3.1 m² 0 1
Bad 110 4.7 m² 0 1
Teknisk rom 111 0.0 m² 0 1

Fasader

Enebolig

Sør
Materiale
Tre
Taktype
Saltak
Takmat.
Tegl
Høyde
3.9 m
Vinduer
5
Dører
2
Synlige etasjer
2
Vest
Materiale
Tre
Taktype
Saltak
Takmat.
Tegl
Vinduer
0
Dører
0
Synlige etasjer
1
Nord
Materiale
Tre
Taktype
Saltak
Takmat.
Tegl
Høyde
3.9 m
Vinduer
4
Dører
1
Synlige etasjer
1
Øst
Materiale
Tre
Taktype
Saltak
Takmat.
Tegl
Vinduer
2
Dører
1
Synlige etasjer
1

Hendelser

21.04.2026 Gnr 87 bnr 32 Nesseheia 17 - vedtak på søknad om ferdigattest for riving og gjenoppføring av del av fritidsbolig, samt VA-anlegg
20.04.2026 Nesseheia 17 Søknad om ferdigattest 87/32
21.05.2025 Gnr 87 bnr 32 Nesseheia 17 - vedtak på søknad om tillatelse til riving og gjenoppføring av fritidsbolig, samt VA-anlegg
25.04.2025 Vil ha saken opp 18.06
10.04.2025 Spørsmål om fremgang i saken
28.03.2025 Søknad om tillatelse i ett trinn 87/32
07.01.2025 Vedtak på søknad om dispensasjon fra arealformål LNFR og pbl. § 1-8 for riving og gjenoppføring av del av fritidsbolig
19.12.2024 Søknad om dispensasjon