Extension UnderBehandling Fritidsbolig

Etterhåndsgodkjenning av anneks og tiltak i Barkevikveien 60

📍 Barkevikveien 60 , 3145 TJØME

Nøkkelinfo

Sakstype
Tilbygg
Bygningstype
Fritidsbolig
Bruksareal
26 m²
Kommune
Færder
Fylke
Vestfold
Gnr / Bnr
256 / 18
Saksnummer
2025/8495
Fase
Under behandling

Om byggesaken

Eksisterende anneks på 25,6 m² til fritidsbolig i Barkevikveien 60 har gjennomgått flere tiltak: innbygging av tidligere åpent areal under tak med panel, utskifting av råteskadet dør til dobbel glassdør, og installasjon av et utslippsfritt forbrenningstoalett med ventilasjonsrør. Tiltakene medfører ingen økning i bebygd areal eller volum, og ingen terrenginngrep. Platting med utedusj og tekjøkken er trukket fra søknaden og skal fjernes. Annekset har historisk bruk som oppholds- og lagringsbygg, og tiltakene forbedrer byggets funksjonalitet, estetikk og levetid uten å endre bruksformål eller øke privatisering i strandsonen. Eiendommen ligger i LNF-område og 100-metersbeltet langs sjø, og tiltakene krever dispensasjon som foreløpig er avslått av kommunen.

Produkter og materialer

Fasade Panelkledning

🧱 Trepanel

Innbygging av tidligere åpent areal under tak med trepanel, uten volumøkning

Innbygging av åpent areal under eksisterende tak for skjerming og bedre estetikk

Tømrer Bygningsarbeid

🧱 Treverk

Oppgradering og vedlikehold av eksisterende bygningskropp, inkludert panel og dør

Tømrerarbeid knyttet til innbygging og fasadeendring

Bad Forbrenningstoalett

Antall: 1

Utslippsfritt forbrenningstoalett tilkoblet strøm, med ventilasjonsrør på tak

Installasjon av forbrenningstoalett som beredskapsløsning uten vann eller avløp

Grunnarbeid Terrenginngrep

Antall: 0

Ingen terrenginngrep utført eller planlagt

Tiltakene medfører ingen terrenginngrep

Fasade Ytterdør og vindusløsning

🧱 Tre og glass

Antall: 1

Dobbel glassdør som erstatter gammel råteskadet låvedør, tilpasset eksisterende fasade

Utskifting av råteskadet dør til dobbel glassdør for bedre sikkerhet, tilgjengelighet og estetikk

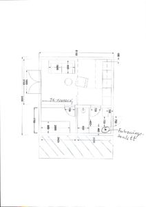
Plantegning

Anneks 25.6 m²

Etasje 1 25.6 m²

Rom Areal Vinduer Dører
TE-Kjøkken 101 14.4 m² 0 1
Toalett 102 11.2 m² 0 1
Bad 103 0.0 m² 0 1

Fasader

Uthus

Sør
Materiale
Tre
Taktype
Saltak
Vinduer
1
Dører
1
Synlige etasjer
1

Hovedbygg

Sør
Materiale
Tre
Taktype
Saltak
Høyde
3.5 m
Mønehøyde
5.2 m
Vinduer
2
Dører
0
Synlige etasjer
1

Enebolig

Nord
Materiale
Tre
Taktype
Saltak
Vinduer
3
Dører
1
Synlige etasjer
2

Hendelser

17.04.2026 Gbnr 256/18, 256/44 - Barkevikveien 60 - Søknad om etterhåndsgodkjenning - Videre prossess
23.03.2026 Gbnr 256/18, 256/44 - Barkevikveien 60 - Søknad om etterhåndsgodkjenning - Klage på vedtak om avslag
03.03.2026 Gbnr 256/18, 256/44 - Barkevikveien 60 - Søknad om etterhåndsgodkjenning - Vedtak
18.02.2026 Gbnr 256/18, 256/44 - Barkevikveien 60 - Søknad om etterhåndsgodkjenning - Tilleggsdokumentasjon
05.02.2026 Gbnr 256/18, 256/44 - Barkevikveien 60 - Søknad om etterhåndsgodkjenning - Varsel om avslag og mangelbrev
22.01.2026 Gbnr 256/18 - Barkevikveien 60 - Etterhåndsgodkjenning av div byggetiltak - Søknad om tillatelse til tiltak uten ansvarsrett
16.12.2025 Gbnr 256/18, 256/44 - Barkevikveien 60 - Anneks - Svar på spørsmål
12.12.2025 Gbnr 256/18, 256/44 - Barkevikveien 60 - Anneks - Spørsmål i forbindelse med søknad
03.12.2025 Gbnr 256/18, 256/44 - Barkevikveien 60 - Anneks - Retur av søknad
03.09.2025 Gbnr 256/18, 256/44 - Barkevikveien 60 - Søknad mottatt
02.09.2025 Gbnr 256/18, 256/44 - Barkevikveien 60 - Søknad om tillatelse til tiltak uten ansvarsrett