Extension UnderBehandling Fritidsbolig

Tilbygg og flytting av fritidsbolig i Botenkollveien 4, Røros

📍 Botnkollveien 4 , 7370 BREKKEBYGD

Nøkkelinfo

Sakstype
Tilbygg
Bygningstype
Fritidsbolig
Bruksareal
67 m²
Boenheter
1
Kommune
Røros - Rosse
Fylke
Trøndelag - Trööndelage
Gnr / Bnr
132 / 914
Saksnummer
2024/361
Fase
Under behandling

Om byggesaken

Prosjektet omfatter flytting av eksisterende fritidsbolig på 48 m² og oppføring av et tilbygg på 19 m², totalt 67 m² BRA. Tilbygget inneholder gang og to soverom, og det er planlagt en terrasse på 21-24 m². Bygget har saltak og trekledning, med flere vinduer og dører fordelt på fasadene. Det er montert stålpipe og vedovn i eksisterende del. Grunnarbeider, bunnledninger og sanitærinstallasjoner er utført. Det er også oppført en bod/verksted på 23 m² som ikke krever søknad. Prosjektet har fått midlertidig brukstillatelse med gjenstående arbeider knyttet til tilbygget som skal ferdigstilles innen frist. Endringssøknad for terrasse og fasadeendringer er under behandling, mens søknad om endring av tilbygg er avvist og må behandles som ny søknad.

Produkter og materialer

Dører Ytterdører

🧱 Tre/Glass

Antall: 7

Ytterdører på fasader, inkludert dør til terrasse

Ytterdører i tre med glassfelt

Bod Frittliggende bod/verksted

🧱 Tre

Antall: 1

Bod/verksted på 23 m², ikke søknadspliktig

Frittliggende bod/verksted på eiendommen

Fasade Trekledning

🧱 Tre

Fasader i tre med saltak

Trekledning på alle fasader med saltak

Terrasse Terrasse

🧱 Tre

Antall: 1

Terrasse på 21-24 m², høyde over terreng usikker

Ny terrasse i tre, ca 21-24 m², høyde over terreng vurderes

Tømrer Bygningskonstruksjon

🧱 Tre

Tømrerarbeid for tilbygg og flytting av fritidsbolig

Bad Bad med sanitærutstyr

Antall: 1

Bad på 3 m² i tilbygg

Bad med sanitærutstyr i tilbygg

Grunnarbeid Bunnledninger og terrengbearbeiding

Grunnarbeider og bunnledninger utført

Grunnarbeider og bunnledninger for tilbygg og flytting

Vinduer Fasadevindu

🧱 Tre/Aluminium

Antall: 14

Vinduer fordelt på fasader, 14 stk totalt

Fasadevindu i tre eller aluminium med 3-lags glass

Elektro Elektriske installasjoner

Elektriske installasjoner i fritidsbolig og tilbygg

Tak Saltak

🧱 Tre og taktekking

Saltak på eksisterende og tilbygg

Saltak på hele bygget

Gulv Innvendig gulv

Innvendige gulv i oppholdsrom og soverom

Pipe Stålpipe

🧱 Stål

Antall: 1

Montering av vedovn og stålpipe i eksisterende del

Stålpipe for vedovn i eksisterende fritidsbolig

VVS Sanitærinstallasjoner

Sanitærinstallasjoner i tilbygg og eksisterende bygg

Sanitærinstallasjoner utført av Røros VVS AS

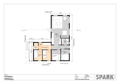
Plantegning

Enebolig 67.0 m²

Etasje 1 67.0 m²

Rom Areal Vinduer Dører
Opphold 101 28.0 m² 1 1
Bad 102 3.0 m² 0 1
Soverom 103 6.0 m² 1 1
Soverom 104 6.0 m² 1 1
Soverom 105 5.0 m² 1 1
Soverom 106 5.0 m² 1 1
Gang 107 5.0 m² 0 2
VF 108 2.0 m² 0 1
VF 109 2.0 m² 0 1
Gang 110 5.0 m² 0 1

Fasader

Enebolig

Nord
Materiale
Tre
Taktype
Saltak
Vinduer
4
Dører
1
Synlige etasjer
1
Vest
Materiale
Tre
Taktype
Saltak
Vinduer
3
Dører
1
Synlige etasjer
1
Sør
Materiale
Tre
Taktype
Saltak
Vinduer
4
Dører
1
Synlige etasjer
1
Øst
Materiale
Tre
Taktype
Saltak
Vinduer
3
Dører
1
Synlige etasjer
1

Hendelser

14.04.2026 Avvisning av søknad om endring av gitt tillatelse - tilbygg til fritidsbolig - gbnr. 132/914 - Botnkollveien 4
13.04.2026 Søknad om endring av gitt tillatelse eller godkjenning - gbnr 132/914 - Botnkollveien 4
12.12.2025 Midlertidig brukstillatelse - flytting av hytte og tilbygg - gbnr. 132/914 - Botnkollveien 4
11.12.2025 Supplering av søknad
01.12.2025 Behov for tilleggsdokumentasjon - midlertidig brukstillatelse - flytting av hytte og tilbygg - gbnr. 132/914 - Botenkollveien 4
26.11.2025 Søknad om midlertidig brukstillatelse 132/914 - Botnkollveien 4
25.11.2025 Supplering av søknad - gbnr. 132/914 - Botnkollveien 4
28.10.2025 Tilsynsrapport - gbnr. 132/914 - Botenkollveien 4
19.05.2025 Tilsynsrapport - flytting av fritidsbolig og tilbygg - gbnr. 132/914 - Botenkollveien 4
09.04.2025 Endringstillatelse - gbnr. 132/914 - Botenkollveien 4
02.04.2025 Behov for tilleggsdokumentasjon - pipe - gbnr. 132/914 - Botenkollveien 4
02.04.2025 Ref: 24/361 - 2 Botnkollveien 4 Røros
26.03.2025 Supplering av søknad