Extension Ferdigattest Fritidsbolig

Tilbygg og terrasse på fritidsbolig i Brennsdalsvegen 437

📍 Brennsdalsvegen 437 , 6953 LEIRVIK I SOGN

Nøkkelinfo

Sakstype
Tilbygg
Bygningstype
Fritidsbolig
Bruksareal
86 m²
Boenheter
1
Kommune
Hyllestad
Fylke
Vestland
Gnr / Bnr
103 / 7
Saksnummer
2023/530
Fase
Ferdigattest

Om byggesaken

Ny utvidelse av eksisterende fritidsbolig på Brennsdalsvegen 437 med et tilbygg på 40,5 m² og en terrasseforlengelse på 16,4 m². Tilbygget inkluderer økt grunnflate til totalt 86 m², med nye rom som større stue/kjøkken, bad, gang, bod og tre soverom. Bygget er i tre med saltak, og har brannmotstand REI60 mot nabogrense. Kjellerrommet utvides, men har lav takhøyde og regnes ikke som bruksareal. Tiltaket er plassert helt inntil nabogrense med skriftlig samtykke, og ligger 10,4 meter fra sjølinjen. Skredfarevurdering konkluderer med sikkerhetsklasse S2, og tiltaket er godkjent med dispensasjon fra reguleringsplanens arealgrenser og byggeforbud i strandsonen. Prosjektet er ferdigstilt med utstedt ferdigattest.

Produkter og materialer

Isolasjon Bygningsisolasjon

Isolasjon i vegger, tak og gulv iht. TEK17

Isolasjon for energieffektivitet og komfort

Bad Bad med våtromsstandard

Antall: 1

Nytt bad på 4,4 m² i tilbygget

Bad med nødvendige våtromsmaterialer og installasjoner

Terrasse Utvidet terrasse

🧱 Tre

Terrasse utvidet med 16,4 m², totalt 32,4 m² terrasseareal

Utvidelse av eksisterende terrasse i tre

Maling Utvendig og innvendig maling

Maling av trepanel og innvendige flater

Overflatebehandling for beskyttelse og estetikk

Tømrer Innvendige konstruksjoner

🧱 Tre

Innvendige vegger, tak og gulv i tilbygget

Tømrerarbeid for tilbyggets konstruksjon og innredning

Dører Ytterdører

🧱 Tre

Antall: 3

Ytterdører i tilbygget og eksisterende bygg

Dører til inngang og utgang til terrasse

Fasade Trepanel med saltak

🧱 Tre

Brannmotstand REI60 mot nabogrense

Trepanel på fasader med saltak, tilpasset eksisterende bygg

Ventilasjon Mekanisk ventilasjon

Ventilasjon i henhold til forskrifter

Ventilasjon for inneklima i tilbygget

Vinduer Fasadevindu

🧱 Tre/aluminium

Antall: 11

Vinduer i tilbygget og eksisterende fasade, inkludert ekstra vindu i stue

Nye og eksisterende fasadevinduer i tilbygget og hovedbygg

Elektro Elektrisk anlegg

Elektriske varmekabler og panelovner installert

Elektrisk oppvarming og belysning i tilbygget

Grunnarbeid Fundamentering og grunnmur

🧱 Betong

Ny grunnmur under tilbygget og terrasse

Fundamentering for tilbygg og terrasse, inkludert kjellerrom med lav takhøyde

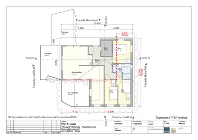
Plantegning

Enebolig 120.5 m²

Etasje 1 120.5 m²

Rom Areal Vinduer Dører
Stue/kjøkken 101 31.5 m² 1 1
Gang 102 9.9 m² 0 4
Bod 103 3.9 m² 0 1
Sov 104 9.1 m² 1 1
Bad 105 4.4 m² 0 1
Sov 106 7.0 m² 1 1
Sov 107 7.2 m² 1 1

Fasader

Fritidsbolig

SørVest
Materiale
Tre
Taktype
Saltak
Vinduer
1
Dører
0
Synlige etasjer
1
NordVest
Materiale
Tre
Taktype
Saltak
Vinduer
3
Dører
1
Synlige etasjer
1
NordØst
Materiale
Tre
Taktype
Saltak
Vinduer
2
Dører
0
Synlige etasjer
1
SørØst
Materiale
Tre
Taktype
Saltak
Vinduer
4
Dører
1
Synlige etasjer
2

Hendelser

10.04.2026 Sak 23/530 - Brenndalsvegen 437 - ettersendelse av dokumentasjon
09.04.2026 Ferdigattest - Gbnr 103/7 - Brennsdalsvegen 437 - Tilbygg til fritidsbustad
09.04.2026 Sak 23/530 - Brenndalsvegen 437 - ettersendelse av dokumentasjon
08.04.2026 Tilbakemelding om mangler - Gbnr 103/7 - Brennsdalsvegen 437 - Tilbygg til fritidsbustad
18.03.2026 Brennsdalsvegen 437 Søknad om ferdigattest 103/7
25.01.2024 Byggesak Gbnr 103/7, Tilbygg til fritidsbustad - godkjenning som sjølvbyggjar
30.12.2023 Byggesak Gbnr. 103/7, Brennsdalsvegen 437 - tilbygg til fritidsbustad
12.12.2023 Melding om vedtak - Tilbygg til fritidsbustad - gbr 103/7
12.12.2023 Vedtak til klagevurdering - Tilbygg til fritidsbustad - gbr 103/7
24.10.2023 NVE si fråsegn - Høyring - Søknad om dispensasjon - Oppføring av tilbygg til fritidsbustad gnr. 103 bnr. 7 Brenndalsvegen 437 - Hyllestad kommune
12.10.2023 Tilbakemelding - Dispensasjon - Hyllestad 103/7 - Brennsdalsvegen 437 - Tilbygg til fritidsbustad
29.09.2023 Uttale til dispensasjonssøknad - tilbygg fritidsbustad - gnr. 103 bnr. 7 - Brennsdalsvegen - Hyllestad kommune
15.09.2023 Oversender søknad til uttale - Gbnr 103/7 - Brennsdalsvegen 437 - Tilbygg til fritidsbustad
07.08.2023 Brennsdalsvegen 437 Søknad om tillatelse i ett trinn 103/7