Extension Avslatt Fritidsbolig

Tilbygg til fritidsbolig på Dalen 47, Kvamskogen

📍 Dalen 47 , 5600 NORHEIMSUND

Nøkkelinfo

Sakstype
Tilbygg
Bygningstype
Fritidsbolig
Bruksareal
28 m²
Boenheter
1
Kommune
Kvam
Fylke
Vestland
Gnr / Bnr
21 / 871
Saksnummer
25/3999
Fase
Avslått

Om byggesaken

Ny tilbygg på ca. 28,5 m² BRA til eksisterende fritidsbolig på Dalen 47, Kvamskogen. Tilbygget skal inneholde stue og to soverom, med et lite overbygd uteareal på ca. 1 m² mot vest. Eksisterende hytte er en tømmerstue med saltak, delvis isolert og med malt kledning. Tilbygget bygges i isolert bindingsverk med utvendig malt kledning i mørke nøytrale farger for å harmonere med eksisterende bygg. Det planlegges ikke behov for masseflytting eller sprenging. Fasade mot vest får en garasjeport, og det er totalt 6 vinduer og 2 dører i tilbygget og eksisterende bygg. Prosjektet inkluderer oppdatering av terrenglinjer og tilpasning til eksisterende terreng.

Produkter og materialer

Grunnarbeid Fundamentering og ringmur

🧱 Naturstein og betongsøyler

Natursteintil fjellgrunn, ringmur naturstein på gammel del, betongsøyler til fjellgrunn på tilbygg og terrasse

Fundamentering for tilbygget

Dører Ytterdør og garasjeport

Antall: 3

Furufyllingsdør malt utvendig, garasjeport på fasade vest

Dører til tilbygget og garasjeport

Elektro Elektrisk anlegg

Enkelt elektrisk anlegg med 25A hovedsikringer, skru sikringer

Elektrisk installasjon i tilbygget

Tømrer Bindingsverk og innvendige overflater

Isolert bindingsverk i tilbygget, panel på vegger og himling, tregulv og laminatgulv

Innvendige konstruksjoner og overflater i tilbygget

VVS Vann og avløp tilkobling

Offentlig tilknyttet vann og avløp, med eksisterende tilkobling

VVS-tilkobling for tilbygget

Tak Saltak med shingelpapp

🧱 Shingelpapp

Saltak med noe isolasjon, undertak i tre, taktekking med shingelpapp fra ca. 1991

Taktekking for tilbygget

Terrasse Impregnert terrasse med trapp

🧱 Impregnert tre

Terrasse på 17 m² med impregnert materiale mot vest med trapp til terreng

Utendørs terrasse tilknyttet tilbygget

Fasade Malt utvendig kledning

🧱 Malt treverk, mørke nøytrale farger

Utvendig malt kledning tilpasset eksisterende bygg

Kledning for tilbygget i isolert bindingsverk

Vinduer Fasadevindu

Antall: 6

2-lags isolerglass, koblede hyttevinduer

Vinduer til tilbygget og eksisterende bygg

Gulv Isolert gulv i tilbygg

Isolert gulv i tilbygget, uisolert gulv i gammel del

Gulvkonstruksjon i tilbygget

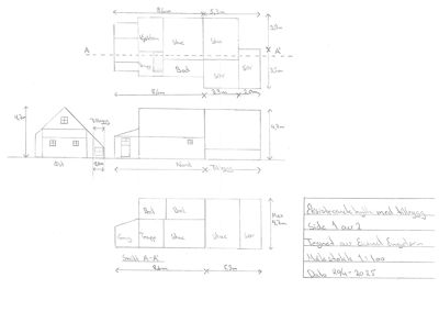
Plantegning

Eksisterende hytte 0.0 m²

Etasje 1 0.0 m²

Rom Areal Vinduer Dører
Stue 101 0.0 m² 0 0
Kjøkken 102 0.0 m² 0 0
Bad 103 0.0 m² 0 0
Gang 104 0.0 m² 0 0
Bod 105 0.0 m² 0 0

Etasje 2 0.0 m²

Rom Areal Vinduer Dører
Bod 201 0.0 m² 0 0
Bod 202 0.0 m² 0 0

Fasader

Eksisterende hytte med tilbygg

Vest
Taktype
Saltak
Vinduer
1
Dører
2
Synlige etasjer
1
Sør
Vinduer
5
Dører
0
Synlige etasjer
1

Hendelser

21.04.2026 Avslutting av sak
25.11.2025 Vedkomande tilleggsdokumentasjon til søknad om løyve til tiltak.
11.09.2025 Ynkje om tilleggsdokumentasjon for tiltak på gnr 21 bnr 871
10.09.2025 Førebels svar på søknad om tilbygg til fritidsbustad på gnr 21 bnr 871
09.09.2025 Søknad om å bygge tilbygg til fritidsbustad på gnr 21 bnr 871