Extension Rammetillatelse Fritidsbolig

Tilbygg og veranda på fritidsbolig, Flatøya 14

📍 Flatøya 14 , 9426 BJARKØY

Nøkkelinfo

Sakstype
Tilbygg
Bygningstype
Fritidsbolig
Bruksareal
74 m²
Kommune
Harstad - Hárstták
Fylke
Troms - Romsa - Tromssa
Gnr / Bnr
119 / 13
Saksnummer
2023/1066
Fase
Rammetillatelse

Om byggesaken

Ny utvidelse av eksisterende fritidsbolig på Flatøya 14 med et tilbygg på 22 m² som inneholder gang, bad og soverom, samt veranda rundt deler av hytta. Den eksisterende hytta har et bruksareal på ca. 52 m², og etter utvidelsen blir total bruksareal ca. 74 m². Tilbygget er planlagt som en naturlig forlengelse av eksisterende bygg med samme form og materialbruk, og verandaen er plassert på sørvest-, sørøst- og nordøstsiden. Bygget har saltak og trekledning, og det er en trapp i bygget, men annen etasje er ikke innredet. Tiltaket innebærer minimale terrenginngrep og er tilpasset landskapet og eksisterende byggeskikk. Verandaen inngår ikke i bruksarealet. Det er gitt dispensasjon fra reguleringsplanens maksimale bruksareal på 60 m² for fritidsboliger.

Produkter og materialer

Dører Ytterdør

Antall: 2

To dører i hytta, inkludert inngangsdør

Gulv Innvendige gulv

Gulv i tilbygget og eksisterende bygg, antatt standard for fritidsbolig

Bad Bad med sanitærutstyr

Antall: 1

Bad på 4,72 m² i tilbygget

Nytt bad i tilbygget med nødvendig sanitærinstallasjoner

Trapper Innvendig trapp

Antall: 1

Trapp til 2. etasje, men 2. etasje er ikke innredet og trapp vil ikke bli etablert

Innvendig trapp til kaldloft som ikke skal innredes

Elektro Elektrisk installasjon

Elektriske installasjoner i tilbygget og eksisterende bygg

Tak Saltak

Saltak på eksisterende bygg og tilbygg

Tak med saltak som matcher eksisterende bygg

Vinduer Fasadevindu

Antall: 2

To fasadevindu i hytta

Grunnarbeid Fundamentering og grunnmur

Fundamentering på bart fjell med tynt torvdekke, vurdert som K0-tiltak uten krav til geotekniske undersøkelser

Grunnarbeid tilpasset eksisterende grunnforhold

Fasade Trekledning

🧱 Tre

Trekledning på eksisterende og tilbygg

Fasade kledd med tre som matcher eksisterende bygg

Terrasse Veranda

Antall: 1

Veranda rundt deler av hytta på sørvest-, sørøst- og nordøstsiden, ikke medregnet i bruksareal

Veranda som omslutter deler av hytta

VVS Sanitær og varme

VVS-installasjoner for bad og øvrige rom i tilbygget

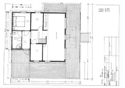
Plantegning

Hytte 120.0 m²

Etasje 1 120.0 m²

Rom Areal Vinduer Dører
Kjøkken/Stue 101 0.0 m² 0 0
Sov 102 6.2 m² 0 1
Sov 103 6.2 m² 0 1
Sov 104 9.0 m² 0 1
Gang 105 4.1 m² 0 0
Bad/El. Toalett 106 4.7 m² 0 1

Fasader

Hytte

Ukjent
Materiale
Tre
Taktype
Saltak
Høyde
4.1 m
Vinduer
2
Dører
1
Balkonger
1
Synlige etasjer
1

Hendelser

20.04.2026 Gbnr 119/13 - Dispensasjonsvedtak - Flatøya 14 - Oppføring av tilbygg og veranda
17.03.2026 Gbnr 119/13 - Uttalelse - dispensasjon - oppføring av påbygg og veranda
17.03.2026 Fylkeskommunens uttalelse til høring - søknad om dispensasjon - Oppføring av påbygg og veranda - gbnr. 119/13 - Harstad kommune
26.02.2026 Gbnr 119/13 - Flatøya 14 - Uttalelse - Oppføring av påbygg og veranda - Dispensasjon fra reguleringsplanens bestemmelser
23.02.2026 Gbnr 119/13 - Flatøya 14 - NVEs generelle uttalelse - Søknad om dispensasjon for oppføring av påbygg og veranda
18.02.2026 Gnr 119/13 Flatøya 14 - Oppføring av påbygg og veranda - Anmodning om høringsuttalelse - Dispensasjon fra reguleringsplanens bestemmelser
17.02.2026 Tilleggsinformasjon
20.01.2026 Gbnr. 23/1066 Flatøya 14 - Purring på innsending av tilleggsinformasjon - Oppføring av tilbygg og veranda
22.10.2025 Gbnr 119/13 - Flatøya 14 - Mangelbrev - Oppføring av tilbygg
28.04.2023 Høringsuttalelse - Søknad om dispensasjon - Oppføring av tilbygg og veranda til fritidsbolig - gbnr 119/13
14.04.2023 Høringsuttalelse til søknad om dispensasjon for oppføring av tilbygg - gbnr 119/13 Flatøya 14
14.04.2023 Oversender søknad til uttalelse - Gbnr 119/13 - Flatøya 14 - Oppføring av tilbygg
13.04.2023 Høringsuttalelse - Søknad om dispensasjon for oppføring av tilbygg - gbnr 119/13 Flatøya 14
28.03.2023 Tilleggsopplysninger - oppføring av tilbygg
23.03.2023 Tilbakemelding om mangler - Oppføring av tilbygg - Gbnr 119/13 Flatøya 14
13.01.2023 Søknad om tiltak
13.01.2023 Søknad om dispensasjon fra byggesaksbehandling
13.01.2023 Søknad om dispensasjon fra LNF