Extension Ferdigattest Fritidsbolig

Tilbygg på fritidsbolig i Freskeåsen 88, Ringebu

📍 Freskeåsen 88 , 2632 VENABYGD

Nøkkelinfo

Sakstype
Tilbygg
Bygningstype
Fritidsbolig
Bruksareal
24 m²
Boenheter
1
Kommune
Ringebu
Fylke
Innlandet
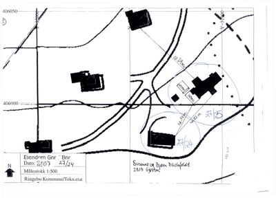
Gnr / Bnr
27 / 24
Saksnummer
2021/1549
Fase
Ferdigattest

Om byggesaken

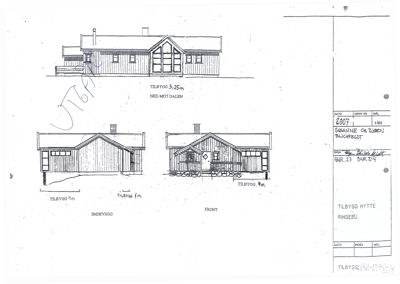
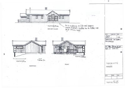
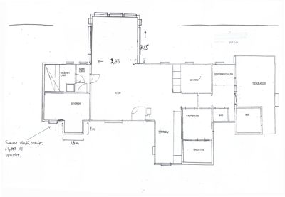
Ny tilbygg på 24,2 m² BRA (28 m² BYA) til eksisterende fritidsbolig på Freskeåsen 88 i Ringebu. Tilbygget har saltak med takvinkel tilpasset eksisterende hytte, og fasade og panel tilsvarende eksisterende bygg. Hytta har totalt ca. 105 m² BRA etter tilbygg, med rom som stue, kjøkken, gang, tre soverom, bad, vaskerom og toalett. Det er dokumentert at total bygningsmasse (fritidsbolig, anneks og uthus) overstiger kommuneplanens arealgrense på 120 m² BRA, og tiltakshaver har gjennomført mindre justeringer for å bringe arealet i samsvar med regelverket. Det foreligger ferdigattest for tiltaket. Arealberegninger er utført i henhold til Norsk Standard 3940:2023. Tiltaket er utført i samsvar med plan- og bygningslovens krav og kommunens vedtak.

Produkter og materialer

Maling Utvendig og innvendig maling

Maling av fasade og innvendige flater, ikke detaljert spesifisert

Maling av tilbygget og eksisterende bygg

VVS Varme og sanitær

Varme- og sanitæranlegg i tilbygget, ikke detaljert spesifisert

VVS-installasjoner i tilbygget

Vinduer Fasadevindu

🧱 Tre eller tilsvarende

Antall: 3

Vinduer tilsvarende eksisterende hytte, med samme høyde og oppdeling

Nye vinduer i tilbygget som matcher eksisterende vinduer

Bad Badromsinnredning

Bad i eksisterende hytte, ikke spesifisert om endret i tilbygget

Badromsinnredning i hytta

Tømrer Bygging av tilbygg

🧱 Tre

Oppføring av tilbygg på 24,2 m² BRA med trepanel og saltak

Tømrerarbeid for oppføring av tilbygget

Gulv Innvendig gulv

Gulv i tilbygget, type ikke spesifisert

Innvendige gulv i tilbygget

Dører Ytterdør

Antall: 1

Dør i tilbygget, type ikke spesifisert

Ytterdør til tilbygget

Grunnarbeid Fundament

Fundament for tilbygget, detaljer ikke spesifisert

Grunnarbeid og fundamentering for tilbygget

Fasade Trepanel

🧱 Tre

Panel og fasade tilsvarende eksisterende fritidsbolig

Fasadepanel i tre som matcher eksisterende bygg

Tak Saltak

🧱 Taktekking ikke spesifisert

Saltak med takvinkel tilpasset eksisterende hytte, ca. 25 grader

Nytt saltak på tilbygget med tilpasset takvinkel

Isolasjon Vegger og tak

Isolasjon iht. TEK17 krav

Isolasjon i vegger og tak i tilbygget

Elektro Elektrisk installasjon

Elektrisk anlegg i tilbygget, ikke detaljert spesifisert

Elektrisk installasjon i tilbygget

Fasader

Fritidsbolig

Ukjent
Taktype
Saltak
Vinduer
0
Dører
0
Synlige etasjer
1

Hytte

Ukjent
Materiale
Tre
Taktype
Saltak
Vinduer
3
Dører
0
Synlige etasjer
1
Nord
Materiale
Tre
Taktype
Saltak
Vinduer
6
Dører
1
Balkonger
1
Synlige etasjer
1
Sør
Materiale
Tre
Taktype
Saltak
Vinduer
4
Dører
1
Balkonger
1
Synlige etasjer
1
Vest
Materiale
Tre
Taktype
Saltak
Vinduer
4
Dører
1
Synlige etasjer
1
Bakside
Materiale
Tre
Taktype
Flatt tak
Vinduer
3
Dører
0
Synlige etasjer
1
Ned mot dalen
Materiale
Tre
Taktype
Saltak
Vinduer
5
Dører
1
Balkonger
1
Synlige etasjer
1
Endevegg
Materiale
Tre
Taktype
Saltak
Vinduer
4
Dører
1
Synlige etasjer
1
Front
Materiale
Tre
Taktype
Saltak
Vinduer
3
Dører
1
Balkonger
1
Synlige etasjer
1

Hendelser

15.04.2026 27/24 Rettelse adresse
15.04.2026 Ferdigattest for oppføring av tilbygg til eksisterende fritidsbolig.
10.04.2026 27/34 Gjelder Freskeåsen 88
10.04.2026 Vedr. Freskeåsen 88
10.04.2026 27/34 Søknad om ferdigattest
07.07.2025 Tilbakemelding etter mottatt arealberegning.
02.07.2025 Arealmålingsrapport
28.04.2025 Vedrørende arealutnyttelse- Freskevegen 88
25.04.2025 Tilbakemelding på brev om arealutnyttelse.
10.04.2025 Arealutnyttelse
24.03.2025 Tilbakemelding på arealutnyttelse i forbindelse med søknad om ferdigattest
05.03.2025 27/24 Vedr. arealstørrelse
06.02.2025 24/27 - Utvidet dokumentasjon på arealberegninger i forbindelse med søknad om ferdigattest.
13.01.2025 24/24 - Tilbakemelding på utvidet dokumentasjon på arealbergning
11.12.2024 27/24 - 24/27 - Utvidet dokumentasjon på arealberegninger og foreløpig tilbakemelding på søknad om dispensasjon for arealutnyttelse
15.10.2024 27/24 Tilleggsopplysninger i forbindelse med ferdigattest
10.09.2024 27/24 Vedr. tilleggsopplysninger i forbindelse med ferdigattest
09.09.2024 27/24 -Tilleggsopplysninger i forbindelse med ferdigattest.
13.08.2024 27/24 Søknad om ferdigattest
12.07.2021 Vedtak 27/24 - Freskeåsen 88 - Tilbygg på fritidsbolig
09.07.2021 Vedtak 27/24 - Indre Mygrenda 48 - Tilbygg på fritidsbolig 2
09.07.2021 Vedtak 27/24 - Indre Mygrenda 48 - Tilbygg på fritidsbolig
08.07.2021 27/34 - Tilbakemelding på oppdaterte tegninger
07.07.2021 Skannet bilde fra Skibladner_MX3140
06.07.2021 27/24 - Tilbakemelding på søknad
05.07.2021 Skannet bilde fra Skibladner_MX3140
05.07.2021 Skannet bilde fra Skibladner_MX3140
05.07.2021 Skannet bilde fra Skibladner_MX3140
21.06.2021 27/34 Søknad om tillatelse til tiltak uten ansvarsrett