Extension UnderBehandling Fritidsbolig

Tilbygg og terrengmur til fritidsbolig på Gamlebrygga 4

📍 Gamlebrygga 4 , 3475 SÆTRE

Nøkkelinfo

Sakstype
Tilbygg
Bygningstype
Fritidsbolig
Bruksareal
110 m²
Boenheter
1
Kommune
Asker
Fylke
Akershus
Gnr / Bnr
353 / 483
Saksnummer
20/4557
Fase
Under behandling

Om byggesaken

Ny tilbygg på 6,3 m² til eksisterende fritidsbolig med tilhørende fasadeendringer og oppføring av terrengmur i naturstein på 1,5 meters høyde. Tilbygget omfatter utgravning av kjelleretasjen for fire soverom og et bad, samt etablering av vinduer i kjelleretasjen og balkong med trapp mot nord. Terrengmuren plasseres øst på eiendommen, 0,5 meter fra tomtegrensen, for å skape et mer brukbart uteoppholdsareal. Fasaden er i tre med flatt tak, og bygget har to etasjer med totalt ca. 97 m² BRA. Prosjektet inkluderer også terrengtrapp til sjøen. Det er søkt ferdigattest for terrengmuren, mens resten av tilbyggstiltaket ikke blir gjennomført.

Produkter og materialer

Grunnarbeid Utgraving og terrengarbeid

Utgraving av kjelleretasjen for tilbygg (ikke gjennomført), terrengsenking mot øst for vinduer

Grunnarbeid for tilbygg og terrengtilpasning

Mur Terrengmur i naturstein

🧱 Naturstein

Antall: 1

Terrengmur 1,5 meter høy, plassert 0,5 meter fra tomtegrense, parallelt med vei, oppført sommeren 2022

Oppføring av terrengmur i naturstein for å skape brukbart uteoppholdsareal og terrengstøtte

Tømrer Tilbygg og balkongkonstruksjon

🧱 Tre

Tilbygg på 6,3 m² med balkong utkraget mot nord og trapp ned til terreng (ikke gjennomført)

Tømrerarbeid for tilbygg og balkong

Vinduer Fasadevindu

Antall: 6

Vinduer i fasade øst, inkludert nye vinduer i kjelleretasjen med pusset mur rundt

Nye vinduer i kjelleretasjen og fasadeendringer

Bad Bad i kjelleretasjen

Antall: 1

Bad i kjelleretasjen med romhøyde 2,4 m (planlagt, ikke gjennomført)

Innvendig bad i tilbyggets kjelleretasje

Fasade Fasade i tre med flatt tak

🧱 Tre

Fasadeendringer med trepanel og flatt tak, 6 vinduer og 1 dør på østfasade

Fasadeendringer i forbindelse med tilbygg og kjellerutvidelse

Trapper Utendørs terrengtrapp

Antall: 1

Terrengtrapp i tilknytning til terrengmur for gangforbindelse til sjøen

Utendørs trapp for adkomst mellom terreng og uteareal

Dører Ytterdør

Antall: 1

Dør i fasade øst

Ytterdør i tilbygg/fasadeendring

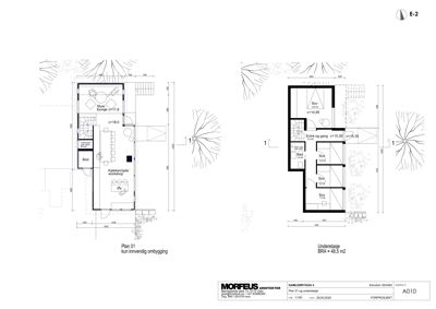
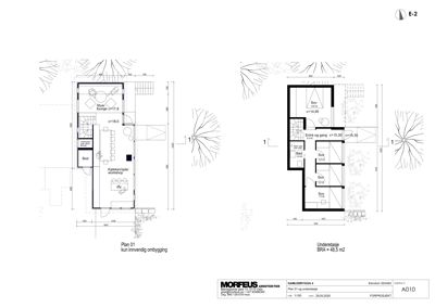
Plantegning

Enebolig 97.0 m²

Etasje 0 48.5 m²

Rom Areal Vinduer Dører
Sov U01 13.8 m² 0 1
Entré og gang U02 8.3 m² 0 1
Bad U03 3.4 m² 0 1
Sov U04 5.2 m² 0 1
Sov U05 5.2 m² 0 1
Sov U06 7.5 m² 0 1

Etasje 1 48.5 m²

Rom Areal Vinduer Dører
Stue/lounge 101 17.8 m² 2 1
Kjøkken/spis/workshop 102 18.0 m² 1 1
Bod 103 2.7 m² 1 1

Fasader

Enebolig

Øst
Materiale
Tre
Taktype
Flatt tak
Vinduer
6
Dører
1
Synlige etasjer
2

Hendelser

15.04.2026 353/483 Gamlebrygga 4 - Søknad om ferdigattest
27.03.2026 353/483 Tilbakemelding - Utsatt frist for søknad om ferdigattest
26.03.2026 353/483 Tilbakemelding - Ber om utsatt frist
25.03.2026 353/483 Tilbygg fritidsbolig med tilhørende fasadeendringer og terrengmur i naturstein
07.02.2023 353/483 Svar på oppdatert gjennomføringsplan og ansvarsrett fra graver
01.05.2022 353/483 Oppdatert gjennomføringsplan og ansvarsrett fra graver
18.09.2020 353/483 Tillatelse til tiltak i ett trinn - tilbygg fritidsbolig med tilhørende fasadeendringer og terrengmur i naturstein
22.06.2020 353/483 Kvitteringsbrev - Tilbygg fritidsbolig med tilhørende fasadeendringer og terrengmur i naturstein
22.06.2020 353/483 Søknad om tilbygg fritidsbolig med tilhørende fasadeendringer og terrengmur i naturstein