Extension Igangsettingstillatelse Fritidsbolig

Ny fritidsbolig med adkomstveg i Hamraveien 85, Rørvik

📍 Hamraveien 81 , 7900 RØRVIK

Nøkkelinfo

Sakstype
Tilbygg
Bygningstype
Fritidsbolig
Bruksareal
262 m²
Boenheter
1
Kommune
Nærøysund
Fylke
Trøndelag - Trööndelage
Gnr / Bnr
217 / 9
Saksnummer
2024/2936
Fase
Igangsettingstillatelse

Om byggesaken

Ny fritidsbolig på ca. 245 m² BRA i én etasje med saltak og grå/brun stående trekledning, plassert ca. 110 meter fra sjøen i et område med skrånende terreng. Bygget erstatter eksisterende eldre fritidsbolig og uthus som rives, og er tilpasset terrenget for å minimere inngrep. Det etableres en garasje på ca. 54 m² med tilhørende teknisk rom og bod. Adkomstveg oppgraderes og forlenges med ca. 275 meter, med grusing og mindre pigging i fjell for å sikre kjørbarhet, langs eksisterende trasé som historisk har vært brukt som ferdselsveg. Tiltaket inkluderer terrengendringer og privat vann- og avløp. Veg og bebyggelse ligger utenfor dyrkamark og slåttemark, og tiltaket er vurdert å ivareta hensyn til natur, landbruk og strandsonen bedre enn dagens situasjon. Det foreligger dispensasjon fra arealformål LNFR sone 2 og tiltaksforbudet i 100-metersbeltet langs sjø.

Produkter og materialer

Dører Ytterdører og garasjeport

🧱 Tre og glass, sort/antrasitt farge

Antall: 9

Ytterdører til bolig og garasjeport i sort/antrasitt

VVS Privat vann- og avløp

Antall: 1

Toalett og vaskerom i bygget, privat løsning uten kommunalt anlegg

Privat vann- og avløpsanlegg til fritidsbolig, tilpasset uten kommunal tilknytning

Tak Saltak med stålplater

🧱 Glatt stålplate, sort/antrasitt

Antall: 1

Saltak på fritidsbolig med stålplater i sort/antrasitt

Tømrer Innvendige vegger og tak

🧱 Tre

Innvendige konstruksjoner i tre for ny fritidsbolig

Maling Utvendig maling

🧱 Grå eller brun farge

Maling av fasade i grå eller brun for å redusere eksponering i terrenget

Veg Oppgradering og forlengelse av adkomstveg

🧱 Grusdekke, drenerende masser

Antall: 275

Veibredde 2,5 meter, stikkrenner Ø 0,2 m, grøfter for vannavledning

Oppgradering av eksisterende sti/traktorveg med grusdekke og forlengelse med ca. 275 meter ny veg med minimal terrenginngrep

Rekkverk Terrasserekkverk

Rekkverk til terrasse/platting til fritidsboligen

Garasjeport Port til garasje

Antall: 1

Sort/antrasitt farge

Garasjeport i sort/antrasitt farge

Vinduer Fasadevindu

🧱 Tre med 3-lags energiglass

Antall: 14

Vinduer i stue, kjøkken og soverom med sort/antrasitt ramme

Fasade Stående trekledning

🧱 Tre, grå eller brun farge

Antall: 1

Fasade med stående trekledning i grå eller brun farge for minst mulig eksponering

Gulv Innvendige gulv

Innvendige gulv i fritidsboligen, type ikke spesifisert

Grunnarbeid Fjerning vegetasjon og pigging i fjell

Pigging 0,5-1,0 m bredde, masseutskifting med steinholdige masser

Grunnarbeid for ny fritidsbolig og oppgradering av adkomstveg, inkludert pigging i fjell og masseutskifting

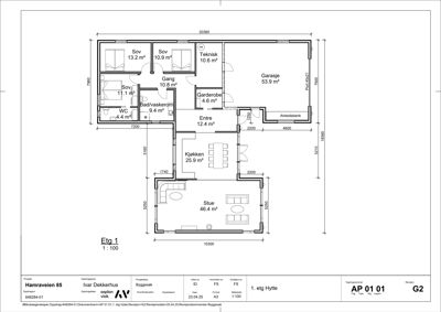
Plantegning

Enebolig 262.4 m²

Etasje 1 262.4 m²

Rom Areal Vinduer Dører
Stue 101 46.4 m² 3 1
Kjøkken 102 25.9 m² 1 1
Entre 103 12.4 m² 0 2
Gang 104 10.8 m² 0 0
WC 105 4.4 m² 0 1
Bad/vaskerom 106 9.4 m² 0 1
Sov 107 11.1 m² 1 1
Sov 108 13.2 m² 1 1
Sov 109 10.9 m² 1 1
Garderobe 110 4.6 m² 0 1
Teknisk 111 10.6 m² 0 1
Garasje 112 53.9 m² 1 1

Fasader

Enebolig

Sør
Materiale
Tre
Taktype
Saltak
Vinduer
5
Dører
3
Synlige etasjer
1
Nord
Materiale
Tre
Taktype
Flatt tak
Vinduer
3
Dører
2
Synlige etasjer
1
Vest
Materiale
Tre
Taktype
Saltak
Vinduer
5
Dører
2
Synlige etasjer
1
Øst
Materiale
Tre
Taktype
Flatt tak
Vinduer
3
Dører
0
Synlige etasjer
1

Hovedbygg

Ukjent
Materiale
Tre
Taktype
Saltak
Høyde
4.8 m
Mønehøyde
6.6 m
Vinduer
2
Dører
2
Synlige etasjer
1

Hendelser

21.04.2026 217/9 - Ivar Dekkerhus - Behov for å redusere størrelse på hytten, samt. gjøre noen endringer i planløsningen slik at bygningskroppen blir mer tilpasset terreng - gnr 217 bnr 9 - Hamraveien 85
13.04.2026 Statsforvalteren i Møre og Romsdal - Foreløpig svar - settestatsforvalter - byggesak - 217/9 - gnr 217 bnr 9 - riving - ny fritidsbolig - veg
12.03.2026 217/9 - Ivar Dekkerhus - Oversendelse av klagebehandling til Statsforvalteren. Klage fra Statsforvalteren på kommunens vedtak er ikke tatt til følge.
12.03.2026 Vedtak etter klagebehandling - Vedtak i UNN - 72/25 - Ivar Dekkerhus - Søknad om dispensasjon for oppføring av fritidsbolig, forlengelse og oppgradering av adkomstveg - Hamraveien 85 - 217/9
05.03.2026 217/9 - Ivar Dekkerhus - Igangsettingstillatelse nr. 1 - Grunnarbeid for ny fritidsbolig - Hamraveien 85
03.03.2026 217/9 - Avklaring omfang av søknad om igangsettingstillatelse - Dekkerhus
23.02.2026 217/9 - Ivar Dekkerhus - Søknad om igangsettingstillatelse - gnr 217 bnr 9
18.02.2026 217/9 - Tilbakemelding på vegne av søker ang. klage fra Statsforvalteren - Hamranveien 85
03.12.2025 Statsforvalteren i Trøndelag - Avklaring på spørsmål om rettslig klageinteresse
18.11.2025 Kommunen ber om avklaring med Statsforvalteren vedrørende klage på vedtak og hvordan kommunen skal forholde seg til Statsforvalteren når det ikke blir gitt høringsuttalelse etter pbl § 21-5
14.11.2025 217/9 - Statsforvalteren i Trøndelag - Klage på vedtak om dispensasjon til forlengelse og oppgradering av veg -Hamraveien 85 - gnr 217 bnr 9
28.10.2025 Melding om vedtak - 217/9 - Ivar Dekkerhus - Søknad om dispensasjon og rammetillatelse for rivning av eldre våningshus og oppføring av fritidsbolig - Hamraveien 85
22.09.2025 Ingvild Dekkerhus - Innspill på vegene av tiltakshaver etter høring av endret søknad - Hamraveien 85
30.07.2025 SV: BYGG-24/2936 - Svar på spørsmål om når vedtak kan foreligge
30.07.2025 Vedr. 202506781-6 - Nærøysund kommune - Revidert søknad om dispensasjon og rammetillatelse - Riving av eksisterende fritidsbolig og oppføring av ny fritidsbolig - Hamraveien 85 - 217/9
30.07.2025 SV: BYGG-24/2936 - Nytt spørsmål om når vedtak kan foreligge
15.07.2025 217/9 - Høring - Ivar Dekkerhus - Revidert søknad om dispensasjon og rammetillatelse - Riving av eksisterende fritidsbolig og oppføring av ny fritidsbolig - Hamraveien 85
24.06.2025 Asplan Viak - Nytt spørsmål om når vedtak kan foreligge
11.06.2025 217/9 - Ivar Dekkerhus - Supplering av søknad - Nytt bygg til boligformål - Hamraveien 85 - gnr 217 bnr 9
11.06.2025 217/9 - Asplan Viak - Spørsmål om når vedtak kan foreligge - Gjelder nytt bygg til boligformål - Hamraveien 85 - gnr 217 bnr 9