Extension Igangsettingstillatelse Fritidsbolig

Tilbygg og deling av fritidsbolig med VA-ledninger på Homlungfjellet 50, Hvaler

📍 Homlungfjellet 50 , 1680 SKJÆRHALDEN

Nøkkelinfo

Sakstype
Tilbygg
Bygningstype
Fritidsbolig
Bruksareal
49 m²
Boenheter
1
Kommune
Hvaler
Fylke
Østfold
Gnr / Bnr
3 / 154
Saksnummer
2021/1492
Fase
Igangsettingstillatelse

Om byggesaken

Prosjektet omfatter riving av et eksisterende anneks på 13,2 m² og oppføring av et tilbygg til en eksisterende fritidsbolig på Homlungfjellet 50, med en samlet økning i bruksareal på 7 m², slik at total BRA blir 49 m². Tilbygget er plassert tilbaketrukket fra sjøen, med flatt tak og tre som hovedmateriale, og har en nedtonet gråbrun farge for å gli inn i landskapet. Det etableres teknisk rom under tilbygget med frostfri jordvarmeløsning. Fasadeendringer inkluderer justering av glassflater med skyvbare spilerammer som dekker vinduer og dører når hytta ikke er i bruk, for å redusere eksponering og lysforurensning. Prosjektet inkluderer også justering av tomtegrenser (makeskifte) for å samle bebyggelsen og redusere privatiserende elementer mot tursti. Fremføring av vann- og avløpsledninger skjer delvis i sjø og på land, med krav om skånsom gjennomføring og tilbakeføring av terreng. Tiltaket er underlagt strenge vilkår fra Ytre Hvaler nasjonalpark og kommunen for å ivareta natur- og friluftshensyn.

Produkter og materialer

Terrasse Markplatting ved inngangsparti

🧱 Steinheller eller tilsvarende

Antall: 9

Markplatting på 9 m² ved inngangspartiet

Opparbeidet uteareal i tilknytning til tilbygget

Fasade Trepanel, låvepanel skurlast

🧱 Tre, ubehandlet som gråner naturlig

Gråbrun farge uten markeringer, naturtilpasset for å gli inn i landskapet

Utvendig kledning og fargesetting for å redusere synlighet i landskapet

Tak Flatt tak

🧱 Ikke reflekterende taktekking

Maksimal gesimshøyde 4,0 m fra gjennomsnittlig terreng

Takform og materialvalg for å tilpasse bygget til terreng og omgivelser

Rekkverk Diskré lavt rekkverk med spiler

🧱 Tre

Lav høyde og avkortet lengde, diskret utforming

Nytt rekkverk som erstatter eksisterende kraftig og høyt rekkverk, for bedre tilpasning til omgivelsene

Vinduer Skyvbare spilerammer foran vinduer og dører

🧱 Tre, mellomgrå farge tilpasset vegg

Antall: 7

Løsning som dekker glassflater når hytta ikke er i bruk, kan skyves sideveis i dobbel skinne, også solskjerming

Vinduer og dører skal ha lemmer/spilerammer for å redusere eksponering og lysforurensning

Grunnarbeid Pilarer og kryprom teknisk rom

🧱 Leca-mur, jordvarme for frostfri teknisk rom

Teknisk rom under tilbygget med jordvarme, høyde 60-100 cm over fjell

Grunnarbeider for tilbygg med frostfri teknisk rom

VVS Vann- og avløpsledninger

🧱 PVC/PE-rør, nedgravd i sjøbunn og på land

Ledninger legges 20-30 cm under sjøbunn, på land mellom rullesteiner, med krav om skånsom gjennomføring og tilbakeføring

Fremføring av vann- og avløpsledninger til fritidsbolig, delvis i sjø og på land

Maling Utvendig maling/fargebehandling

🧱 Gråbrun beis/maling

Farge tilpasses bakenforliggende fjell og vegetasjon, uten markeringer

Fargevalg for å redusere synlighet og tilpasse bygget til landskapet

Tømrer Ombygging og tilbygg

Riving av anneks og oppføring av tilbygg med tilpasning til terreng og eksisterende bygg

Bygningsmessige arbeider for tilbygg og ombygging av fritidsbolig

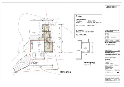
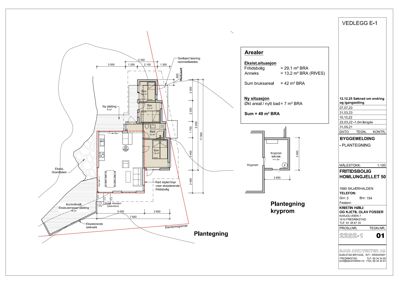
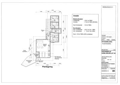
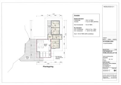
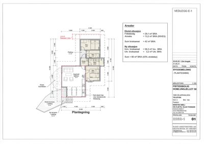
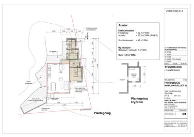
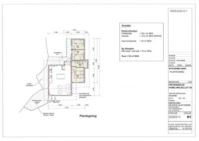
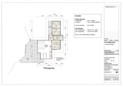
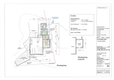
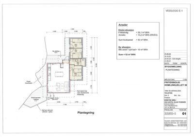
Plantegning

Fritidsbolig 101.0 m²

Etasje 0 49.0 m²

Rom Areal Vinduer Dører
Kryprom teknisk 001 0.0 m² 0 0
Sov 101 7.6 m² 1 1
Bad 102 3.4 m² 0 1
Sov 103 4.4 m² 1 1
Sov 104 3.0 m² 1 1
Stue 105 20.6 m² 2 1
Kryprom teknisk Kryprom 0.0 m² 0 0
Sov 106 3.4 m² 0 0
Kjøkken 002 10.0 m² 0 1
Sov 003 7.6 m² 1 1
Bad 004 3.4 m² 0 1
Sov 005 4.4 m² 0 1
Sov 006 3.6 m² 0 1
Kryprom teknisk 007 0.0 m² 0 0

Etasje 1 52.0 m²

Rom Areal Vinduer Dører
Stue 101 28.0 m² 1 1
Kjøkken 102 10.0 m² 0 1
Bad 103 4.0 m² 0 1
Sov 104 8.0 m² 1 1
Sov 105 5.0 m² 1 1
Sov 106 5.0 m² 1 1
Platting 107 1.7 m² 0 0
Platting/terrasse 108 33.0 m² 0 0

Fasader

Fritidsbolig

Sør
Materiale
Tre
Taktype
Flatt tak
Vinduer
3
Dører
1
Synlige etasjer
1
Vest
Materiale
Tre
Taktype
Flatt tak
Vinduer
2
Dører
2
Balkonger
1
Synlige etasjer
1
Nord
Materiale
Tre
Taktype
Flatt tak
Vinduer
2
Dører
1
Synlige etasjer
1
Øst
Materiale
Tre
Taktype
Flatt tak
Vinduer
3
Dører
1
Synlige etasjer
1

Hendelser

13.04.2026 Reviderte tegninger - justering av glass i fasadene - ombygging av fritidsbolig - 3/154 - Homlungfjellet 50
28.03.2026 Ytre Hvaler nasjonalpark - tillatelse til endring tilbygg og fasadeendringer - tilbygg hytte - 3/154 - Homlungfjellet 50
16.02.2026 Uttalelse - søknad om endring - tilbygg og fasadeendringer til hytte - 3/154 - Homlungfjellet 50
20.01.2026 Oversendelse av sak til uttalelse - søknad om endring tilbygg og fasadeendringer til hytte - 3/154 - Homlungfjellet 50
23.12.2025 Dispensasjon og byggetillatelse - fremføring av vann- og avløpsledninger - 3/154 - Homlungfjellet 50
22.12.2025 Søknad - endring av gitt tillatelse og søknad om igangsettingstillatelse - 3/154 - Homlungfjellet 50
03.04.2025 Tillatelse til framføring av vann- og avløp til hytte - Ytre Hvaler nasjonalpark - 3/154 - Homlungfjellet 50
20.12.2024 Oversendelse av sak til uttalelse - fremføring av VA til hytte - 3/154 - Homlungfjellet 50
19.12.2024 Uttalelse - fremføring av VA til hytte - 3/154 - Homlungfjellet 50
19.12.2024 Uttalelse dispensasjon - 100-meterbeltet - fremføring av VA-ledninger - 3/154 - Homlungfjellet 50
18.08.2023 Delvis godkjenning av rammetillatelse - 3/154 - Homlungfjellet 50
14.08.2023 Delvis innvilgelse av dispensasjon og rammetillatelse - tilbygg fritidsbolig - 3/154 - Homlungfjellet 50
27.06.2023 Ytre Hvaler nasjonalpark - tilbygg hytte - 3/154 - Homlungfjellet 50
27.06.2023 Vedtak fra Ytre Hvaler nasjonalpark - 3/154 - Homlungfjellet 50
12.06.2023 Uttalelse - tilbygg til eksisterende fritidsbolig - 3/154 - Homlungfjellet 50
31.05.2023 Uttalelse til søknad om dispensasjon for oppføring av tilbygg til hytte og deling - 3/154 - Homlungfjellet 50
22.05.2023 Oversendelse av sak til uttalelse - tilbygg og deling - 3/154 - Homlungfjellet 50
05.04.2023 Tilleggsinformasjon 4 - endring av tegninger - redusert areal - 3/154 - Homlungfjellet 50
16.11.2022 Kommunen foreløpige vurdering - 3/154 - Homlungfjellet 50
10.11.2022 Søknad om tilbygg - Tilbakemelding etter befaring med nasjonalparkforvalter - 3/154 - Homlungfjellet 50
13.04.2022 Tilbakemelding justert prosjekt - Hvileberget - 3/154 - Homlungfjellet 50
11.04.2022 Tilleggsinformasjon 2 - 3/154 - Homlungfjellet 50
16.09.2021 Tilleggsinformasjon - Hvileberget - 3/154 - Homlungfjellet 50
26.08.2021 Etterspørsel dokumentasjon - 3/154 - Homlungfjellet 50
24.06.2021 Foreløpig svar - søknad om rammetillatelse - 3/154 - Homlungfjellet 50
11.06.2021 Søknad om rammetillatelse - 3/154 - Homlungfjellet 50