Extension Ferdigattest Fritidsbolig

Tilbygg og endring av hytte på Hvalane 56, Hvaler

📍 Hvalane 56 , 1684 VESTERØY

Nøkkelinfo

Sakstype
Tilbygg
Bygningstype
Fritidsbolig
Bruksareal
90 m²
Boenheter
1
Kommune
Hvaler
Fylke
Østfold
Gnr / Bnr
48 / 292
Saksnummer
2015/2494
Fase
Ferdigattest

Om byggesaken

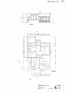
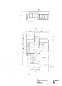
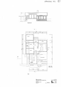
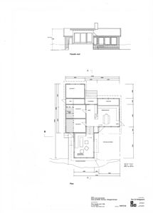
Ny utvidelse og ombygging av fritidsbolig på Hvalane 56, Hvaler. Eksisterende hytte på 82 m² BRA får et tilbygg på 8 m², med samlet bruksareal på 90 m². Tilbygget omfatter utvidelse av to soverom og ombygging av tidligere tilbygg med heving av gulv og tak til mønehøyde på opprinnelig hytte. Taket på tilbygget endres fra saltak til flatt tak med maksimal mønehøyde 4,25 meter og gesimshøyde 3,5 meter, i tråd med kommuneplanens bestemmelser. Bygningen har tre soverom, bad/vaskerom, kjøkken/allrom, bod, gang og oppholdsrom, med tre fasader i tre og tak i saltak og flatt tak. Tiltaket er tilpasset terrenget og har fått ferdigattest.

Produkter og materialer

Kjøkken Kjøkken/allrom

Antall: 1

Kjøkken/allrom 24 m² med 1 vindu og 1 dør

Kjøkken og allrom i hytta

Elektro Elektrisk anlegg

Ikke spesifisert, men nødvendig for boligstandard

Elektrisk installasjon for hytte og tilbygg

Tak Saltak og flatt tak

🧱 Taktekking ikke spesifisert

Saltak på eksisterende del, flatt tak på tilbygget med mønehøyde 4,25 m og gesimshøyde 3,5 m

Takendring fra saltak til flatt tak på tilbygget, tilpasset kommuneplanens høydebegrensninger

Bad Bad/vaskerom

Antall: 1

Bad/vask 6 m² med 1 vindu og 1 dør

Bad/vaskerom i hytta

Fasade Trepanel

🧱 Tre

Trepanel på fasader nord, sør og øst

Trepanel som fasademateriale for hytte og tilbygg

Tømrer Bygningskonstruksjon

🧱 Tre

Ombygging og tilbygg med heving av gulv og tak, ny takkonstruksjon

Tømrerarbeid for tilbygg og ombygging av hytte

Dører Ytterdører

🧱 Ikke spesifisert

Antall: 4

Dører i fasader nord (1), sør (1), øst (1), og inngangsdør til overdekket del

Ytterdører til hytte og tilbygg

VVS Vann og avløp

Kobling til offentlig vann og avløp med vannmåler og godkjent rørleggerarbeid

VVS-installasjoner for hytte og tilbygg

Vinduer Fasadevindu

🧱 Ikke spesifisert

Antall: 11

Vinduer i fasader nord (4), sør (3), øst (6)

Nye og eksisterende fasadevinduer i tre fasader

Grunnarbeid Terrengtilpasning

Fylling under tilbygget for å heve gulv og tilpasse terreng

Terrengarbeid for å tilpasse tilbygget til eksisterende terrengnivå

Maling Utvendig og innvendig maling

Fargevalg i henhold til kommuneplanens krav om naturtilpassede farger

Maling av fasade og detaljer for å redusere eksponering

Ventilasjon Ventilasjonssystem

Ikke spesifisert, men nødvendig for boligstandard

Ventilasjon for hytte og tilbygg

Gulv Innvendig gulv

🧱 Ikke spesifisert

Innvendig gulv hevet med 1,0 m i tilbygget

Heving av gulv i tilbygget for bedre utsikt og tilpasning til terreng

Fasader

Hytte

Nord
Materiale
Tre
Taktype
Saltak
Vinduer
4
Dører
1
Synlige etasjer
1
Sør
Materiale
Tre
Taktype
Saltak
Vinduer
3
Dører
1
Synlige etasjer
1
Øst
Materiale
Tre
Taktype
Flatt tak
Vinduer
6
Dører
1
Synlige etasjer
1

Hendelser

09.04.2026 Ferdigattest - tilbygg / endring av hytte - 48/292 - Hvalane 56
18.03.2026 Svar vedrørende midlertidig brukstillatelse - tilbygg / endring av hytte - 48/292 - Hvalane 56
18.03.2026 Reviderte tegninger - tilbygg / endring av hytte - 48/292 - Hvalane 56
18.03.2026 Reviderte tegninger - tilbygg / endring av hytte - 48/292 - Hvalane 56
18.03.2026 Hyttesøknad - tilbygg / endring av hytte - 48/292 - Hvalane 56
18.03.2026 Faktura - byggesøknad - tilbygg / endring av hytte - 48/292 - Hvalane 56
15.12.2017 Fullført byggesak - tillatelse - tilbygg / endring av hytte - 48/292 - Hvalane 56
07.10.2016 Redegjørelse - faktura - byggesøknad - tilbygg / endring av hytte - 48/292 - Hvalane 56
13.09.2016 Følgebrev - faktura - byggesøknad - tilbygg / endring av hytte - 48/292 - Hvalane 56
01.07.2016 Avslag på dispensasjonssøknad - tilbygg / endring av hytte - 48/292 - Hvalane 56
20.05.2016 Tillatelse - rettet skrivefeil - tilbygg / endring av hytte - 48/292 - Hvalane 56
13.05.2016 Tillatelse - tilbygg / endring av hytte - 48/292 - Hvalane 56
09.05.2016 Svar - hyttesøknad - tilbygg / endring av hytte - 48/292 - Hvalane 56
06.05.2016 Egenerklæring for selvbygger - tilbygg / endring av hytte - 48/292 - Hvalane 56
04.05.2016 Svar - hyttesøknad - tilbygg / endring av hytte - 48/292 - Hvalane 56
03.05.2016 Hyttesøknad - tilbygg / endring av hytte - 48/292 - Hvalane 56
20.04.2016 Svar - reviderte tegninger - tilbygg / endring av hytte - 48/292 - Hvalane 56
11.04.2016 Brev - tilbygg / endring av hytte - 48/292 - Hvalane 56
11.04.2016 Svar på avslag - tilbygg / endring av hytte - 48/292 - Hvalane 56
01.04.2016 Svar på uttalse om søknad - tilbygg / endring av hytte - 48/292 - Hvalane 56
26.02.2016 Uttalelse om søknad - tilbygg / endring av hytte - 48/292 - Hvalane 56
22.02.2016 Oversendelse av sak til uttalelse - søknad om dispensasjon - tilbygg / endring av hytte - 48/292 - Hvalane 56
19.02.2016 Byggesøknad - tilleggsopplysning - tilbygg / endring av hytte - 48/292 - Hvalane 56
18.01.2016 Søknad uten ansvarsrett - tilbygg / endring av hytte - 48/292 - Hvalane 56
16.11.2015 Forespørsel om hva de ønsker møte om - tilbygg / endring av hytte - 48/292 - Hvalane 56