Facade
Fasadetegning for et hus i Jernheiaugen 30, Oslo, som viser utsiden sett fra nord og vest med mål.
1 / 8
Extension
Soeknad
Fritidsbolig
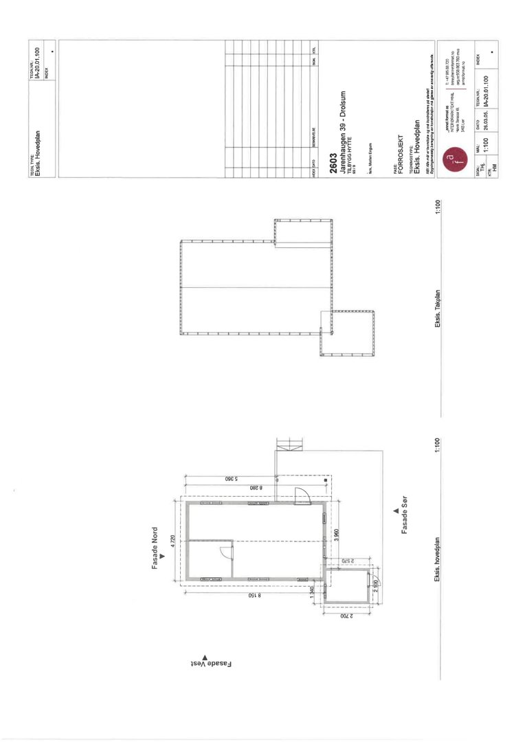
Tilbygg på hytte i Jarenhaugen 39, Modum
📍 Jarenhaugen 39 , 3370 VIKERSUND
Nøkkelinfo
- Sakstype
- Tilbygg
- Bygningstype
- Fritidsbolig
- Bruksareal
- 42 m²
- Kommune
- Modum
- Fylke
- Buskerud
- Gnr / Bnr
- 99 / 9
- Saksnummer
- 2026/1805
- Fase
- Søknad
Om byggesaken
Ny tilbygg på 42,2 m² til eksisterende hytte på Jarenhaugen 39 i Modum. Tilbygget er i én etasje med saltak og trekledning som matcher eksisterende bygg. Det inneholder en stue på 35,2 m² med tre vinduer og én dør, samt en gang på 7 m² med én dør. Fasader mot nord, sør, vest og øst har til sammen seks vinduer og tre dører, alle i tre og med saltak. Tilbygget skal gi to nye soverom og bod, og er plassert på søyler med stubbloft og bindingsverksvegger. Materialbruk og estetikk tilpasses eksisterende hytte.
Produkter og materialer
Tømrer
Bindingsverk vegger
🧱 tre
Bindingsverksvegger i tilbygg
Innvendige og utvendige vegger i bindingsverk
Grunnarbeid
Søyler og stubbloft
🧱 tre
Tilbygget settes på søyler med stubbloft
Fundamentering med søyler og stubbloft for tilbygg
Dører
Ytterdør i tre
🧱 tre
Antall: 3
Totalt 3 ytterdører fordelt på fasader, i samme stil som eksisterende bygg
Tak
Saltak
🧱 tre
Saltak i samme stil som eksisterende hytte
Tak med saltak som tilpasses eksisterende bygg
Innvendig
Rominnredning
2 soverom og bod i tilbygg
Innredning av to soverom og bod i tilbygget areal
Fasade
Trekledning
🧱 tre
Kledning i samme stil som eksisterende hytte
Yttervegger i bindingsverk med trekledning som matcher eksisterende bygg
Vinduer
Fasadevindu i tre
🧱 tre
Antall: 6
Totalt 6 vinduer fordelt på fasader, i samme stil som eksisterende bygg
Plantegning
Tilbygg 42.2 m²
Etasje 1 42.2 m²
| Rom | Areal | Vinduer | Dører |
|---|---|---|---|
| Stue 101 | 35.2 m² | 3 | 1 |
| Gang 102 | 7.0 m² | 0 | 1 |
Fasader
Tilbygg hytte
Nord
- Materiale
- Tre
- Taktype
- Saltak
- Vinduer
- 2
- Dører
- 1
- Synlige etasjer
- 1
Sør
- Materiale
- Tre
- Taktype
- Saltak
- Vinduer
- 1
- Dører
- 1
- Synlige etasjer
- 1
Vest
- Materiale
- Tre
- Taktype
- Saltak
- Vinduer
- 0
- Dører
- 0
- Synlige etasjer
- 1
Øst
- Materiale
- Tre
- Taktype
- Saltak
- Vinduer
- 3
- Dører
- 1
- Synlige etasjer
- 2
Hendelser
20.04.2026
Søknad om tillatelse til tiltak - Gnr 99 bnr 9 - Jarenhaugen 39